Eladó újszerű állapotú lakás - Budapest XIII. kerület
- INGYENES HIRDETÉS FELADÁS
Ingatlan adatai
- Eladó vagy kiadó:Eladó
- Település:Budapest XIII. kerület
- Kategória:Lakás
- Alkategória:Tégla
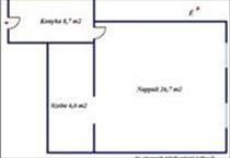
- Alapterület:42 m2
- Csere is:Nem
- Hirdető:Cég
- Élő videón megtekinthető:Nem
- Szobaszám:1 + 1 fél
- Állapot:Újszerű, kitűnő
- Hány szintes az ingatlan:Földszintes
- Komfortosság:nincs megadva
- Hányadik emeleti:2
- Erkély:nincs megadva
- Lift:Nincs
- Parkolási lehetőség:nincs megadva
- Fűtés:Gáz (konvektor)
- Bútorozottság:nincs megadva
- Fényviszony:Napfényes
- Tájolás:K
- Kilátás:nincs megadva
- Internet:nincs megadva
- Klíma:nincs megadva
- Akadálymentesített:nincs megadva
- Energiatanúsítvány:nincs megadva
- Villany:Van
- Víz:Van
- Gáz:nincs megadva
- Csatorna:Van
- Közös költség:17 380 Ft
- Kapcsolatfelvétel

Hitel ajánlatok
Ingatlan hirdetés leírása
Eladó Lakás, Budapest 13. ker.
Eladó Budapest XIII. kerületének közkedvelt részén (Újlipótváros), a Tisza utcában egy jó állapotú társasház 2 emeletén egy csendes, világos, felújított, bútorozott, 42 nm es téglalakás.
1/1 Tulajdon, tehermentes, hitelezhető.
Tulajdoni lap szerint 1 szobás, de kialakításra került egy 6, 6 nm -es hálófülke beépített gardrób szekrényekkel, mely akár harmonika ajtóval vagy függönnyel leválasztható.
A lakás teljes bútorzattal együtt is eladó, a vételár tartalmazza a berendezést is!
A konyha gépesített (elektromos főzőlap, légkeveréses sütő, mosógép, alul mélyhűtős hűtő, mikró, szagelszívó).
A nappali ablakai a csendes, rendezett Tisza utcára néznek, északkeleti tájolásúak, a délelőtti órákban szépen benapozott.
A lakás klimatizált.
A fűtés gázkonvektor, (és hűtő-fűtő klíma), a melegvízről bosch villanybojler gondoskodik.
Az ingatlan 2008-ban illetve 2025-ben teljes felújításon esett át, mely érintette a gépészeti-, villamos alapvezetékeket is, fürdőszoba felújítást. a lakás egyedi mérős, saját vízórával, gázórával, villamosmérővel rendelkezik.
Kimondottan kedvelt, jól ellátott környék: ram, Margit-sziget, Westend, négyes-hatos, troli a közelben, a Dózsa György úti m3 metró megálló 300 méter sétatávolságban.
A társasház jó állapotú, tipikus századfordulós polgári körfolyosós téglaház, lift nincs (tervezik lift beépítését). a ház rendezett, tisztán tartott, jó lakóközösséggel rendelkezik, nincsenek önkormányzati lakások az épületben. a lakáshoz tároló is tartozik.
A tulajdonviszonyok és a társasház jogi helyzete rendezett, az ingatlan magánszemély nevén van (1/1), per-, igény, - tehermentes. Az ingatlan az adásvételi szerződést követően akár azonnal birtokba vehető. Aki szereti a régi polgári belvárosi hangulatot első lakásnak vagy befektetésnek is kiváló, rövid időn belül ráfordítás nélkül bérbeadható, beköltözhető.
Amennyiben az ingatlan felkeltette az érdeklődését, kérem, vegye fel velem a kapcsolatot (bármikor hívhat)! Az adásvételi szerződés megkötéséhez igény szerint megbízható ügyvédi és hitelügyintézői közreműködést biztosítunk, és segítséget nyújtunk az adásvételhez kapcsolódó ügyek intézéséhez. Azonosító szám: M320328
Antal Enikő
+36/20-371-2105 Hitel.hu - Hasonlítsa össze a bankok lakáshitel ajánlatait
Tetszett ez az eladó Budapest XIII. kerületi újszerű állapotú 1 egész és 1 fél szobás tégla lakás? Hívd fel a hirdetőt most, és tudj meg mindent erről az eladó tégla lakásról! Ha gondolod nézelődj tovább az eladó lakás Budapest XIII. kerület oldal hirdetései között. Ennek az eladó lakásnak az ára 75000000 Ft és mivel az alapterülete 42 négyzetméter, ezért az átlagos négyzetméterára 1785714 HUF/m2.
Az eladó lakások menüpontban további hirdetések között is böngészhetsz. Az összes eladó budapesti lakás hirdetést tartalmazó oldalon tudsz böngészni. Ha van kedved, akkor böngészhetsz a Antal Enikő összes hirdetése között, vagy akár a/az OTPip Budapest I. kerület Krisztina körút 32 - OTP Ingatlanpont Iroda összes hirdetése között is.

