Eladó új építésű lakás Budapest XIII. kerület
| Kedvencbe | Megosztás | Árfigyelő |
| Kedvezményes lakáshitel ajánlatok | ||
| 69 700 000 HUF | ||
Ingatlan adatai
- Eladó vagy kiadó:Eladó
- Település:Budapest XIII. kerület
- Kategória:Lakás
- Alkategória:Tégla
- Alapterület:41 m2
- Csere is:Nem
- Hirdető:Cég
- Élő videón megtekinthető:Nem
- Szobaszám:1 + 1 fél
- Állapot:Új építésű
- Hány szintes az ingatlan:2 szintes
- Komfortosság:nincs megadva
- Hányadik emeleti:2
- Parkolási lehetőség:Utcán
- Fűtés:nincs megadva
- Bútorozottság:nincs megadva
- Fényviszony:nincs megadva
- Tájolás:nincs megadva
- Kilátás:nincs megadva
- Internet:nincs megadva
- Akadálymentesített:nincs megadva
- Energiatanúsítvány:nincs megadva
- Villany:nincs megadva
- Víz:nincs megadva
- Gáz:nincs megadva
- Csatorna:nincs megadva
- Üzenetküldés
- Hívás


Hitel ajánlat
Ingatlan hirdetés leírása
ÚJ ÉPÍTÉSŰ INGATLANOK 2027 KÖLTÖZÉSSEL!
Angyalföld:
Angyalf...
Új építésű ingatlanok 2027 költözéssel! Angyalföld:
Angyalföld Budapest XIII. kerületének legnagyobb városrésze, amely az egykori ipari zónából mára modern lakó- és irodanegyeddé alakult át. Hagyományos ipari zónák helyén ma már irodaházak, kereskedelmi egységek és a Duna-parton luxuslakások találhatók.
Az épület tettérbeépítése során törekedtünk olyan lakások kialakítására, ami a mai lakásigényeknek felel
meg, mint amerikai konyhás nappali és külön hálószoba. Változatos lakásokat alakítottunk ki úgy
méretükben, mint elrendezésükben.
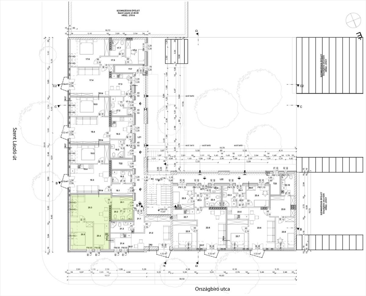
20. Lakás.
Előszoba 4. 60 Nm.
Fürdőszoba: 4. 07 Nm.
Nappali étkező: 20. 08 Nm.
Konyha:7. 30 Nm.
Hálószoba: 11. 39 Nm.
Fizetés: készültségi fokozathoz kötött fizetési ütemezés.
A további kérdésekkel és a megtekintéssel kapcsolatban, kérem keressen a megadott mobil számon. Hitel.hu - Hasonlítsa össze a bankok lakáshitel ajánlatait

