Eladó újszerű állapotú lakás - Budapest XIII. kerület
- INGYENES HIRDETÉS FELADÁS
Ingatlan adatai
- Eladó vagy kiadó:Eladó
- Település:Budapest XIII. kerület
- Kategória:Lakás
- Alkategória:Tégla
- Alapterület:71 m2
- Csere is:Nem
- Hirdető:Cég
- Élő videón megtekinthető:Nem
- Szobaszám:3
- Állapot:Újszerű, kitűnő
- Hány szintes az ingatlan:Földszintes
- Komfortosság:nincs megadva
- Hányadik emeleti:3
- Erkély:nincs megadva
- Lift:Van
- Parkolási lehetőség:nincs megadva
- Fűtés:Távfűtés egyedi mérővel
- Bútorozottság:nincs megadva
- Fényviszony:Napfényes
- Tájolás:K
- Kilátás:nincs megadva
- Internet:nincs megadva
- Klíma:nincs megadva
- Akadálymentesített:Akadálymentesített
- Energiatanúsítvány:nincs megadva
- Villany:Van
- Víz:Van
- Gáz:nincs megadva
- Csatorna:Van
- Kapcsolatfelvétel

Rédey Rita
+36-(20)-430-8993
Mondd meg a hirdetőnek, hogy a megveszLAK-on találtad a hirdetést.
Referencia szám: LK033270
Hitel ajánlatok
Ingatlan hirdetés leírása
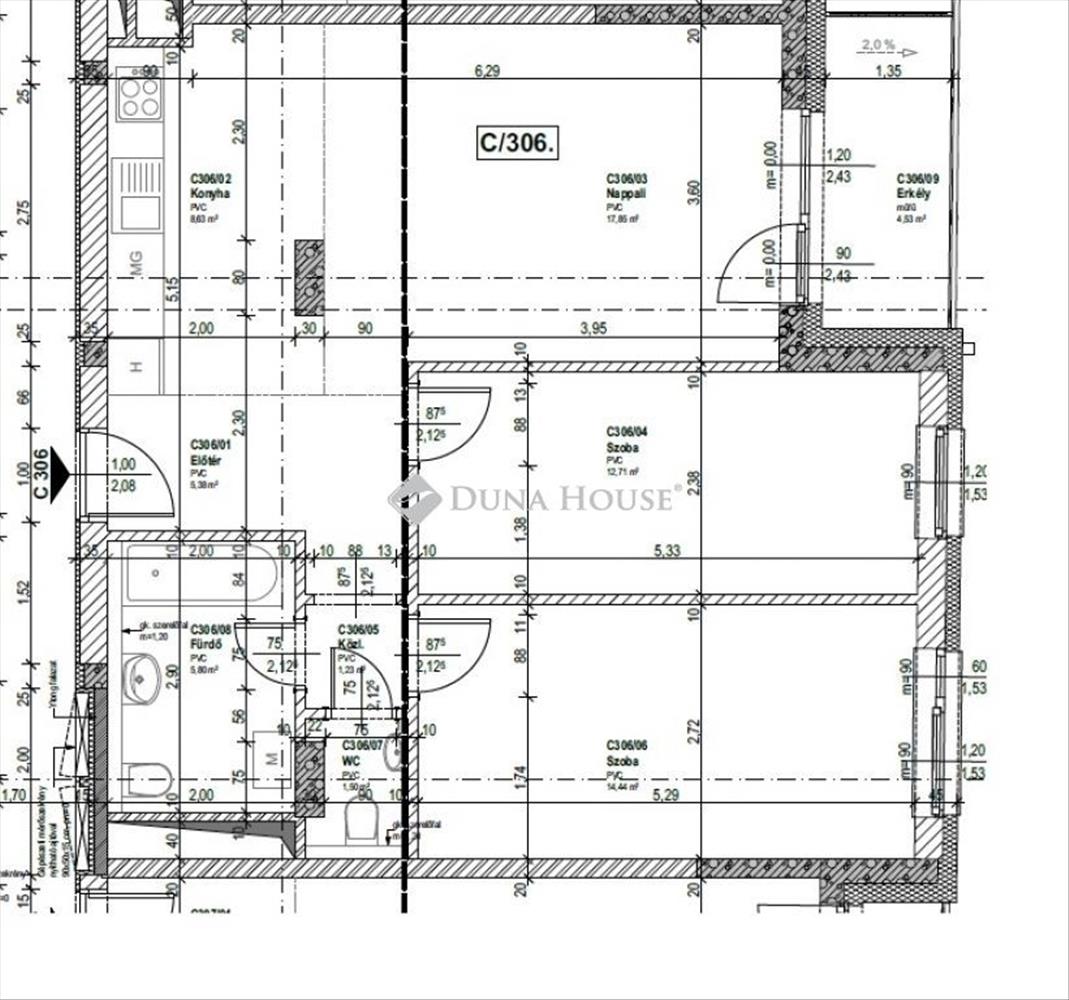
Eladó lakás, Budapest 13. ker.
Kiváló lokáció, közkedvelt lakópark, modern, fiatalos lakások!
Budapesten, a XIII. kerület Angyalföld városrészén, egy 2021-ben épült, modern, liftes lakóparkban eladó egy 68 nm -es, 3. emeleti lakás 5 nm -es erkéllyel.
A lakás amerikai konyhás nappalival, étkezővel és két hálószobával rendelkezik.
A környék kiváló tömegközlekedési lehetőségekkel rendelkezik!
A 14-es villamos, helyi autóbusz járatok, illetve akár az m3 metró megállója is csupán perc sétára található, így a belváros is könnyen megközelíthető.
A lakáshoz teremgarázsban parkolóhely vásárolható vagy bérelhető.
Találja meg nálunk leendő otthonát, aktuális befektetését!
További ajánlatokért látogassa meg az ingatlanod. Dh. Hu weboldalt vagy keressen a 0620-4308993 telefon számon https://ingatlanod. Dh. Hu/elado-ingatlan/lakas-haz Hitel.hu - Hasonlítsa össze a bankok lakáshitel ajánlatait
Tetszett ez az eladó Budapest XIII. kerületi újszerű állapotú 3 szobás tégla lakás? Hívd fel a hirdetőt most, és tudj meg mindent erről az eladó tégla lakásról! Ha gondolod nézelődj tovább az eladó lakás Budapest XIII. kerület oldal hirdetései között. Ennek az eladó lakásnak az ára 109275000 Ft és mivel az alapterülete 71 négyzetméter, ezért az átlagos négyzetméterára 1539085 HUF/m2.
Az eladó lakások menüpontban további hirdetések között is böngészhetsz. Az összes eladó budapesti lakás hirdetést tartalmazó oldalon tudsz böngészni. Ha van kedved, akkor böngészhetsz a Rédey Rita összes hirdetése között, vagy akár a/az Duna House Ferenc tér összes hirdetése között is.

