Eladó újszerű állapotú lakás - Budapest XIII. kerület
- INGYENES HIRDETÉS FELADÁS
Ingatlan adatai
- Eladó vagy kiadó:Eladó
- Település:Budapest XIII. kerület
- Kategória:Lakás
- Alkategória:Tégla
- Alapterület:72 m2
- Csere is:Nem
- Hirdető:Cég
- Élő videón megtekinthető:Nem
- Szobaszám:3
- Állapot:Újszerű, kitűnő
- Hány szintes az ingatlan:Földszintes
- Komfortosság:nincs megadva
- Hányadik emeleti:3
- Erkély:nincs megadva
- Lift:Van
- Parkolási lehetőség:Utcán
- Fűtés:Távfűtés egyedi mérővel
- Bútorozottság:nincs megadva
- Fényviszony:Napfényes
- Tájolás:NY
- Kilátás:nincs megadva
- Internet:nincs megadva
- Klíma:nincs megadva
- Akadálymentesített:nincs megadva
- Energiatanúsítvány:C
- Villany:Van
- Víz:Van
- Gáz:nincs megadva
- Csatorna:Van
- Kapcsolatfelvétel

Hitel ajánlatok
Ingatlan hirdetés leírása
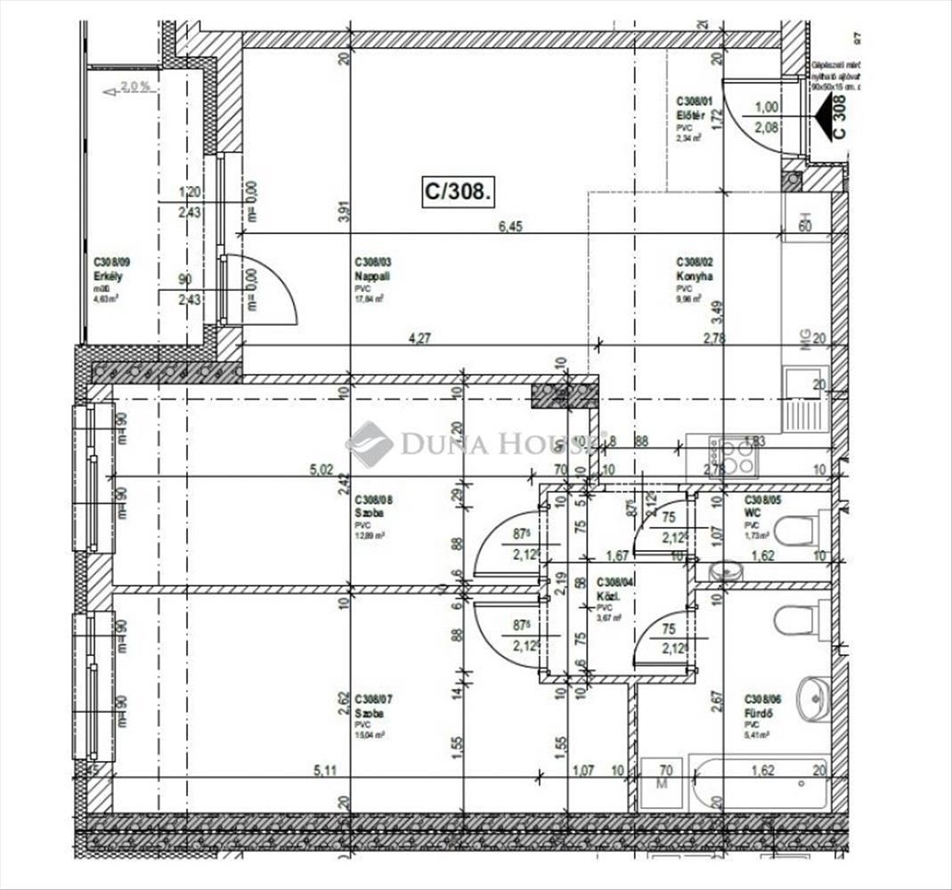
Eladó újszerű, 3 szobás, erkélyes lakás, Budapest 13. ker.
Kiváló lokáció, közkedvelt lakópark, modern, fiatalos lakások!
Budapesten, a XIII. kerület Angyalföld városrészén, egy 2021-ben épült, modern, liftes lakóparkban eladó egy 69 nm -es, 3. emeleti lakás 5 nm -es erkéllyel.
A lakás amerikai konyhás nappalival, étkezővel és 2 hálószobával rendelkezik.
A környék kiváló tömegközlekedési lehetőségek.
A 14-es villamos, helyi autóbusz járatok, illetve akár az m3 metró megállója is csupán perc sétára található, így a belváros is könnyen megközelíthető.
A lakáshoz teremgarázsban parkolóhely vásárolható vagy bérelhető. Találja meg nálunk leendő otthonát, aktuális befektetését!
Amennyiben az ingatlan megfelelne az elvárásainak de nem rendelkezik a teljes vételárral? Ebben az esetben a credipass munkatársai kötelezettség- és díjmentes tanácsadással állnak Ügyfeleink rendelkezésére.
Használja ki a jelenleg még érvényben lévő kedvező kamatozású hiteleket, CSOK-ot, illetékkedvezményt!
Hétvégén is várom megtisztelő hívását, abban az esetben is ha csak hitelre lenne szüksége,
Várom hívását, ha még el kell adnia ahhoz, hogy vásárolni tudjon!
Várom megtisztelő hívását: Plachy Zsuzsa 30-8695401
Referencia szám: lk063142 Hitel.hu - Hasonlítsa össze a bankok lakáshitel ajánlatait
Tetszett ez az eladó Budapest XIII. kerületi újszerű állapotú 3 szobás tégla lakás? Hívd fel a hirdetőt most, és tudj meg mindent erről az eladó tégla lakásról! Ha gondolod nézelődj tovább az eladó lakás Budapest XIII. kerület oldal hirdetései között. Ennek az eladó lakásnak az ára 110825000 Ft és mivel az alapterülete 72 négyzetméter, ezért az átlagos négyzetméterára 1539236 HUF/m2.
Az eladó lakások menüpontban további hirdetések között is böngészhetsz. Az összes eladó budapesti lakás hirdetést tartalmazó oldalon tudsz böngészni. Ha van kedved, akkor böngészhetsz a Plachy Zsuzsa összes hirdetése között, vagy akár a/az Duna House Márvány utca_Bánáti összes hirdetése között is.

