Eladó újszerű állapotú lakás - Budapest XIII. kerület
- INGYENES HIRDETÉS FELADÁS
Ingatlan adatai
- Eladó vagy kiadó:Eladó
- Település:Budapest XIII. kerület
- Kategória:Lakás
- Alkategória:Tégla
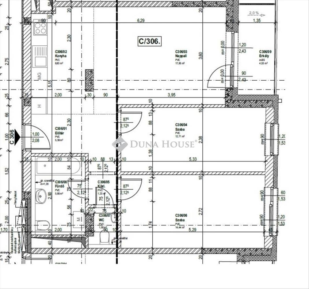
- Alapterület:71 m2
- Csere is:Nem
- Hirdető:Cég
- Élő videón megtekinthető:Nem
- Szobaszám:3
- Állapot:Újszerű, kitűnő
- Hány szintes az ingatlan:Földszintes
- Komfortosság:nincs megadva
- Hányadik emeleti:3
- Erkély:nincs megadva
- Lift:Van
- Parkolási lehetőség:nincs megadva
- Fűtés:Távfűtés egyedi mérővel
- Bútorozottság:Bútorozott
- Fényviszony:Napfényes
- Tájolás:K
- Kilátás:nincs megadva
- Internet:nincs megadva
- Klíma:nincs megadva
- Akadálymentesített:nincs megadva
- Energiatanúsítvány:nincs megadva
- Villany:Van
- Víz:Van
- Gáz:nincs megadva
- Csatorna:Van
- Kapcsolatfelvétel

Herczeg-Bíró Edit
+36-(30)-949-2772
Mondd meg a hirdetőnek, hogy a megveszLAK-on találtad a hirdetést.
Referencia szám: LK033270
Hitel ajánlatok
Ingatlan hirdetés leírása
Modern, 3 szobás lakás kiváló lokációban
Eladó modern lakás Budapest XIII. kerületében – Angyalföld egyik kedvelt lakóparkjában.
Ez a 68 nm-es praktikus beosztású lakás egy 2021-ben épült, liftes társasház 3. emeletén található. Kényelmes 5 nm-es erkélye lehetőséget nyújt a kellemes kikapcsolódásra.
Az ingatlan amerikai konyhás nappalival, étkezővel és két hálószobával rendelkezik, ideális otthon vagy befektetés számára egyaránt. Jelenleg is bérbe van adva, bútorozott, és azokkal együtt kerül eladásra - a bútorok külön értéket képviselnek a vételáron felül.
Kiváló lokáció, hiszen a környék remek tömegközlekedési lehetőségekkel van ellátva: a 14-es villamos, helyi autóbuszok és az m3 metró megállója mind csupán néhány perc sétára található, így könnyedén elérhető a belváros is.
A parkolást teremgarázsban vásárolható vagy bérelhető parkolóhelyek biztosítják.
Ne hagyja ki ezt a lehetőséget! Keressen bizalommal a hét bármely napján.
For sale: Modern apartment in Budapests 13th district – in one of Angyalfölds popular residential parks.
This practical 68 sqm apartment is located on the 3rd floor of a lift-equipped residential building built in 2021. The comfortable 5 sqm balcony offers a great space for relaxing.
The property features an open-plan kitchen with a living room, dining area, and two bedrooms, making it an ideal home or investment. It is currently rented out, furnished, and sold with the furniture — which has additional value beyond the purchase price.
Excellent location, as the neighborhood is well-served by public transportation: the tram line 14, local buses, and the m3 metro station are all just a few minutes walk away, providing easy access to the city center.
Parking is available in a garage, with options to purchase or rent a parking space.
Don’t miss this opportunity! Feel free to contact us any day of the week.
Referencia szám: lk033270 Hitel.hu - Hasonlítsa össze a bankok lakáshitel ajánlatait

