- >>
- eladó ingatlanok
- >>
- eladó lakás
- >>
- eladó lakás Budapest XIII. kerület
- >>
Eladó új építésű lakás - Budapest XIII. kerület
| | |||
| Kedvencnek jelölöm | Elküldöm emailben | Megosztás | Szavazás |
| Kedvezményes lakáshitel ajánlatok | |||
| 85 215 947 HUF | |||
Ingatlan adatai
- Eladó vagy kiadó:Eladó
- Település:Budapest XIII. kerület
- Kategória:Lakás
- Alkategória:Tégla
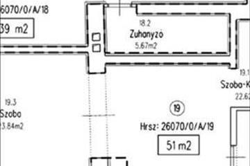
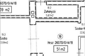
- Alapterület:53 m2
- Csere is:Nem
- Hirdető:Cég
- Élő videón megtekinthető:Nem
- Szobaszám:2
- Állapot:Új építésű
- Hány szintes az ingatlan:Földszintes
- Komfortosság:nincs megadva
- Hányadik emeleti:1
- Lift:Van
- Parkolási lehetőség:nincs megadva
- Fűtés:Geotermikus
- Bútorozottság:nincs megadva
- Fényviszony:Közepes
- Tájolás:nincs megadva
- Kilátás:nincs megadva
- Internet:nincs megadva
- Akadálymentesített:nincs megadva
- Energiatanúsítvány:nincs megadva
- Villany:Van
- Víz:Van
- Gáz:nincs megadva
- Csatorna:Van
- Üzenetküldés
- Hívás

Referencia szám: M291997

Hitel ajánlat
Ingatlan hirdetés leírása
Eladó Lakás, Budapest 13. ker.
Eladó lakások frekventált helyen, Budapest XIII. kerületében! Kiváló ár-érték arány, gyors költözés lehetősége! Budapest népszerű XIII. kerületében, a Váci úton, eladó lakásokat kínálunk egy teljes körűen felújított, 19. Századi bérházban, amely most a modern igényekhez igazodva kínál otthonos, 21. Századi színvonalú lakásokat! Az ingatlan elhelyezkedése verhetetlen: a Gyöngyösi utcai 3-as metrómegállótól mindössze 2 perc sétára található, így a belváros könnyedén elérhető. Kiváló elhelyezkedés és infrastruktúra: Remek közlekedés: 3-as metró és több buszmegálló pár perc alatt elérhető. Kényelmi szolgáltatások a közelben: Duna Plaza és Váci úti Tesco közelsége minden vásárlási igényt kielégít. Nyugodtabb környezet: a Váci úttól egy szervíz út választja el az épületet, amely így csendesebb, és ideális lakóközösséget biztosít. Változatos lakásméretek és kényelmes kialakítás: 17-63 m2 közötti garzonok és galériás kétszobás lakások, tökéletes választás fiatalok, párok és befektetők számára. a lakások gépesített konyhabútorral, klímával és elegáns tejüvegkorlátos fekvőgalériával felszereltek. Az épület teljes közműcserén és nyílászárók felújításán esett át, új lifttel és parkosított udvarral rendelkezik, amely valódi közösségi térként működik. 24 Órás portaszolgálat gondoskodik a lakók nyugalmáról és biztonságáról. Airbnb lehetőség befektetők számára: a kerületben és a társasházban jelenleg nincs tiltás az Airbnb-re vonatkozóan, így az ingatlanok rövid távú kiadása is lehetséges, amennyiben a lakóközösség nem dönt ellentétesen. a környék népszerűsége és a kiváló közlekedési lehetőségek garantálják a magas kihasználtságot, így ezek a lakások különösen értékálló befektetési lehetőséget jelentenek! Várható átadás: 2024. December 31.m291997
Az OTP Ingatlanpont, mint egyetlen közvetlen banki hátterű ingatlanközvetítő társaság teljes körű ügyintézéssel áll az eladók és a vevők rendelkezésére! a kínálatunkból választott ingatlan finanszírozásához minősített fogyasztóbarát, piaci és kedvezményes hitel- és lízingkonstrukciókat kínálunk (lakásvásárlási hitel, CSOK plusz, szabad felhasználású hitel, babaváró hitel, céges hitelek, pályázatok). Az adásvételi szerződés megkötéséhez igény szerint megbízható ügyvédi közreműködést biztosítunk, és segítséget nyújtunk az adásvételhez kapcsolódó egyéb ügyek intézéséhez.
Ha az új ingatlana megvásárlásához a jelenlegi ingatlanát el kell adnia, abban is szívesen segítünk.
Referencia szám: m291997-ML Hitel.hu - Hasonlítsa össze a bankok lakáshitel ajánlatait

