Eladó újszerű állapotú lakás - Budapest XIII. kerület
- INGYENES HIRDETÉS FELADÁS
Ingatlan adatai
- Eladó vagy kiadó:Eladó
- Település:Budapest XIII. kerület
- Kategória:Lakás
- Alkategória:Tégla
- Alapterület:71 m2
- Csere is:Nem
- Hirdető:Cég
- Élő videón megtekinthető:Nem
- Szobaszám:3
- Állapot:Újszerű, kitűnő
- Hány szintes az ingatlan:Földszintes
- Komfortosság:nincs megadva
- Hányadik emeleti:2
- Erkély:nincs megadva
- Lift:Van
- Parkolási lehetőség:Teremgarázsban
- Fűtés:Távfűtés
- Bútorozottság:nincs megadva
- Fényviszony:Napfényes
- Tájolás:DK
- Kilátás:nincs megadva
- Internet:nincs megadva
- Klíma:nincs megadva
- Akadálymentesített:nincs megadva
- Energiatanúsítvány:nincs megadva
- Villany:Van
- Víz:Van
- Gáz:nincs megadva
- Csatorna:Van
- Kapcsolatfelvétel

Plachy Zsuzsa
+36-(30)-869-5401
Mondd meg a hirdetőnek, hogy a megveszLAK-on találtad a hirdetést.
Referencia szám: LK069135
Hitel ajánlatok
Ingatlan hirdetés leírása
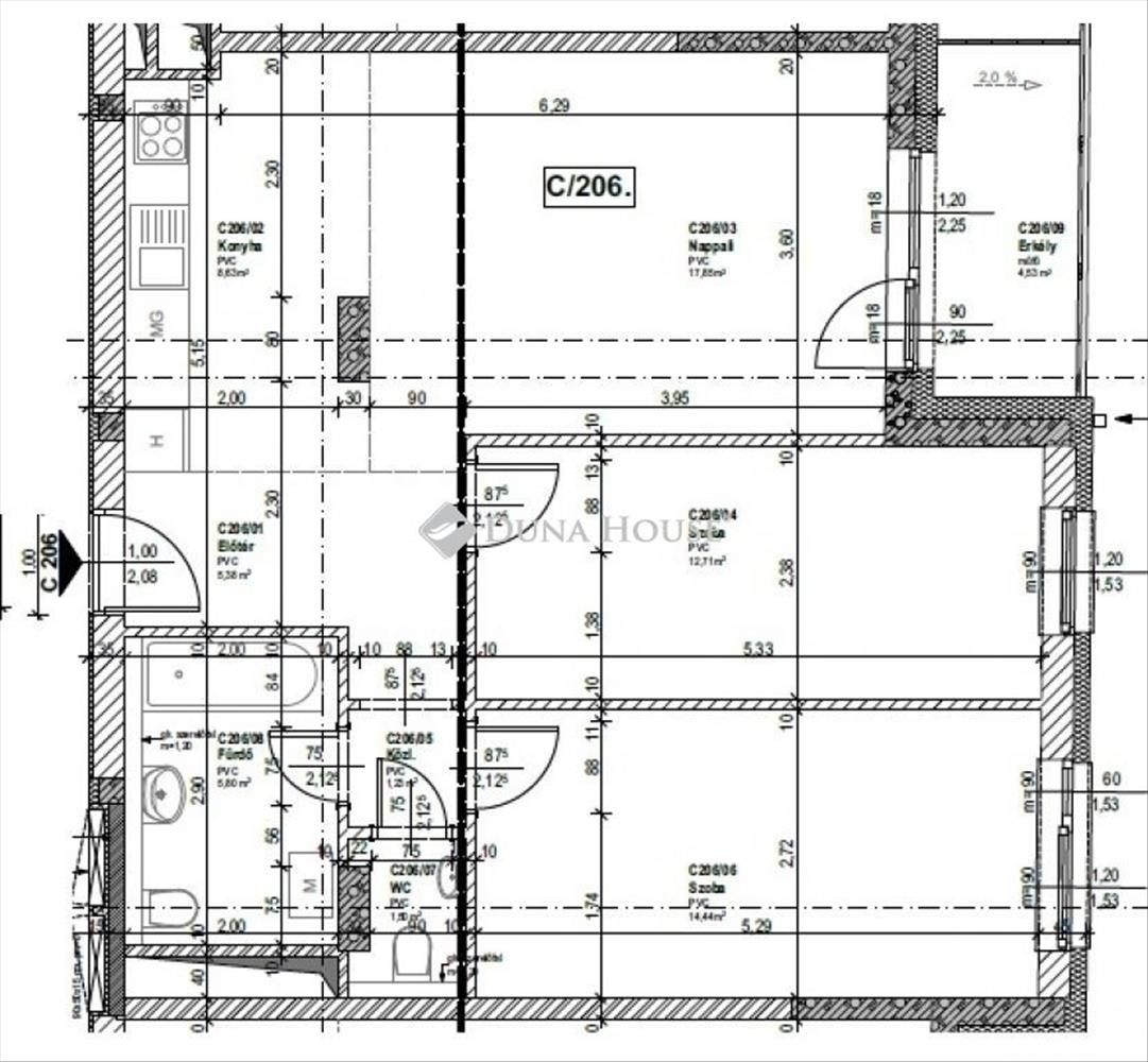
Eladó 3 szobás, erkélyes, újszerű lakás, Budapest 13. ker.
Kiváló lokáció, közkedvelt lakópark, modern, fiatalos lakások!
Budapesten, a XIII. kerület Angyalföld városrészén, egy 2021-ben épült, modern, liftes lakóparkban eladó egy 68 nm-es, 2. emeleti lakás 5 nm-es erkéllyel.
A lakás amerikai konyhás nappalival, étkezővel és 2 hálószobával rendelkezik.
A környék kiváló tömegközlekedési lehetőségekkel rendelkezik! a 14-es villamos, helyi autóbusz járatok, illetve akár az m3 metró megállója is csupán perc sétára található, így a belváros is könnyen megközelíthető.
A lakáshoz teremgarázsban parkolóhely vásárolható vagy bérelhető.
Találja meg nálunk leendő otthonát, aktuális befektetését!
Amennyiben az ingatlan megfelelne az elvárásainak de nem rendelkezik a teljes vételárral? Ebben az esetben a credipass munkatársai kötelezettség- és díjmentes tanácsadással állnak Ügyfeleink rendelkezésére.
Használja ki a jelenleg még érvényben lévő kedvező kamatozású hiteleket, CSOK-ot, illetékkedvezményt!
Hétvégén is várom megtisztelő hívását, abban az esetben is ha csak hitelre lenne szüksége,
Várom hívását, ha még el kell adnia ahhoz, hogy vásárolni tudjon!
Várom megtisztelő hívását: Plachy Zsuzsa 30-8695401
Referencia szám: lk069135 Hitel.hu - Hasonlítsa össze a bankok lakáshitel ajánlatait

