Eladó jó állapotú lakás Budapest XIII. kerület
| Kedvencbe | Megosztás | Árfigyelő |
| FIX 3% lakáshitelre megvehető | ||
| 93 000 000 HUF | ||
Ingatlan adatai
- Eladó vagy kiadó:Eladó
- Település:Budapest XIII. kerület
- Kategória:Lakás
- Alkategória:Tégla
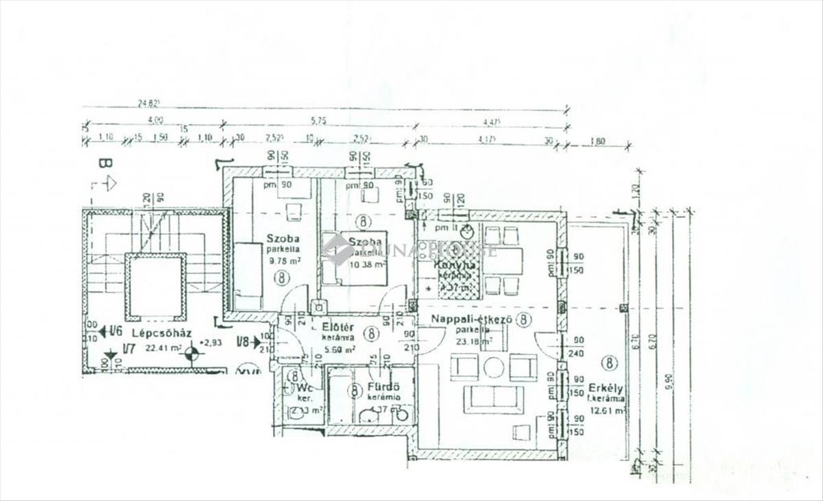
- Alapterület:62 m2
- Csere is:Nem
- Hirdető:Cég
- Élő videón megtekinthető:Nem
- Szobaszám:3
- Állapot:Jó állapotú
- Hány szintes az ingatlan:Földszintes
- Komfortosság:nincs megadva
- Hányadik emeleti:1
- Lift:Van
- Parkolási lehetőség:nincs megadva
- Fűtés:Gáz (cirko)
- Bútorozottság:nincs megadva
- Fényviszony:Napfényes
- Tájolás:DK
- Kilátás:nincs megadva
- Internet:nincs megadva
- Akadálymentesített:nincs megadva
- Energiatanúsítvány:nincs megadva
- Villany:Van
- Víz:Van
- Gáz:nincs megadva
- Csatorna:Van
- Üzenetküldés
- Hívás

Referencia szám: LK030427

Hitel ajánlat
Ingatlan hirdetés leírása
Eladó lakás, Budapest 13. ker.
Kiemelt ajánlat csak NÁLUNK! Kucsma utcában eladó egy 59, 8 nm-es, 1+2 szobás jó állapotú lakás 12, 61 nm-es erkéllyel. ( Tulajdoni lapon 62 nm. ) a ház 2007-ben épült, csöndes, nyugodt környéken mégis kiváló közlekedéssel. a lakás kiváló elosztású, kényelmes előszobával, külön, nem a nappaliból nyíló hálószobákkal, külön kialakítású a fürdő és a wc, valamint hatalmas erkéllyel. Az ablakokon redőny és szúnyogháló, hűtő klíma a nappaliban és cirkó fűtéses. a burkolatok, szaniterek, konyhabútor az eredetiek. a közlekedés kiváló, a közelben a 30, 30a buszok és a 14-es villamos. a lakás tehermentes, jelenleg bérlők lakják, akik szívesen visszabérelnék. a nappaliban lévő gardróbszekrény, a konyhabútor és a klíma a vételár része. a lakáshoz tartozik és kötelezően megvásárolandó egy teremgarázs beálló + 7. 000. 000, -Ft és egy 5, 16 nm-es tároló + 5. 000. 000, -Ft, összesen az ár: 105. 000. 000, -Ft! Befektetésnek és otthonnak is tökéletes választás!93000000 Ft
Teljeskörű Díjmentes Hitelügyintézés, Otthon Start Program, közel 300 db Budapesti ingatlan a kínálaomtban, Több mint 80 Új építésű Budapesti Projekt elérhető a kinálatomban. Hétvégén is állok rendelkezésére. ! ! !
Balogh Gábor
Ingatlanspecialista
+36706786688
Referencia szám: lk030427-ml FIX 3% lakáshitelre megvehető

