Eladó új építésű lakás - Budapest XIV. kerület
- INGYENES HIRDETÉS FELADÁS
Ingatlan adatai
- Eladó vagy kiadó:Eladó
- Település:Budapest XIV. kerület
- Kategória:Lakás
- Alkategória:Tégla
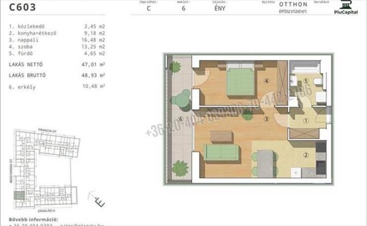
- Alapterület:47 m2
- Csere is:Nem
- Hirdető:Cég
- Élő videón megtekinthető:Nem
- Szobaszám:2
- Állapot:Új építésű
- Hány szintes az ingatlan:nincs megadva
- Komfortosság:Összkomfortos
- Kertkapcsolatos:Igen
- Hányadik emeleti:6
- Erkély:Van
- Lift:Van
- Parkolási lehetőség:nincs megadva
- Fűtés:nincs megadva
- Bútorozottság:nincs megadva
- Fényviszony:nincs megadva
- Tájolás:nincs megadva
- Kilátás:Utcai
- Internet:nincs megadva
- Klíma:nincs megadva
- Akadálymentesített:nincs megadva
- Energiatanúsítvány:nincs megadva
- Villany:nincs megadva
- Víz:nincs megadva
- Gáz:nincs megadva
- Csatorna:nincs megadva
- Kapcsolatfelvétel

Dalos Mariann
+36-(20)-404-0393
Mondd meg a hirdetőnek, hogy a megveszLAK-on találtad a hirdetést.
Hitel ajánlatok
Ingatlan hirdetés leírása
Eladó Tégla lakás, Budapest 14. kerület, Törökőr, 47nm, 874000...
A Mogyoródi úton valósul meg ez a modern, új építésű lakópark, amely parkosított belső kert köré szervezett kialakításával élhető lakókörnyezetet kínál a városi elhelyezkedés előnyei mellett.
Az épület korszerű hőszivattyús rendszerrel, mennyezeti fűtés–hűtéssel készül, a+ energetikai besorolással. Az otthonok többsége erkéllyel rendelkezik, az első emeleten és a legfelső szinten pedig kertkapcsolatos megoldások is elérhetők, privát használatú zöldfelülettel.
A környék közlekedése kifejezetten jó: a Hungária körút közelsége gyors kapcsolatot biztosít, miközben a lakókörnyezet élhető marad. Az m2-es metró, az 1-es villamos, valamint a belváros és az Örs vezér tere is könnyen elérhető, akár éjszakai közlekedéssel is.
A Városliget, bevásárlóközpontok és a mindennapi szolgáltatások szintén a közelben találhatók, így a városi élet praktikus oldala jól illeszkedik a lakófunkcióhoz.
Az épület teremgarázsszinttel rendelkezik, a parkolóhelyek és tárolók igény szerint vásárolhatók. a beruházás projektfinanszírozott, biztos pénzügyi háttérrel valósul meg, rugalmas fizetési ütemezéssel.
Az otthonok saját célra és befektetési szempontból is jól működnek, jól átgondolt alaprajzokkal és hosszú távon értékálló műszaki tartalommal. Hitel.hu - Hasonlítsa össze a bankok lakáshitel ajánlatait
Tetszett ez az eladó Budapest XIV. kerületi új építésű 2 szobás tégla lakás? Hívd fel a hirdetőt most, és tudj meg mindent erről az eladó tégla lakásról! Ha gondolod nézelődj tovább az eladó lakás Budapest XIV. kerület oldal hirdetései között. Ennek az eladó lakásnak az ára 87400000 Ft és mivel az alapterülete 47 négyzetméter, ezért az átlagos négyzetméterára 1859574 HUF/m2.
Az eladó lakások menüpontban további hirdetések között is böngészhetsz. Az összes eladó budapesti lakás hirdetést tartalmazó oldalon tudsz böngészni. Ha van kedved, akkor böngészhetsz a Dalos Mariann összes hirdetése között, vagy akár a/az Planity Consulting összes hirdetése között is.

