Eladó újszerű állapotú lakás Budapest XIV. kerület
| Kedvencbe | Megosztás | Árfigyelő |
| Kedvezményes lakáshitel ajánlatok | ||
| 148 000 000 HUF | ||
Ingatlan adatai
- Eladó vagy kiadó:Eladó
- Település:Budapest XIV. kerület
- Kategória:Lakás
- Alkategória:Tégla
- Alapterület:96 m2
- Csere is:Nem
- Hirdető:Cég
- Élő videón megtekinthető:Nem
- Szobaszám:3
- Állapot:Újszerű, kitűnő
- Hány szintes az ingatlan:nincs megadva
- Komfortosság:Összkomfortos
- Hányadik emeleti:Földszint
- Erkély:Van
- Parkolási lehetőség:nincs megadva
- Fűtés:Egyéb
- Bútorozottság:nincs megadva
- Fényviszony:nincs megadva
- Tájolás:nincs megadva
- Kilátás:Kertre néző
- Internet:nincs megadva
- Akadálymentesített:nincs megadva
- Energiatanúsítvány:nincs megadva
- Villany:Van
- Víz:Van
- Gáz:Van
- Csatorna:Van
- Üzenetküldés
- Hívás


Hitel ajánlat
Ingatlan hirdetés leírása
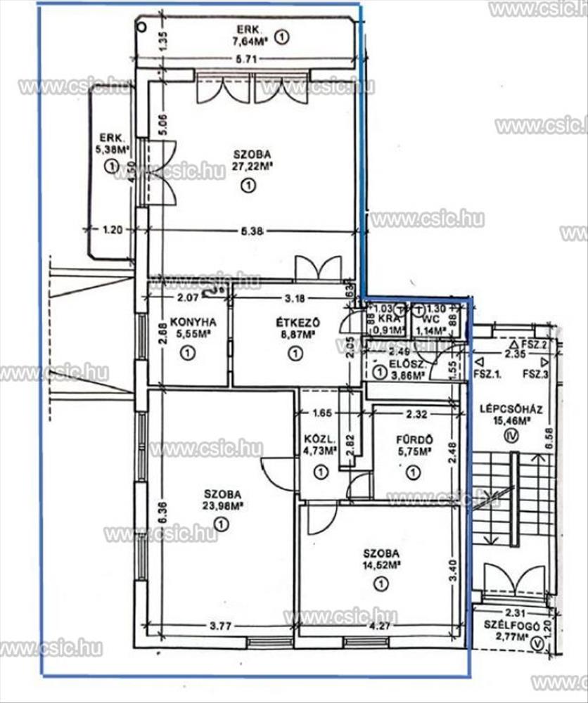
Budapest XIV. k.-ben, földszinti, 3 szobás, erkélyes lakás eladó
Zugló kiemelten kedvelt, csendes és zöldövezeti utcájában kínálunk megvételre egy kiváló adottságokkal rendelkező 103 m2 hasznos alapterületű földszinti 3 szobás társasházi lakást, amely ritka kombinációját nyújtja a nyugodt környezetnek, az előnyős infrastruktúrának és a biztos befektetési potenciálnak.Az ingatlan letisztult arányokkal, jól struktúrált belső terekkel rendelkezik. a társasház rendezett, igényesen karbantartott, jó lakóközösségű és ápolt közös területekkel körül határolt.
Az ingatlan
•egy dél-keleti fekvésű, parkosított kertre néző két erkélyes, közel 30 m2 -es nappalival,
•további két kellemes méretű szobával (24 m2, 14, 5m2 ),
•étkezőből nyíló konyhával, kamrával,
•egy tágas sarokkádas fürdőszobával és egy különálló toalettel rendelkezik,
•a helyiségeket egy előszoba és egy közlekedő köti össze.
A környék infrastruktúrája kiváló:
•tömegközlekedés néhány perc sétára,
•bevásárlási lehetőség, iskolák, óvodák, egészségügyi szolgáltatások a közelben,
•parkos, nyugodt környezet, mégis gyors belvárosi elérhetőség.
Ajánljuk mindazoknak, akik Zugló egyik legjobb lokációjában keresnek értékálló otthont vagy stabil befektetést. Az ingatlan jelenleg 1 éves időtartamú albérleti jogviszonyba kiadásra került, diplomáciai státuszú személy részére. Megvétel esetén természetesen a bérleti jogviszonyból származó bevétel az új tulajdonost illeti.
Amennyiben esetleg hitelfedezet bevonásának szüksége merülne fel, Kollégáim ingyenes és banksemleges hiteltanácsadással és teljeskörű hitelügyintézéssel állnak az Önök rendelkezésére.
Ha felkeltettem az érdeklődését, kérem, forduljon hozzám bizalommal, várom hívását Hitel.hu - Hasonlítsa össze a bankok lakáshitel ajánlatait

