Eladó jó állapotú lakás - Budapest XIV. kerület
- INGYENES HIRDETÉS FELADÁS
Ingatlan adatai
- Eladó vagy kiadó:Eladó
- Település:Budapest XIV. kerület
- Kategória:Lakás
- Alkategória:Tégla
- Alapterület:103 m2
- Csere is:Nem
- Hirdető:Cég
- Élő videón megtekinthető:Nem
- Szobaszám:3 + 1 fél
- Állapot:Jó állapotú
- Hány szintes az ingatlan:Földszintes
- Komfortosság:nincs megadva
- Kertkapcsolatos:Igen
- Hányadik emeleti:Földszint
- Erkély:nincs megadva
- Lift:Van
- Parkolási lehetőség:nincs megadva
- Fűtés:Gáz (cirko)
- Bútorozottság:nincs megadva
- Fényviszony:Jó
- Tájolás:K
- Kilátás:nincs megadva
- Internet:nincs megadva
- Klíma:Van
- Akadálymentesített:nincs megadva
- Energiatanúsítvány:nincs megadva
- Villany:Van
- Víz:Van
- Gáz:nincs megadva
- Csatorna:Van
- Közös költség:24 200 Ft
- Kapcsolatfelvétel

Hitel ajánlatok
Ingatlan hirdetés leírása
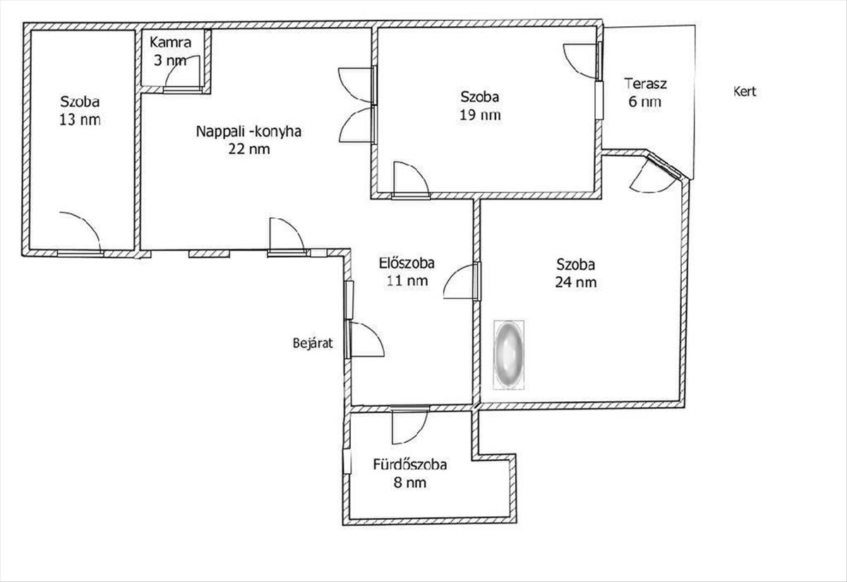
Eladó Lakás, Budapest 14. ker.
Két ingatlan egy áráért! Kertkapcsolatos prémium otthon és külön apartman Istvánm ező szívében!
Eladásra kínálok a XIV. kerület egyik legkedveltebb részén, Istvánm ezőn egy 103 nm -es, földszinti, teljes körűen és magas minőségben felújított ingatlant. a lakás különlegessége a rendkívül rugalmas kialakítás: az ingatlan egyik szobája saját bejárattal és önálló mérőórával rendelkezik, így gyakorlatilag két ingatlant kapunk egy áráért. Ez a rész ideális lehet különálló stúdióként, irodának vagy vendéglakrésznek, de a fő lakótérrel egybenyitva egy tágas, három hálószobás családi otthonként is tökéletesen funkcionál.
A belső terek 3, 2 méteres belmagassága elegáns, levegős érzetet biztosít, a tágas amerikai konyhás nappali központi dísze pedig egy egyedileg beépített kandalló, amely ritka és hangulatos eleme a lakásnak. a szobákból közvetlen kijárás nyílik a 6 nm -es saját teraszra, amelyen keresztül a kertkapcsolat előnyeit is élvezhetjük a város szívében.
A felújítás során a legkorszerűbb műszaki megoldásokat alkalmazták. a lakás hő- és hangszigeteléséről háromrétegű nyílászárók és elektromos redőnyök gondoskodnak, a kellemes hőérzetet pedig egyedileg szabályozható gáz-cirkó fűtéssel ( hidegburkolat alatt padlófűtés) és klímaberendezés biztosítja. a biztonságról kiépített riasztórendszer gondoskodik, a tárolást pedig a lakáshoz tartozó saját pincehelyiség segíti.
A ház lakóközössége és maga a ház is rendezett, karbantartott.
A modern gépészetnek köszönhetően a fenntartási költségek rendkívül kedvezőek, a közös költség mindössze 24 000 Ft havonta. Ez az ingatlan kiváló választás mindazoknak, akik csendes, nívós környezetben keresnek azonnal költözhető, többcélú hasznosításra is alkalmas prémium otthont vagy értékálló befektetést.
Referencia szám: m324871 Hitel.hu - Hasonlítsa össze a bankok lakáshitel ajánlatait
Tetszett ez az eladó Budapest XIV. kerületi jó állapotú 3 egész és 1 fél szobás tégla lakás? Hívd fel a hirdetőt most, és tudj meg mindent erről az eladó tégla lakásról! Ha gondolod nézelődj tovább az eladó lakás Budapest XIV. kerület oldal hirdetései között. Ennek az eladó lakásnak az ára 124900000 Ft és mivel az alapterülete 103 négyzetméter, ezért az átlagos négyzetméterára 1212621 HUF/m2.
Az eladó lakások menüpontban további hirdetések között is böngészhetsz. Az összes eladó budapesti lakás hirdetést tartalmazó oldalon tudsz böngészni. Ha van kedved, akkor böngészhetsz a Fodor Zoltán összes hirdetése között, vagy akár a/az OTPip Gregoryan Artur összes hirdetése között is.

