Eladó új építésű lakás Budapest XIV. kerület
| Kedvencbe | Megosztás | Árfigyelő |
| Kedvezményes lakáshitel ajánlatok | ||
| 106 080 000 HUF | ||
Ingatlan adatai
- Eladó vagy kiadó:Eladó
- Település:Budapest XIV. kerület
- Kategória:Lakás
- Alkategória:Tégla
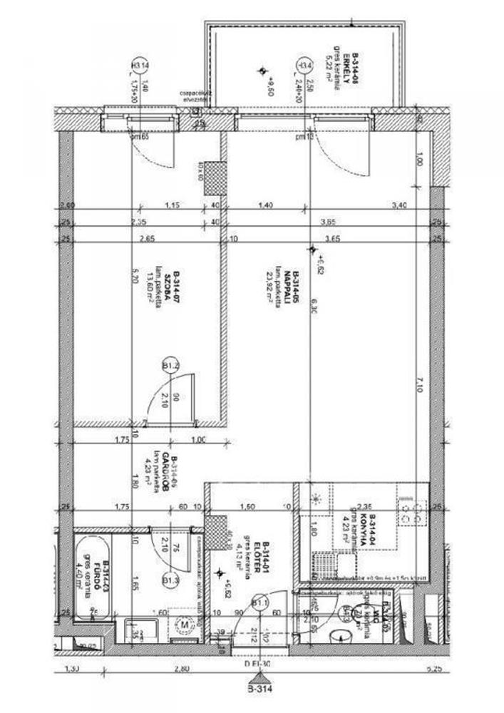
- Alapterület:58 m2
- Csere is:Nem
- Hirdető:Cég
- Élő videón megtekinthető:Nem
- Szobaszám:2
- Állapot:Új építésű
- Hány szintes az ingatlan:Földszintes
- Komfortosság:nincs megadva
- Hányadik emeleti:3
- Lift:Van
- Parkolási lehetőség:Teremgarázsban
- Fűtés:Geotermikus
- Bútorozottság:nincs megadva
- Fényviszony:Napfényes
- Tájolás:nincs megadva
- Kilátás:nincs megadva
- Internet:nincs megadva
- Akadálymentesített:nincs megadva
- Energiatanúsítvány:nincs megadva
- Villany:Van
- Víz:Van
- Gáz:nincs megadva
- Csatorna:Van
- Üzenetküldés
- Hívás

Szilveszter Noémi
Mondd meg a hirdetőnek, hogy a megveszLAK-on találtad a hirdetést.
Referencia szám: M284385

Hitel ajánlat
Ingatlan hirdetés leírása
Eladó Lakás, Budapest 14. ker.
14. kerület frekventál részén eladó fiatalos és modern lakások az OTP ingatlanpont KÍNÁLATÁBAN!Zugló frekventált részén, jó közlekedés mellett, kínálunk újépítésű lakásokat egy rendkívül kellemes megjelenésű épületegyüttesben.
A jól átgondolt tervezés eredményeként az épületben, praktikus helyiségek, világos és kényelmes életterek kerültek kialakításra.
Minden lakás megtervezésénél nagy figyelmet fordítottak a napfényes és élhető elrendezésre. Ezen felül az épületek felsőbb szinti lakásainak többségéhez nagyméretű teraszok, míg a földszinti és részben az első emelti lakásokhoz magánhasználatú kertrészek kapcsolódnak.
A lakás kínálat változó, a kisebb alapterületű stúdió lakásoktól az akár 1-2-3 hálószobával rendelkező otthonok széles választéka elérhető.
A kínálatnak köszönhetően az első lakást kereső fiatalok, a csok+ nyújtotta lehetőségeket kihasználni szándékozó családosok, vagy akár a befektetési céllal vásárlók is megtalálhatják álmaik otthonát. Az épület tervezett átadása 2025. III NEGYEDÉV.
- a fűtési és hűtési energiát környezetbarát, levegős hőszivattyúrendszer biztosítja. a hőleadók mennyezetbe épített (szabad szemmel nem látható) hűtő-, fűtőrendszerek, melyekkel a helyiségek hőmérséklete egyedileg szabályozható, akár intelligens/okos hálózat részeként. a meleg víz előállításáról a központi gépészeti helyiségekben elhelyezett fali gázkazánok gondoskodnak. - Egyéb kényelmi szempontokat is figyelembe véve a következő extrák kerültek kialakításra: beépített redőnyök elektromos előkészítése, kerékpártároló, elektromosautó-töltési lehetőség (külön kérés és felár ellenében), valamint okosotthon és kamerarendszer garantálja a biztonságot és a kényelmet. - Teremgarázs biztosítja a kényelmes parkolást, ahol különböző méretű gépkocsibeállók közül választhat. Emellett külön bejáratú tárolók vásárlása is lehetséges. - Lakásainkhoz választható burkolatok és szaniterek tartoznak, így teljesen személyre szabhatja új otthonát. Ne hagyja ki ezt a páratlan lehetőséget, hogy egy kiváló infrastruktúrával rendelkező, modern és fiatalos lakóparkban találja meg álmai otthonát! Vegye fel velem a kapcsolatot és tekintse meg személyesen az eladó lakásokat Zugló legjobb részén - várom megtisztelő hívását! m284385 Hitel.hu - Hasonlítsa össze a bankok lakáshitel ajánlatait

