Eladó jó állapotú lakás - Budapest XIV. kerület
- INGYENES HIRDETÉS FELADÁS
Ingatlan adatai
- Eladó vagy kiadó:Eladó
- Település:Budapest XIV. kerület
- Kategória:Lakás
- Alkategória:Tégla
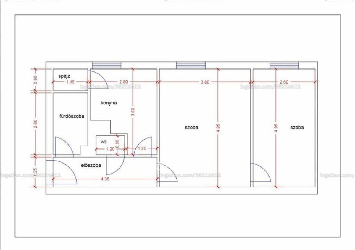
- Alapterület:53 m2
- Csere is:Nem
- Hirdető:Cég
- Élő videón megtekinthető:Nem
- Szobaszám:2 + 1 fél
- Állapot:Jó állapotú
- Hány szintes az ingatlan:Földszintes
- Komfortosság:nincs megadva
- Hányadik emeleti:1
- Erkély:nincs megadva
- Lift:Nincs
- Parkolási lehetőség:Utcán
- Fűtés:Gáz (konvektor)
- Bútorozottság:nincs megadva
- Fényviszony:Jó
- Tájolás:NY
- Kilátás:nincs megadva
- Internet:nincs megadva
- Klíma:nincs megadva
- Akadálymentesített:nincs megadva
- Energiatanúsítvány:E
- Villany:Van
- Víz:Van
- Gáz:nincs megadva
- Csatorna:Van
- Közös költség:18 000 Ft
- Kapcsolatfelvétel

Hitel ajánlatok
Ingatlan hirdetés leírása
Eladó Lakás, Budapest 14. ker.
***3. Szoba lehetőség a Bolgárkertész utcában! ***
Budapest XIV. kerületének egyik legkedveltebb, csendes részén, Alsórákoson kínálunk megvételre egy tulajdoni lap szerint 52 nm -es, a valóságban 53 nm alapterületű, tehermentes, azonnal birtokba vehető lakást.
Az ingatlan egy rendezett, 3 emeletes társasház 1. emeletén helyezkedik el. Nyugati fekvésének köszönhetően kellemesen világos, jó fényviszonyokkal rendelkezik, a délutáni napfény különösen hangulatossá teszi a lakóteret.
Műszaki tartalom, felújítások
A lakás műszaki állapota kiváló, az elmúlt időszakban az alábbi korszerűsítések történtek:
Teljes elektromos hálózat cseréje és modernizálása
Új bejárati ajtó
Új beltéri ajtók
Teljes nyílászárócsere, redőnyökkel ellátva
Friss tisztasági festés
Az ingatlan ára a teljes bútorzatot tartalmazza, így akár befektetésnek, akár első otthonnak is ideális választás. Amennyiben a vevő bútorozatlanul szeretné átvenni, a tulajdonos igény esetén elszállítja a berendezést.
Társasház és költségek
A közös költség mindössze 18. 000 Ft/hó, amely tartalmazza:
lépcsőház karbantartását
szemétszállítást
felújítási alapot
A társasház stabil anyagi háttérrel rendelkezik, megtakarítással bír, és a lakóközösség már megszavazta a következő ütemben a teljes külső homlokzat felújítását is, amely tovább növeli majd az ingatlan értékét.
A lakáshoz tartozik egy 4 nm -es, kizárólagos használatú, száraz tároló is.
A lakóközösség kifejezetten jó, összetartó. a környék nyugodt, mégis kiváló infrastruktúrával rendelkezik.
Ingatlanjogász ügyvédi iroda vagyunk.
Referencia szám: m322942-ml FIX 3% lakáshitelre megvehető
Tetszett ez az eladó Budapest XIV. kerületi jó állapotú 2 egész és 1 fél szobás tégla lakás? Hívd fel a hirdetőt most, és tudj meg mindent erről az eladó tégla lakásról! Ha gondolod nézelődj tovább az eladó lakás Budapest XIV. kerület oldal hirdetései között. Ennek az eladó lakásnak az ára 66990000 Ft és mivel az alapterülete 53 négyzetméter, ezért az átlagos négyzetméterára 1263962 HUF/m2.
Az eladó lakások menüpontban további hirdetések között is böngészhetsz. Az összes eladó budapesti lakás hirdetést tartalmazó oldalon tudsz böngészni. Ha van kedved, akkor böngészhetsz a Erdélyi Miklós István összes hirdetése között, vagy akár a/az OTPip Budapest I. kerület Krisztina körút 32 - OTP Ingatlanpont Iroda összes hirdetése között is.

