- >>
- eladó ingatlanok
- >>
- eladó lakás
- >>
- eladó lakás Budapest XIV. kerület
- >>
Eladó új építésű lakás - Budapest XIV. kerület
| | |||
| Kedvencnek jelölöm | Elküldöm emailben | Megosztás | Szavazás |
| FIX 3% lakáshitelre megvehető | |||
| 99 800 000 HUF | |||
Ingatlan adatai
- Eladó vagy kiadó:Eladó
- Település:Budapest XIV. kerület
- Kategória:Lakás
- Alkategória:Tégla
- Alapterület:88 m2
- Csere is:Nem
- Hirdető:Cég
- Élő videón megtekinthető:Nem
- Szobaszám:4
- Állapot:Új építésű
- Hány szintes az ingatlan:2 szintes
- Komfortosság:nincs megadva
- Hányadik emeleti:2
- Lift:Nincs
- Parkolási lehetőség:Udvaron
- Fűtés:Hőszivattyús
- Bútorozottság:nincs megadva
- Fényviszony:Napfényes
- Tájolás:nincs megadva
- Kilátás:nincs megadva
- Internet:nincs megadva
- Akadálymentesített:nincs megadva
- Energiatanúsítvány:A
- Villany:Van
- Víz:Van
- Gáz:nincs megadva
- Csatorna:Van
- Közös költség:1 000 Ft
- Üzenetküldés
- Hívás

Sasaran-Kereki Katalin
Mondd meg a hirdetőnek, hogy a megveszLAK-on találtad a hirdetést.
Referencia szám: M305754

Ingatlan hirdetés leírása
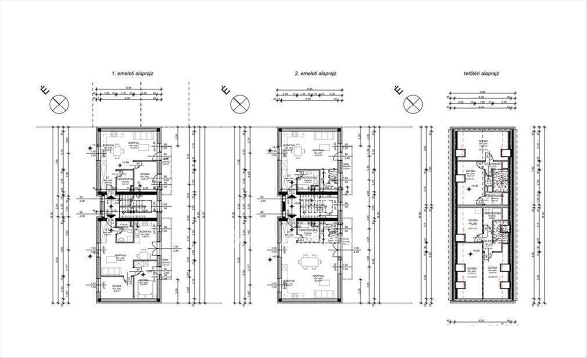
Eladó Lakás, Budapest 14. ker.
Új építésű, 4 szobás, duplafürdős lakás eladó zugló szívében augusztusi KÖLTÖZÉSSEL!Eladó Zugló központi részén, egy új építésű, mindössze 5 lakásos, modern társasházban egy belső kétszintes, 88 m2-es, 4 szobás, 2 fürdőszobás lakás, amely minden igényt kielégít! Főbb jellemzők:
88 m2-es, belső kétszintes kialakítás
4 kényelmes szoba
2 különálló fürdőszoba
Laminált parkettás szobák, modern hidegburkolatok
Erkély a csendes, hátsó udvar felé
Igényes, letisztult kivitelezés
Várható költözés: 2025. Augusztus
Lokáció:
Kiváló elhelyezkedés minden fontos közlekedési lehetőség pár perc sétára: buszmegállók, villamos, illetve a belváros gyorsan és könnyen elérhető.
A közelben található:
Bosnyák téri piac
Tesco, Árkád bevásárlóközpont
Iskolák, óvodák, orvosi rendelő, zöld parkok
Ideális választás nagyobb családoknak vagy befektetésre is, hiszen a lokáció és az elosztás kiváló bérbe adhatóságot biztosít.
99800000 Ft
Referencia szám: m305754 FIX 3% lakáshitelre megvehető


