Eladó jó állapotú lakás - Budapest XIV. kerület
- INGYENES HIRDETÉS FELADÁS
Ingatlan adatai
- Eladó vagy kiadó:Eladó
- Település:Budapest XIV. kerület
- Kategória:Lakás
- Alkategória:Tégla
- Alapterület:92 m2
- Csere is:Nem
- Hirdető:Cég
- Élő videón megtekinthető:Nem
- Szobaszám:3
- Állapot:Jó állapotú
- Hány szintes az ingatlan:Földszintes
- Komfortosság:nincs megadva
- Hányadik emeleti:4
- Erkély:nincs megadva
- Lift:Van
- Parkolási lehetőség:nincs megadva
- Fűtés:Egyéb
- Bútorozottság:nincs megadva
- Fényviszony:Napfényes
- Tájolás:DNY
- Kilátás:nincs megadva
- Internet:nincs megadva
- Klíma:nincs megadva
- Akadálymentesített:nincs megadva
- Energiatanúsítvány:nincs megadva
- Villany:Van
- Víz:Van
- Gáz:nincs megadva
- Csatorna:Van
- Kapcsolatfelvétel

Czira Magdolna
+36-(20)-983-1071
Mondd meg a hirdetőnek, hogy a megveszLAK-on találtad a hirdetést.
Referencia szám: LK045216
Hitel ajánlatok
Ingatlan hirdetés leírása
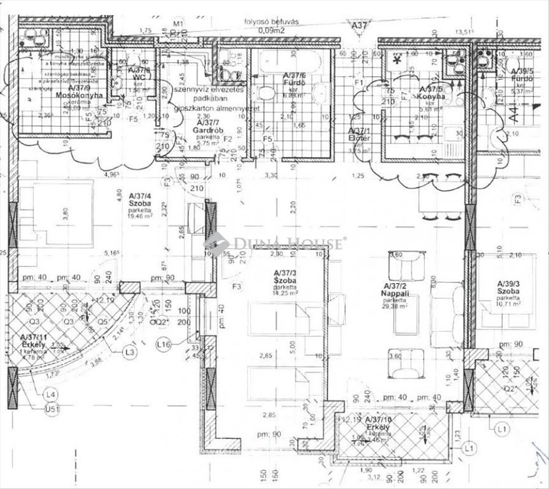
Eladó lakás, Budapest 14. ker.
A XIV. kerület és a VII. kerület határán elhelyezkedő közkedvelt istván park lakóparkban eladó egy 3 szobás, 92 nm + 2 erkélyes nagyon szép állapotú napfényes lakás, parkolóval és tárolóval
Az ingatlan a társasház 4. emeleti egysége, nagyvonalú térelosztással rendelkezik, nappali-étkező-konyha (35 m2), 2 hálószoba (19, 46 és 14. 25 m2) gardrób szobával, 2 db nagyméretű fürdőszobával (6. 88 És 9 m2), fedett teraszok (3. 45m2 és 4. 78 m2).
Amennyiben kényelmes otthont keres családjának, kiváló helyen Keleti pályaudvartól pár percre, a Récsei Center mellett, Zugló belvárossal határos részén, kérem keressen bizalommal.
Közlekedés: m2 Keleti pu, 5-ös busz, 7-es busz.
(Parkoló és tároló + 10m ft)
Referencia szám: lk045216 Hitel.hu - Hasonlítsa össze a bankok lakáshitel ajánlatait
Tetszett ez az eladó Budapest XIV. kerületi jó állapotú 3 szobás tégla lakás? Hívd fel a hirdetőt most, és tudj meg mindent erről az eladó tégla lakásról! Ha gondolod nézelődj tovább az eladó lakás Budapest XIV. kerület oldal hirdetései között. Ennek az eladó lakásnak az ára 156400000 Ft és mivel az alapterülete 92 négyzetméter, ezért az átlagos négyzetméterára 1700000 HUF/m2.
Az eladó lakások menüpontban további hirdetések között is böngészhetsz. Az összes eladó budapesti lakás hirdetést tartalmazó oldalon tudsz böngészni. Ha van kedved, akkor böngészhetsz a Czira Magdolna összes hirdetése között, vagy akár a/az Duna House Fót összes hirdetése között is.

