Eladó újszerű állapotú lakás - Budapest XIV. kerület
- INGYENES HIRDETÉS FELADÁS
Ingatlan adatai
- Feladva:67 napja a megveszLAK-on
- Eladó vagy kiadó:Eladó
- Település:Budapest XIV. kerület
- Kategória:Lakás
- Alkategória:Tégla
- Alapterület:73 m2
- Csere is:Nem
- Hirdető:Cég
- Élő videón megtekinthető:Nem
- Szobaszám:3
- Állapot:Újszerű, kitűnő
- Hány szintes az ingatlan:nincs megadva
- Komfortosság:nincs megadva
- Hányadik emeleti:nincs megadva
- Erkély:nincs megadva
- Lift:nincs megadva
- Parkolási lehetőség:nincs megadva
- Fűtés:nincs megadva
- Bútorozottság:nincs megadva
- Fényviszony:nincs megadva
- Tájolás:NY
- Kilátás:Kertre néző
- Internet:nincs megadva
- Klíma:nincs megadva
- Akadálymentesített:nincs megadva
- Energiatanúsítvány:nincs megadva
- Villany:Van
- Víz:Van
- Gáz:nincs megadva
- Csatorna:Van
- Kapcsolatfelvétel

Radnai Orsolya
+36-(70)-388-5711
Mondd meg a hirdetőnek, hogy a megveszLAK-on találtad a hirdetést.
Hitel ajánlatok
Ingatlan hirdetés leírása
Budapest XIV. kerületének egyik legkedveltebb, kertvárosi rész...
Budapest XIV. kerületének egyik legkedveltebb, kertvárosi részén, a Zugló szívében, a Rákospatak vonzáskörzetében, egy forgalomtól mentes kis utcában kínálunk megvételre ezt a különleges ingatlant.
A fiatal építész-tervező csapat egy igazán egyedi koncepciót álmodott meg: a klasszikus, eredeti homlokzati karakter harmonikusan ötvöződik a modern, letisztult és funkcionális formavilággal. a belsőépítész a családias, bensőséges hangulat megteremtésére helyezte a hangsúlyt, így az otthonok egyszerre sugároznak eleganciát és melegséget.
A kialakítás
Az ingatlanban két különálló lakás kerül kialakításra.
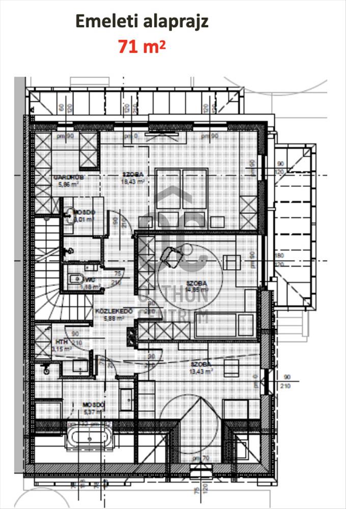
Emeleti lakás:
- 73 m² alapterület
- Világos, jól variálható belső terek
- 70 nm saját kert
- a szobaméretek jelen készültségi fokban még alakíthatóak
- autóbeálló
Műszaki tartalom:
- Korszerű, energiatakarékos hőszivattyús hűtés–fűtés rendszer
- Igényes, modern műszaki megoldások
- Átgondolt térszervezés
Az ingatlan jelenlegi készültségi szintjén még lehetőség van:
- Burkolatok kiválasztására
- Belső elrendezés igény szerinti alakítására
Így az új tulajdonos valóban saját igényeire szabhatja leendő otthonát.
Rendelkezésre álló dokumentáció:
Az építkezés teljes körű, rendezett műszaki háttérrel rendelkezik:
- Egyszerű bejelentési dokumentáció lakóépület bővítésére (Zuglói főépítész által elfogadva, 2022. Február)
- Méretezett alaprajzok (pince, földszint, emelet)
- Metszetrajzok, rétegrendek, anyaghasználati tervek
- Épületgépészeti és épületvillamossági rendszerleírások
- Teljes műszaki tervdokumentáció
- Tartószerkezeti és tetőszerkezeti tervek
- Vasalási tervek (alapozás, pincefödém, földszint feletti födém, tetőszerkezet)
- Vasmennyiségi kimutatások
- Anyagok
- a pince- és földszinti födémhez a teljes betonvas mennyiség rendelkezésre áll
Tervezett átadás 4-6 hónapon belül.
A kivitelező számos referenciával rendelkezik.
Ez az ingatlan ideális választás lehet:
- többgenerációs családoknak,
- befektetőknek (külön hasznosítható lakrészek),
- vagy azoknak, akik modern, mégis otthonos környezetben szeretnének élni Zugló egyik legnyugodtabb utcájában.
Ha egy különleges karakterű, személyre szabható otthont keres kertvárosi környezetben, ez az ingatlan kivételes lehetőség. FIX 3% lakáshitelre megvehető
Tetszett ez az eladó Budapest XIV. kerületi újszerű állapotú 3 szobás tégla lakás? Hívd fel a hirdetőt most, és tudj meg mindent erről az eladó tégla lakásról! Ha gondolod nézelődj tovább az eladó lakás Budapest XIV. kerület oldal hirdetései között. Ennek az eladó lakásnak az ára 99000000 Ft és mivel az alapterülete 73 négyzetméter, ezért az átlagos négyzetméterára 1356164 HUF/m2.
Az eladó lakások menüpontban további hirdetések között is böngészhetsz. Az összes eladó budapesti lakás hirdetést tartalmazó oldalon tudsz böngészni. Ha van kedved, akkor böngészhetsz a Radnai Orsolya összes hirdetése között, vagy akár a/az Otthon Centrum XIII. kerület - Béke Residence összes hirdetése között is.

