Eladó új építésű lakás - Budapest XIX. kerület
- INGYENES HIRDETÉS FELADÁS
Ingatlan adatai
- Eladó vagy kiadó:Eladó
- Település:Budapest XIX. kerület
- Kategória:Lakás
- Alkategória:Tégla
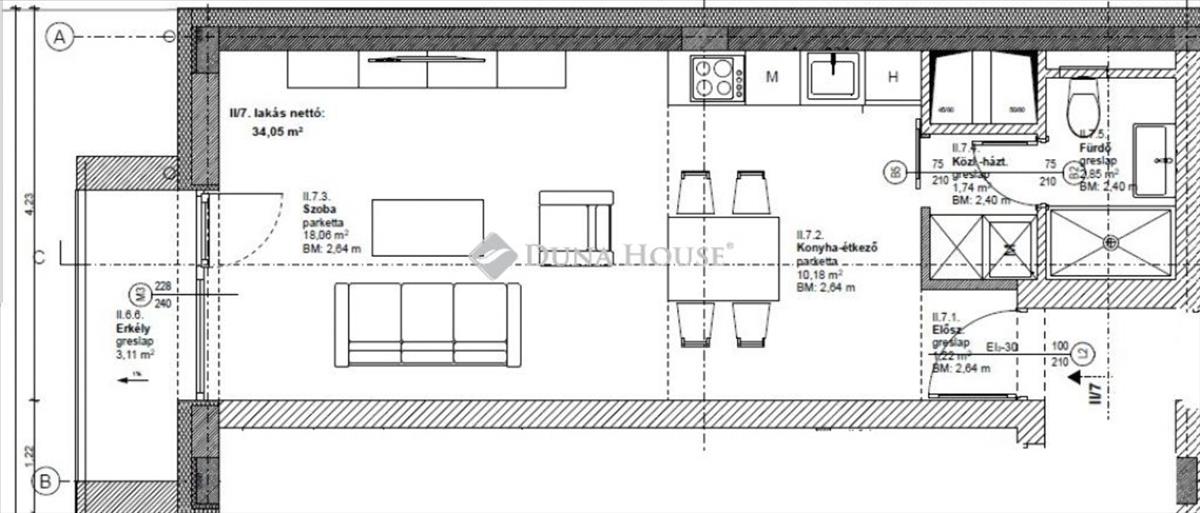
- Alapterület:35 m2
- Csere is:Nem
- Hirdető:Cég
- Élő videón megtekinthető:Nem
- Szobaszám:1
- Állapot:Új építésű
- Hány szintes az ingatlan:Földszintes
- Komfortosság:nincs megadva
- Hányadik emeleti:2
- Erkély:Van
- Lift:Van
- Parkolási lehetőség:nincs megadva
- Fűtés:Hőszivattyús
- Bútorozottság:nincs megadva
- Fényviszony:nincs megadva
- Tájolás:ÉK
- Kilátás:nincs megadva
- Internet:nincs megadva
- Klíma:nincs megadva
- Akadálymentesített:nincs megadva
- Energiatanúsítvány:A+
- Villany:Van
- Víz:Van
- Gáz:nincs megadva
- Csatorna:Van
- Kapcsolatfelvétel

Tóth Beáta
+36-(30)-074-4740
Mondd meg a hirdetőnek, hogy a megveszLAK-on találtad a hirdetést.
Referencia szám: PR021988/LK/26177
Hitel ajánlatok
Ingatlan hirdetés leírása
Eladó lakás, Budapest 19. ker.
Budapest 19. kerületében, a köki Terminál szomszédságában új építésű társasházi lakások hőszivattyús fűtéssel, magas műszaki tartalommal, kivételes lokációval!
Befektetésnek is kitűnő lehetőség! !
Műszaki adatok:
- főfal: 30-as főfalak
- válaszfal: Porotherm 10 n+f válaszfallap
- energiatakarékos hőszivattyús rendszer padlófűtéssel (lakáson belül helyiségenként egyedi mérővel)
- a melegvizet hőszivattyú állítja elő a tárolásról pedig hmv gondoskodik
- 20 cm Rockwool kőzetgyapot homlokzati szigetelés
- hűtés magas oldalfali fan-coilokkal (hőszivattyú) felár ellenében
- 3 üvegrétegű, 6 kamrás hőszigetelt, műanyag nyílászárók
- szaniterek, meleg- és hidegburkolatok, valamint beltéri ajtók még választhatók
- gépkocsibeálló igény szerint vásárolható - 4 M Ft / db
- Lift (13 személyes, 1000 kg teherbírású személyfelvonó)
Már 40%- al foglalható, építési ütemnek megfelelő fizetési ütemezéssel!
Az építtető cég, így minden állami támogatás igénybe vehető!
Várható átadás: 2026. IV. Negyedév
Teljes műszaki leírás, dokumentáció megtekinthető irodánkban!
Referencia szám: pr021988/lk/26177 Hitel.hu - Hasonlítsa össze a bankok lakáshitel ajánlatait
Tetszett ez az eladó Budapest XIX. kerületi új építésű 1 szobás tégla lakás? Hívd fel a hirdetőt most, és tudj meg mindent erről az eladó tégla lakásról! Ha gondolod nézelődj tovább az eladó lakás Budapest XIX. kerület oldal hirdetései között. Ennek az eladó lakásnak az ára 53400000 Ft és mivel az alapterülete 35 négyzetméter, ezért az átlagos négyzetméterára 1525714 HUF/m2.
Az eladó lakások menüpontban további hirdetések között is böngészhetsz. Az összes eladó budapesti lakás hirdetést tartalmazó oldalon tudsz böngészni. Ha van kedved, akkor böngészhetsz a Tóth Beáta összes hirdetése között, vagy akár a/az Duna House Szent Imre-kertváros összes hirdetése között is.

