Eladó új építésű lakás Budapest XIX. kerület
| Kedvencbe | Megosztás | Árfigyelő |
| FIX 3% lakáshitelre megvehető | ||
| 59 900 000 HUF | ||
Ingatlan adatai
- Eladó vagy kiadó:Eladó
- Település:Budapest XIX. kerület
- Kategória:Lakás
- Alkategória:Tégla
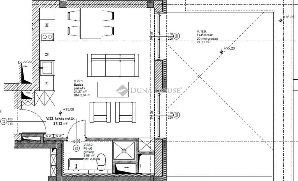
- Alapterület:40 m2
- Csere is:Nem
- Hirdető:Cég
- Élő videón megtekinthető:Nem
- Szobaszám:1
- Állapot:Új építésű
- Hány szintes az ingatlan:Földszintes
- Komfortosság:nincs megadva
- Hányadik emeleti:5
- Lift:Van
- Parkolási lehetőség:nincs megadva
- Fűtés:Hőszivattyús
- Bútorozottság:nincs megadva
- Fényviszony:nincs megadva
- Tájolás:ÉK
- Kilátás:nincs megadva
- Internet:nincs megadva
- Klíma:Van
- Akadálymentesített:nincs megadva
- Energiatanúsítvány:A
- Villany:Van
- Víz:Van
- Gáz:nincs megadva
- Csatorna:Van
- Üzenetküldés
- Hívás

Referencia szám: PR021988/LK/27667

Hitel ajánlat
Ingatlan hirdetés leírása
Eladó lakás, Budapest 19. ker.
Budapest 19. kerületében, a köki Terminál szomszédságában új építésű társasházi lakások hőszivattyús fűtéssel, magas műszaki tartalommal, kivételes lokációval!Befektetésnek is kitűnő lehetőség! ! Műszaki adatok:- főfal: 30-as főfalak- válaszfal: Porotherm 10 n+f válaszfallap- energiatakarékos hőszivattyús rendszer padlófűtéssel (lakáson belül helyiségenként egyedi mérővel)- a melegvizet hőszivattyú állítja elő a tárolásról pedig hmv gondoskodik- 20 cm Rockwool kőzetgyapot homlokzati szigetelés- hűtés magas oldalfali fan-coilokkal (hőszivattyú) felár ellenében- 3 üvegrétegű, 6 kamrás hőszigetelt, műanyag nyílászárók- szaniterek, meleg- és hidegburkolatok, valamint beltéri ajtók még választhatók- gépkocsibeálló igény szerint vásárolható - 4 M Ft / db - Lift (13 személyes, 1000 kg teherbírású személyfelvonó)
Már 10%- al foglalható, építési ütemnek megfelelő fizetési ütemezéssel! Az építtető cég, így minden állami támogatás igénybe vehető! Megbízható kivitelező több, környéken átadott referenciával!
Várható átadás: 2026. IV. NegyedévTeljes műszaki leírás, dokumentáció megtekinthető irodánkban!
Referencia szám: pr021988/lk/27667-ml FIX 3% lakáshitelre megvehető

