Eladó új építésű lakás - Budapest XV. kerület
- INGYENES HIRDETÉS FELADÁS
Ingatlan adatai
- Eladó vagy kiadó:Eladó
- Település:Budapest XV. kerület
- Kategória:Lakás
- Alkategória:Tégla
- Alapterület:82 m2
- Csere is:Nem
- Hirdető:Cég
- Élő videón megtekinthető:Nem
- Szobaszám:4
- Állapot:Új építésű
- Hány szintes az ingatlan:Földszintes
- Komfortosság:nincs megadva
- Hányadik emeleti:1
- Erkély:nincs megadva
- Lift:Nincs
- Parkolási lehetőség:Udvaron
- Fűtés:Hőszivattyús
- Bútorozottság:nincs megadva
- Fényviszony:Napfényes
- Tájolás:DNY
- Kilátás:nincs megadva
- Internet:nincs megadva
- Klíma:Van
- Akadálymentesített:nincs megadva
- Energiatanúsítvány:A+
- Villany:Van
- Víz:Van
- Gáz:nincs megadva
- Csatorna:Van
- Kapcsolatfelvétel

Domjánné Puskás Margit
+36-(30)-415-3675
Mondd meg a hirdetőnek, hogy a megveszLAK-on találtad a hirdetést.
Referencia szám: PR063253/LK/27681
Hitel ajánlatok
Ingatlan hirdetés leírása
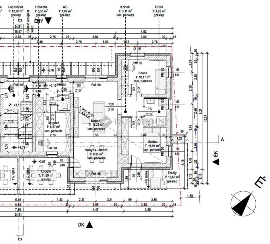
Eladó lakás, Budapest 15. ker.
A 15. kerületben, kítűnő közlekedéssel, közel az m3 bevezetőhöz, de mégis csendes, nyugodt, frissen alakított új építésű részen épül ez a 4 lakásos társasház, két emeleti és két földszinti lakás kialakításával.
A földszinti lakásokhoz kertkapcsolat tartozik és az ingatlanon belül kialakított garázs, az emeleti lakásokhoz felszíni beálló kapcsolódik majd. a földszinti lakásokhoz fedett terasz, míg az emeleti lakásokhoz lakásonként egy tágas erkély és egy loggia is kialakításra kerül. a földszinti lakások nappali + 2 szobás kialakításúak, az emeleti lakások pedig nappali + 3 szoba kínálta tágas terekkel várják leendő lakóikat.
A tetőtérben 4 tároló lesz kialakítva, melyek darabonként 2, 5 MFt-ért lesznek megvásárolhatóak igény esetén.
Otthon Start hitellel is megvásárolhatóak a lakások!
Az építkezés 2026. Márciusában kezdődött el, minden engedély rendelkezésre áll.
A lakások átadása 2027. Szeptemberében várható.
Ez a lakás az emeleten helyezkedik el, nappali + 3 hálós, nagy erkély plusz egy loggia kialakítással, opcionálisan megvásárolható felszíni autóbeállóval és a tetőtérben kilakított tárolóval.
Irányár: 106900000 Ft
Várom a hívását, ha bármelyik ingatlannal kapcsolatban érdeklődik! Ha meghagyja a telefonszámát, visszahívom. :)
Puskás Margó (+36 30 415 3675)
Referencia szám: pr063253/lk/27681-ml Hitel.hu - Hasonlítsa össze a bankok lakáshitel ajánlatait
Tetszett ez az eladó Budapest XV. kerületi új építésű 4 szobás tégla lakás? Hívd fel a hirdetőt most, és tudj meg mindent erről az eladó tégla lakásról! Ha gondolod nézelődj tovább az eladó lakás Budapest XV. kerület oldal hirdetései között. Ennek az eladó lakásnak az ára 106900000 Ft és mivel az alapterülete 82 négyzetméter, ezért az átlagos négyzetméterára 1303659 HUF/m2.
Az eladó lakások menüpontban további hirdetések között is böngészhetsz. Az összes eladó budapesti lakás hirdetést tartalmazó oldalon tudsz böngészni. Ha van kedved, akkor böngészhetsz a Domjánné Puskás Margit összes hirdetése között, vagy akár a/az Duna House Budakalász összes hirdetése között is.

