Eladó új építésű lakás Budapest XV. kerület
| Kedvencbe | Megosztás | Árfigyelő |
| FIX 3% lakáshitelre megvehető | ||
| 78 450 000 HUF | ||
Ingatlan adatai
- Eladó vagy kiadó:Eladó
- Település:Budapest XV. kerület
- Kategória:Lakás
- Alkategória:Tégla
- Alapterület:65 m2
- Csere is:Nem
- Hirdető:Cég
- Élő videón megtekinthető:Nem
- Szobaszám:3
- Állapot:Új építésű
- Hány szintes az ingatlan:3 szintes
- Komfortosság:Összkomfortos
- Hányadik emeleti:nincs megadva
- Parkolási lehetőség:nincs megadva
- Fűtés:nincs megadva
- Bútorozottság:nincs megadva
- Fényviszony:nincs megadva
- Tájolás:nincs megadva
- Kilátás:Utcai
- Internet:nincs megadva
- Akadálymentesített:nincs megadva
- Energiatanúsítvány:nincs megadva
- Villany:nincs megadva
- Víz:nincs megadva
- Gáz:nincs megadva
- Csatorna:nincs megadva
- Üzenetküldés
- Hívás


Hitel ajánlat
Ingatlan hirdetés leírása
XV. KERÜLETBEN: FREKVENTÁLT RÉSZEN, ELADÓ ÚJ ÉPÍTÉSŰ, 65,36 M2...
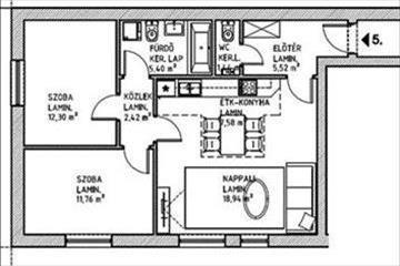
XV. kerületben: frekventált részen, eladó új építésű, 65, 36 m2, amerikai konyhás nappalis, 2 szobás, i. emeleti társasházi TÉGLALAKÁS.A lakás JELLEMZŐI:
A lakás várható átadási határideje 2026 év vége. a társasház 7 lakásos lesz, 3 szintes, 30-as porotherm téglából épül, amelyet egy 10 cm-es grafitos szigeteléssel is ellátnak majd.
A lakásban tágas amerikai konyhás nappali, 2 szoba, fürdőszoba, előszoba, közlekedő és mellékhelyiség kerül kialakításra.
A nyílászárók 6 légkamrás, 3 rétegű hőszigetelt ablakok lesznek. a fűtést kondenzációs kazán fogja biztosítani, a hideg burkolatok alatt padlófűtés kerül kialakításra, a szobákban pedig lapradiátorokat szerelnek fel és 1 hűtő-fűtő klímát.
Az ár tartalmazza a burkolatok, szerelvények és szaniterek beépítését, az anyag árat nem.
Igény esetén extra költséggel kérhető: elektromos redőny, kamera, riasztó, konyhabútor, beépített szekrények.
Lehetőség van plusz tároló (2. 000. 000 Ft/db), illetve udvari autóbeálló (2. 500. 000 Ft/db. ) Vásárlásához.
Referencia ingatlanok megtekintése is lehetséges.
FINANSZÍROZÁS:
Az ingatlan tehermentes lesz, hitelre is megvásárolható. Bankfüggetlen tanácsadóink, az ország összes pénzintézete közül gyorsan és gördülékenyen találja meg az Önnek legmegfelelőbb konstrukciót, egyedi kedvezményekkel. a hitel közvetítés díjmentes.
Várjuk hívását munkanapokon 09:00-18:00 között.
A hirdetésben szereplő adatok tájékoztató jellegűek.
Amennyiben eladná saját ingatlanát, több mint 10 éve működő, kifejezetten a kerületre szakosodott irodánktól, ingyenes értékbecslést kérhet. FIX 3% lakáshitelre megvehető

