Eladó újszerű állapotú lakás - Budapest XV. kerület
- INGYENES HIRDETÉS FELADÁS
Ingatlan adatai
- Feladva:46 napja a megveszLAK-on
- Eladó vagy kiadó:Eladó
- Település:Budapest XV. kerület
- Kategória:Lakás
- Alkategória:Tégla
- Alapterület:167 m2
- Csere is:Nem
- Hirdető:Cég
- Élő videón megtekinthető:Nem
- Szobaszám:7
- Állapot:Újszerű, kitűnő
- Hány szintes az ingatlan:Földszintes
- Komfortosság:nincs megadva
- Hányadik emeleti:2
- Erkély:nincs megadva
- Lift:Nincs
- Parkolási lehetőség:nincs megadva
- Fűtés:Hőszivattyús
- Bútorozottság:nincs megadva
- Fényviszony:Napfényes
- Tájolás:DNY
- Kilátás:nincs megadva
- Internet:nincs megadva
- Klíma:Van
- Akadálymentesített:nincs megadva
- Energiatanúsítvány:A
- Villany:Van
- Víz:Van
- Gáz:nincs megadva
- Csatorna:Van
- Kapcsolatfelvétel

Gyarmati Tibor
+36-(70)-375-7335
Mondd meg a hirdetőnek, hogy a megveszLAK-on találtad a hirdetést.
Referencia szám: LK065963
Hitel ajánlatok
Ingatlan hirdetés leírása
Eladó lakás, Budapest 15. ker.
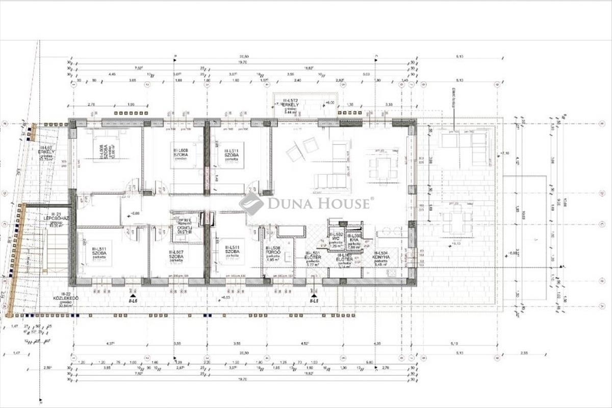
Prémium teraszos otthon jakuzzival a XV. kerületbena lakás166 m² lakótérTágas, 55 m²-es nappali+étkező+konyha egy légtérben6 hálószoba (12 nm -es szobák)2 Fürdőszoba + külön WCEgyedi tervezésű, beépített bútorok szinte minden helyiségbenTERASZ & wellness ÉLMÉNYÖsszesen 68 m² terasz (6 m² + 10 m² + 52 m²)20 m² télikert (eltolható üvegfallal)Jakuzzi műszaki tartalom & KÖLTSÉGEKHőszivattyús mennyezeti hűtés + padlófűtésKözös költség: 46. 000 FtBeépített bútorok, gépek és a jakuzzi a vételár részét képezikPARKOLÁS & tárolás2 db garázs (6 M ft/ db) + 2 db tároló (2m Ft/ db)Kötelezően megvásárolandó: +16 M FtIgény esetén könnyen bérbe adható a házon belülLOKÁCIÓXV. kerület csendes, nyugodt környezetJó közlekedés, kiváló infrastruktúra a közelbenMIÉRT KÜLÖNLEGES? Valódi prémium kivitelezéshatalmas, jól használható teraszoksaját wellness élmény otthonalacsony rezsiazonnal költözhető, kompromisszumok nélkülHa egy igazán különleges otthont keresel, amit ritkán találni a piacon, ez a lakás neked szól. Hitel.hu - Hasonlítsa össze a bankok lakáshitel ajánlatait
Tetszett ez az eladó Budapest XV. kerületi újszerű állapotú 7 szobás tégla lakás? Hívd fel a hirdetőt most, és tudj meg mindent erről az eladó tégla lakásról! Ha gondolod nézelődj tovább az eladó lakás Budapest XV. kerület oldal hirdetései között. Ennek az eladó lakásnak az ára 229000000 Ft és mivel az alapterülete 167 négyzetméter, ezért az átlagos négyzetméterára 1371257 HUF/m2.
Az eladó lakások menüpontban további hirdetések között is böngészhetsz. Az összes eladó budapesti lakás hirdetést tartalmazó oldalon tudsz böngészni. Ha van kedved, akkor böngészhetsz a Gyarmati Tibor összes hirdetése között, vagy akár a/az Duna House József körút összes hirdetése között is.

