Eladó jó állapotú lakás Budapest XVII. kerület
| Kedvencbe | Megosztás | Árfigyelő |
| Kedvezményes lakáshitel ajánlatok | ||
| 105 000 000 HUF | ||
Ingatlan adatai
- Eladó vagy kiadó:Eladó
- Település:Budapest XVII. kerület
- Kategória:Lakás
- Alkategória:Tégla
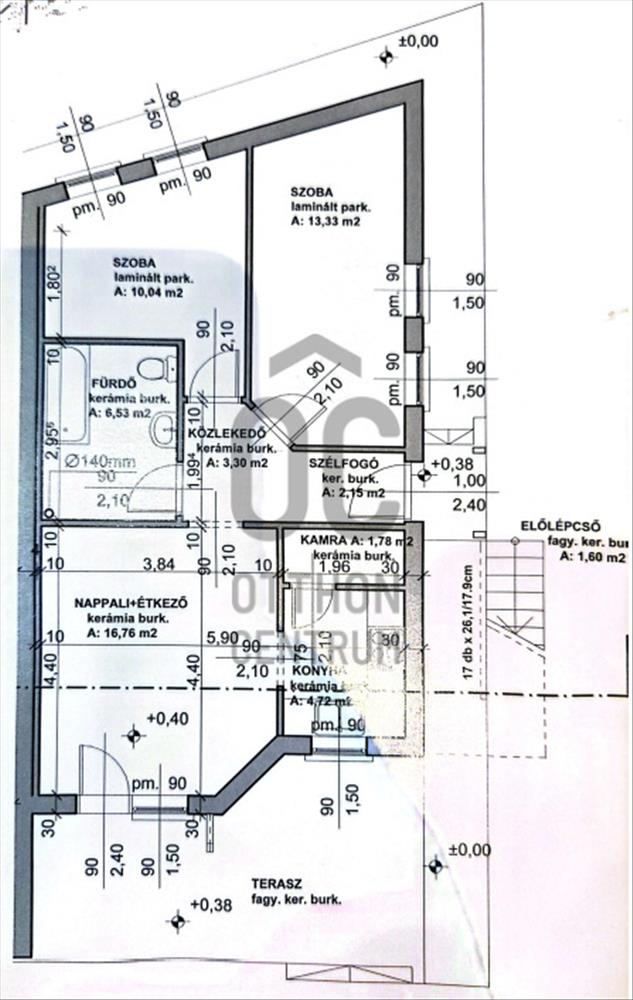
- Alapterület:60 m2
- Csere is:Nem
- Hirdető:Cég
- Élő videón megtekinthető:Nem
- Szobaszám:3
- Állapot:Jó állapotú
- Hány szintes az ingatlan:nincs megadva
- Komfortosság:nincs megadva
- Kertkapcsolatos:Igen
- Hányadik emeleti:nincs megadva
- Erkély:Van
- Parkolási lehetőség:nincs megadva
- Fűtés:Gáz (cirko)
- Bútorozottság:nincs megadva
- Fényviszony:nincs megadva
- Tájolás:DNY
- Kilátás:Udvari
- Internet:nincs megadva
- Akadálymentesített:nincs megadva
- Energiatanúsítvány:nincs megadva
- Villany:Van
- Víz:Van
- Gáz:Van
- Csatorna:Van
- Közös költség:15 000 Ft
- Üzenetküldés
- Hívás


Hitel ajánlat
Ingatlan hirdetés leírása
Eladásra kínálok egy minden igényt kielégítő, földszinti, 60 m...
Eladásra kínálok egy minden igényt kielégítő, földszinti, 60 m²-es, kertkapcsolatos rezidenciát Rákoshegy legkedveltebb részén, a Helikopter lakópark egyik csendes, átmenő forgalomtól mentes mellékutcájában. Ez az ingatlan tökéletes ötvözete a társasházi kényelemnek és a privát kertes ház élményének.Miért ez az ingatlan a legjobb választás a környéken?
Privát szféra és nyugalom: a mindössze 6 lakásos, rendezett lakóközösségű társasház legbelső lakása, így a zavartalan csend garantált.
Saját oázis: a lakáshoz egy 22 m²-es, részben fedett, árnyékolóval felszerelt terasz és egy 35 m²-es, kizárólagos használatú hátsókert tartozik. Ideális helyszín reggeli kávézáshoz, esti borozáshoz vagy családi sütögetéshez.
Benapozott terek: a Dél-Keleti fekvésnek köszönhetően a lakás egész nap fényárban úszik, ami pozitív hatással van az életminőségre és a rezsiköltségekre is.
Műszaki tartalom és felszereltség (Ami az értéket növeli):
Korszerű gépészet: Kombi cirkó fűtés egyedi mérőórákkal – csak azt fizeti, amit elfogyaszt!
Komfort extra: Frissen felszerelt hűtő-fűtő klíma gondoskodik a tökéletes hőmérsékletről minden évszakban.
Minőségi nyílászárók: 5 kamrás, UV-stabil műanyag ablakok redőnnyel és szúnyoghálóval a maximális hang- és hőszigetelésért.
Biztonságos parkolás: a vételár részét képezi a telken belüli, frissen térkövezett felszíni beálló, mely távirányítós kapun keresztül érhető el.
Praktikum és design:
A belső elosztás kiváló: tágas amerikai konyhás nappali, két külön nyíló hálószoba és egy kényelmes, sarokkádas fürdőszoba alkotja az otthon egységét. Az ingatlan vételára tartalmazza:
A beépített gépekkel felszerelt modern konyhabútort.
Az egyedi világítással ellátott, tágas gardróbszekrényt.
A teraszon elhelyezett praktikus szerszámos szekrényt.
Lokáció – Minden egy karnyújtásnyira:
A lakópark infrastruktúrája egyedülálló: óvoda, üzletek, cukrászda és játszótér sétatávolságra. a természet szerelmeseinek a Keresztúri parkerdő (5 perc séta) kínál futópályát, tanösvényt és kikapcsolódási lehetőséget. Közlekedés: Kiváló összeköttetés az Örs vezér tere és Rákoskeresztúr központja felé (buszmegálló 2 percre).
Az ingatlan per- és tehermentes, azonnal gördülékenyen megvásárolható.
Ez a lakás nem csupán egy ingatlan, hanem egy életforma. Olyan igényes új tulajdonost keresünk, aki értékeli a minőséget és a nyugalmat.
Ne maradjon le erről a ritka lehetőségről! Várom megtisztelő hívását a hét bármely napján! Hitel.hu - Hasonlítsa össze a bankok lakáshitel ajánlatait

