Eladó új építésű lakás - Budapest XVIII. kerület
- INGYENES HIRDETÉS FELADÁS
Ingatlan adatai
- Eladó vagy kiadó:Eladó
- Település:Budapest XVIII. kerület
- Kategória:Lakás
- Alkategória:Tégla
- Alapterület:69 m2
- Csere is:Nem
- Hirdető:Cég
- Élő videón megtekinthető:Nem
- Szobaszám:3
- Állapot:Új építésű
- Hány szintes az ingatlan:nincs megadva
- Komfortosság:Összkomfortos
- Hányadik emeleti:1
- Erkély:Van
- Lift:Van
- Parkolási lehetőség:Garázsban
- Fűtés:nincs megadva
- Bútorozottság:nincs megadva
- Fényviszony:nincs megadva
- Tájolás:nincs megadva
- Kilátás:nincs megadva
- Internet:nincs megadva
- Klíma:nincs megadva
- Akadálymentesített:nincs megadva
- Energiatanúsítvány:nincs megadva
- Villany:Van
- Víz:Van
- Gáz:Van
- Csatorna:Van
- Kapcsolatfelvétel

Metykó András
+36-(20)-272-9735
Mondd meg a hirdetőnek, hogy a megveszLAK-on találtad a hirdetést.
Ingatlan hirdetés leírása
ELADÓ Társasház LAKÁS BUDAPEST XVIII. KERÜLET; HŐSZIVATTYÚ ; H...
Hitelezhető! – Eladó I. emeleti Társasházi Lakás Budapest XVIII ker. , Csendes, családi házas részén – kizárólag a Családi Ingatlan kínálatában.
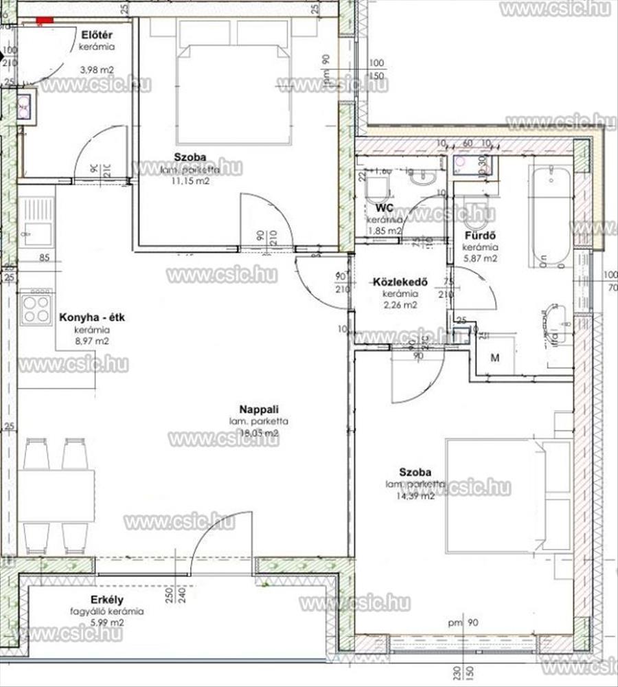
Újépítésű kulcsrakész i. emeleti Társasházi lakás eladó Budapest XVIII. kerületben a Bókay kert közelében 66, 5 m2 lakóterülettel, Nappali-Konyha-Étkezővel + 2 hálóval, fürdőszobával, külön wc vel és 6 m2-es terasszal. a világos társasházi lakás nagyon jó közlekedés mellett, családi házas övezetben épül, referenciákkal rendelkező kivitelezővel!
IDÉN már tető alatt lesz, a nyílászárók is beszerelésre kerülnek!
Fizetési ütemezés:
• megfelel a 3%-os otthon start hitel programnak
• kb. 30%-Nál kevesebb önerőt nem fogadunk el
• az önerő, ha jelen pillanatban még egy másik ingatlanban van (eladandó lakás)- természetesen nem akadály
• nagyobb önerővel rendelkező ügyfeleinknek kedvezményeket tudunk biztosítani
Az eladó társasházi lakás főbb műszaki jellemzői:
• Tégla falazat + 15 cm-es homlokzati szigetelés
• Fokozott tetőszigetelés
• hőszivattyús fűtés és hűtésrendszer egyedi méréssel
• 3 rétegű hang és hőszigetelő műanyag nyílászárók belül fehér, kívül antracit színben
• nagyon alacsony rezsi
• minden szobában tv és it előkészítés
• riasztó és redőny ( doboz és a lefutók kiépítve ) előkészítés
• választható burkolatok és szaniterek és belső ajtók
Az eladó társasházi lakás további jellemzői:
• Lift
• Közös biciklitároló
• Társasházi kert
• közösségi terek
• parkoló helyek: fedett, félig fedett, vagy külső parkolók további ( 5, 5 mft; 4, 5MFt; 3 MFt) - ba kerülnek
• a tárolók ( 4m2 esek) további: 1, 7 MFt –ba kerülnek
Az lakás magas műszaki tartalommal épül, az ár kulcsrakész ár, tartalmazza a választható burkolatokat és szanitereket, a konyhabútor nem része az árnak. a kivitelező rugalmas a belső alaprajzi kialakításban.
A belső fotók és látványtervek illusztrációk, tájékoztató jellegűek
Ajánlom ezt az ingatlant azoknak, akik csendes, kellemes környezetben szeretnének, új építésű energia takarékos kényelmes otthonban élni. Közlekedése autóval és gyalogosan is kiváló, villamos és vonatmegálló is a közelben. Az építkezés megfelelő ütemben halad, átadás: 2026 szeptember. FIX 3% lakáshitelre megvehető


