- >>
- eladó ingatlanok
- >>
- eladó lakás
- >>
- eladó lakás Budapest XVIII. kerület
- >>
Eladó új építésű lakás - Budapest XVIII. kerület
| | |||
| Kedvencnek jelölöm | Elküldöm emailben | Megosztás | Szavazás |
| Kedvezményes lakáshitel ajánlatok | |||
| 144 000 000 HUF | |||
Ingatlan adatai
- Eladó vagy kiadó:Eladó
- Település:Budapest XVIII. kerület
- Kategória:Lakás
- Alkategória:Tégla
- Alapterület:140 m2
- Csere is:Nem
- Hirdető:Cég
- Élő videón megtekinthető:Nem
- Szobaszám:4
- Állapot:Új építésű
- Hány szintes az ingatlan:Földszintes
- Komfortosság:nincs megadva
- Hányadik emeleti:Földszint
- Lift:Nincs
- Parkolási lehetőség:Garázsban
- Fűtés:Hőszivattyús
- Bútorozottság:nincs megadva
- Fényviszony:Napfényes
- Tájolás:DNY
- Kilátás:nincs megadva
- Internet:nincs megadva
- Akadálymentesített:nincs megadva
- Energiatanúsítvány:A++
- Villany:Van
- Víz:Van
- Gáz:nincs megadva
- Csatorna:Van
- Üzenetküldés
- Hívás

Referencia szám: 3620161

Hitel ajánlat
Ingatlan hirdetés leírása
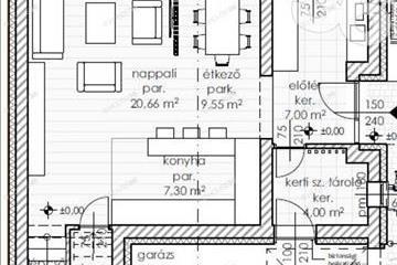
Új építésű ikerházi lakás - Eladó Pestimre Újpéteri-telepen!
Budapest XVIII. kerületében, Pestszentimre Újpéteri-telepen eladó lakás, egy kétlakásos, új építésű ikerházban!Főbb jellemzői:
- 681 m2 telek, osztatlan közös tulajdonú
- 140 m2-es lakás, két szinten nappali+3 szobás
- Földszinten nappali-étkező-konyha, wc, tároló, lépcsőház, garázsból is nyíló bejárat
- Emeleten 3 szoba, fürdő-wc, gardrób
- Fűtött garázs az épület közepén
- Hőszivattyús fűtés, kiváló fal és födémszigetelés, műanyag nyílászárók, a++ energetika
- Saját kertrész, lemez kerítés
- Szerkezetkész állapotú, 40%-os készültségben. Befejezés rövid határidővel
- Finanszírozás 40% kezdő részlettel, csok+ hitel igénybe vehető
Ha a hirdetés felkeltette érdeklődését, szeretné megtekinteni ezt a remek lehetőséget, illetve eladó vagy kiadó ingatlana van, forduljon hozzám bizalommal!
Szolgáltatásaink kereső ügyfeleink számára ingyenesek!
Amennyiben hitelt venne igénybe, szakértőink készséggel állnak rendelkezésére.
Figyelem! Az adatlap Megbízónktól kapott adatok alapján készült, pontosságáért felelősséget nem tudunk vállalni!
Az iroda legfrissebb, aktuális kínálatát a house36 saját weboldalán találja! Hitel.hu - Hasonlítsa össze a bankok lakáshitel ajánlatait

