Eladó részlegesen felújított lakás - Budapest XX. kerület
- INGYENES HIRDETÉS FELADÁS
Ingatlan adatai
- Feladva:4 hónapja a megveszLAK-on
- Eladó vagy kiadó:Eladó
- Település:Budapest XX. kerület
- Kategória:Lakás
- Alkategória:Tégla
- Alapterület:55 m2
- Csere is:Nem
- Hirdető:Cég
- Élő videón megtekinthető:Nem
- Szobaszám:2
- Állapot:Részlegesen felújított
- Hány szintes az ingatlan:nincs megadva
- Komfortosság:nincs megadva
- Hányadik emeleti:3
- Erkély:nincs megadva
- Lift:Nincs
- Parkolási lehetőség:nincs megadva
- Fűtés:nincs megadva
- Bútorozottság:nincs megadva
- Fényviszony:nincs megadva
- Tájolás:nincs megadva
- Kilátás:nincs megadva
- Internet:nincs megadva
- Klíma:nincs megadva
- Akadálymentesített:nincs megadva
- Energiatanúsítvány:nincs megadva
- Villany:nincs megadva
- Víz:nincs megadva
- Gáz:nincs megadva
- Csatorna:nincs megadva
- Kapcsolatfelvétel
ingatlanTanya.eu
+36-(30)-919-0769
Mondd meg a hirdetőnek, hogy a megveszLAK-on találtad a hirdetést.
Hitel ajánlatok
Ingatlan hirdetés leírása
PESTERZSÉBET, BAROSS UTCÁBAN 2 SZOBÁS AZONNAL KÖLTÖZHETŐ LAKÁS...
Központi helyen, teljes ellátottsággal! Hitelezhető!
PESTERZSÉBET, baross utcában 2 szobás azonnal költözhető lakás eladó!
Központi részen vált eladóvá ez a 2 egész szobás, 3. emeleti lakás.
A lakás rendezett lépcsőházban, rendezett szomszédokkal, 2 oldalra ablakos, világos.
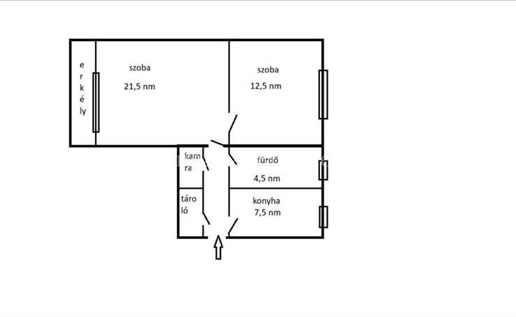
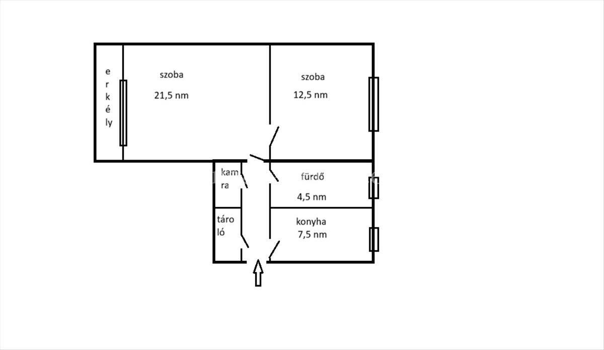
Előszoba, konyha, kamra, tároló, kádas fürdőszoba, és 2 tágas szoba. a konyha átfordításával, és egy fal arrébbtolásával amerikai konyhás + 2 szobás lakás alakítható ki belőle.
Ablakok hőszigeteltek, parketta fa, többi helyiség padlólapos.
A fűtés gázcirkóról üzemel.
A lakás akár holnap is költözhető egy festés után!
Parkolni a háznál lehet, ingyenesen, itt park, játszótér is található.
A pincében egy saját tároló is rendelkezésre áll.
A közös képviselet jó, van tartalék, minden évben fejlődik a ház állapota.
A házból kilépve a sétáló utcában is találhatja magát, de a buszmegálló (Boráros, Határ út. . ) Is csak pár perc séta, de bevásárlási lehetőségek is számtalanul állnak rendelkezésre.
Amennyiben egy kis lazításra, kényeztetésre vann szükségünk ott az Erzsébeti Gyógyfürdő, melyhez oda tudunk gyalogolni.
A lakás rednezett tulajdoni viszonyokkal rendelkezik, rugalmasan megtekinthető.
(Hivatkozási szám: m125103) FIX 3% lakáshitelre megvehető
Tetszett ez az eladó Budapest XX. kerületi részlegesen felújított 2 szobás tégla lakás? Hívd fel a hirdetőt most, és tudj meg mindent erről az eladó tégla lakásról! Ha gondolod nézelődj tovább az eladó lakás Budapest XX. kerület oldal hirdetései között. Ennek az eladó lakásnak az ára 55000000 Ft és mivel az alapterülete 55 négyzetméter, ezért az átlagos négyzetméterára 1000000 HUF/m2.
Az eladó lakások menüpontban további hirdetések között is böngészhetsz. Az összes eladó budapesti lakás hirdetést tartalmazó oldalon tudsz böngészni. Ha van kedved, akkor böngészhetsz a ingatlanTanya.eu összes hirdetése között.

