Eladó átlagos állapotú lakás Budapest XXII. kerület
| Kedvencbe | Megosztás | Árfigyelő |
| FIX 3% lakáshitelre megvehető | ||
| | ||
Ingatlan adatai
- Eladó vagy kiadó:Eladó
- Település:Budapest XXII. kerület
- Kategória:Lakás
- Alkategória:Tégla
- Alapterület:55 m2
- Csere is:Nem
- Hirdető:Magánszemély
- Élő videón megtekinthető:Nem
- Szobaszám:1 + 1 fél
- Állapot:Átlagos állapotú
- Hány szintes az ingatlan:2 szintes
- Komfortosság:nincs megadva
- Tetőtéri:Nem
- Kertkapcsolatos:Nem
- Hányadik emeleti:Földszint
- Lift:Nincs
- Parkolási lehetőség:Utcán
- Fűtés:Hőszivattyús
- Bútorozottság:nincs megadva
- Fényviszony:nincs megadva
- Tájolás:nincs megadva
- Kilátás:nincs megadva
- Internet:Optikai
- Klíma:Van
- Akadálymentesített:nincs megadva
- Energiatanúsítvány:nincs megadva
- Villany:Van
- Víz:Van
- Gáz:Előkészített
- Csatorna:Van
- Üzenetküldés
- Hívás


Hitel ajánlat
Ingatlan hirdetés leírása
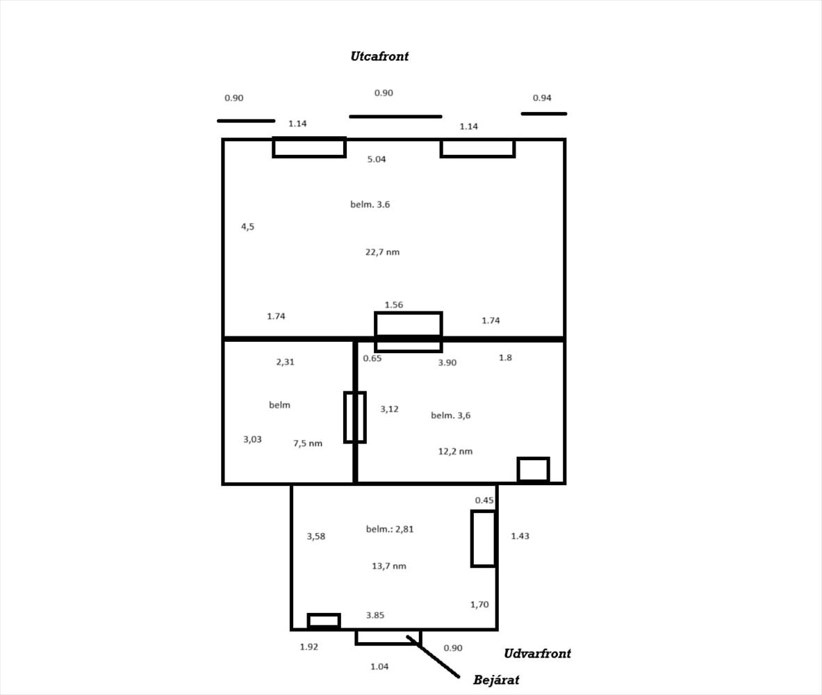
Eladó lakás Budafokon, zöldövezetben
Eladó tégla lakás magánszemélytől Budafokon.Az ingatlan közepes állapotú, 55 nm alapterületű, utcafront része műemlék védett.
Fűtés a lakásban 2 db hűtő-fűtő klímával van megoldva(az egyik nemrég lett beszerelve újonnan).
Víz, csatorna van, gáz a lakásba nincs bekötve, a kiállás közvetlen a lakás előtt található.
Az ingatlan belmagassága 3. 80 M, remek átalakítási lehetőségekkel.
Az ingatlan a következő helyiségekből áll: étkező+konyha, hall, nagyszoba és fürdő+wc.
Rendezett társasházi viszonyok kultúrált lakóközösséggel.
A budafoki Maci óvoda közelségében található a lakás, kertesházas lakóövezeti részen, mégis közel a központhoz.
Közelben több buszmegálló, a gyalog 6perc-re található Városház téren(Budafok központja) bevásárlási lehetőségek, buszok(114, 213, 133e, 250 stb. ), Ill. 47 És 56-os villamos, Budafok vasúti megállóhely.
Képekért keressen meg.
Ingatlanosokat nyomatékosan kérem, ne keressenek!
Irányár : 68 Millió Ft.
Ingatlanosokat nyomatékosan kérem, ne keressenek! FIX 3% lakáshitelre megvehető

