Eladó újszerű állapotú lakás - Budapest XXII. kerület
- INGYENES HIRDETÉS FELADÁS
Ingatlan adatai
- Eladó vagy kiadó:Eladó
- Település:Budapest XXII. kerület
- Kategória:Lakás
- Alkategória:Tégla
- Alapterület:59 m2
- Csere is:Nem
- Hirdető:Cég
- Élő videón megtekinthető:Nem
- Szobaszám:3
- Állapot:Újszerű, kitűnő
- Hány szintes az ingatlan:3 szintes
- Komfortosság:Összkomfortos
- Tetőtéri:Nem
- Hányadik emeleti:Földszint
- Erkély:Nincs
- Lift:Van
- Parkolási lehetőség:Udvaron
- Fűtés:Geotermikus
- Bútorozottság:nincs megadva
- Fényviszony:nincs megadva
- Tájolás:nincs megadva
- Kilátás:nincs megadva
- Internet:nincs megadva
- Klíma:nincs megadva
- Akadálymentesített:nincs megadva
- Energiatanúsítvány:nincs megadva
- Villany:nincs megadva
- Víz:nincs megadva
- Gáz:nincs megadva
- Csatorna:nincs megadva
- Kapcsolatfelvétel

Szűcs Attila
+36-(20)-283-4319
Mondd meg a hirdetőnek, hogy a megveszLAK-on találtad a hirdetést.
Hitel ajánlatok
Ingatlan hirdetés leírása
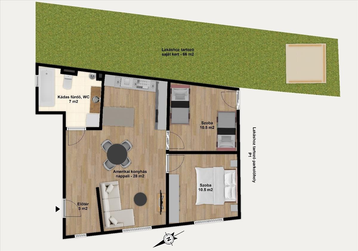
Eladó tégla lakás Budapest XXII. kerület
3 Szobás, 59 m2-es, földszinti, 66 m2 saját kertkapcsolattal és kizárólagos használatú kültéri parkolóhellyel rendelkező, kiváló állapotú lakás eladó Budafokon, 2023-ban épült, 3 lakásos társasházban. Modern, ízléses anyaghasználata, hőszivattyús fűtése és a kertkapcsolat ritkán látható kombináció, családosoknak is kiváló választás lehet - az épületben gáz nincs.
A kertkapcsolat és a kültéri parkolóhely kizárólagos használati jogát megosztási szerződés szabályozza.
A 7 m2-es fürdőszoba kádas, ablakos, a WC-vel egy helyiségben, a konyhabútor teljesen egyedi építésű, beépített gépekkel együtt az ár részét képezi.
A nappali nyugati tájolású, az egyik szoba a parkoló felé nézve déli, a másik utcafronti, nyugati fekvésű.
A modern anyaghasználatok miatt alacsony rezsiköltség jellemzi, a társasházban közös költség nincs.
A felső szomszédok kedvesek és segítőkészek, együttműködőek - elővásárlási jogukról lemondanak.
Tehermentes, az ingatlan az eladók új ingatlanvásárlása után vehető birtokba.
További kérdésekkel, megtekintési időpontokkal kapcsolatban keressen bizalommal a hét bármely napján!
Szűcs Attila - Arton Home Hitel.hu - Hasonlítsa össze a bankok lakáshitel ajánlatait

