Eladó újszerű állapotú lakás - Budapest XXII. kerület
- INGYENES HIRDETÉS FELADÁS
Ingatlan adatai
- Eladó vagy kiadó:Eladó
- Település:Budapest XXII. kerület
- Kategória:Lakás
- Alkategória:Tégla
- Alapterület:38 m2
- Csere is:Nem
- Hirdető:Cég
- Élő videón megtekinthető:Nem
- Szobaszám:2
- Állapot:Újszerű, kitűnő
- Hány szintes az ingatlan:2 szintes
- Komfortosság:nincs megadva
- Hányadik emeleti:Földszint
- Erkély:nincs megadva
- Lift:Nincs
- Parkolási lehetőség:Udvaron
- Fűtés:Gáz (cirko)
- Bútorozottság:nincs megadva
- Fényviszony:Napfényes
- Tájolás:nincs megadva
- Kilátás:nincs megadva
- Internet:nincs megadva
- Klíma:nincs megadva
- Akadálymentesített:nincs megadva
- Energiatanúsítvány:nincs megadva
- Villany:Van
- Víz:Van
- Gáz:nincs megadva
- Csatorna:Van
- Közös költség:1 Ft
- Kapcsolatfelvétel

Hitel ajánlatok
Ingatlan hirdetés leírása
Eladó Lakás, Budapest 22. ker.
Felújított villalakás budafokon saját kerttel, PARKOLÓVAL.
Eladásra kínálok egy teljeskörűen felújított, egyedi atmoszférájú lakást egy századfordulós villában, csendes, zöld környezetben.
A ház egykor egy jelentős, nagy múltú család birtoka volt, és a mai napig őrzi a korszak eleganciáját: hatalmas, ősfás kert, karakteres építészeti részletek, és egy különleges hangulat, amit ritkán találni.
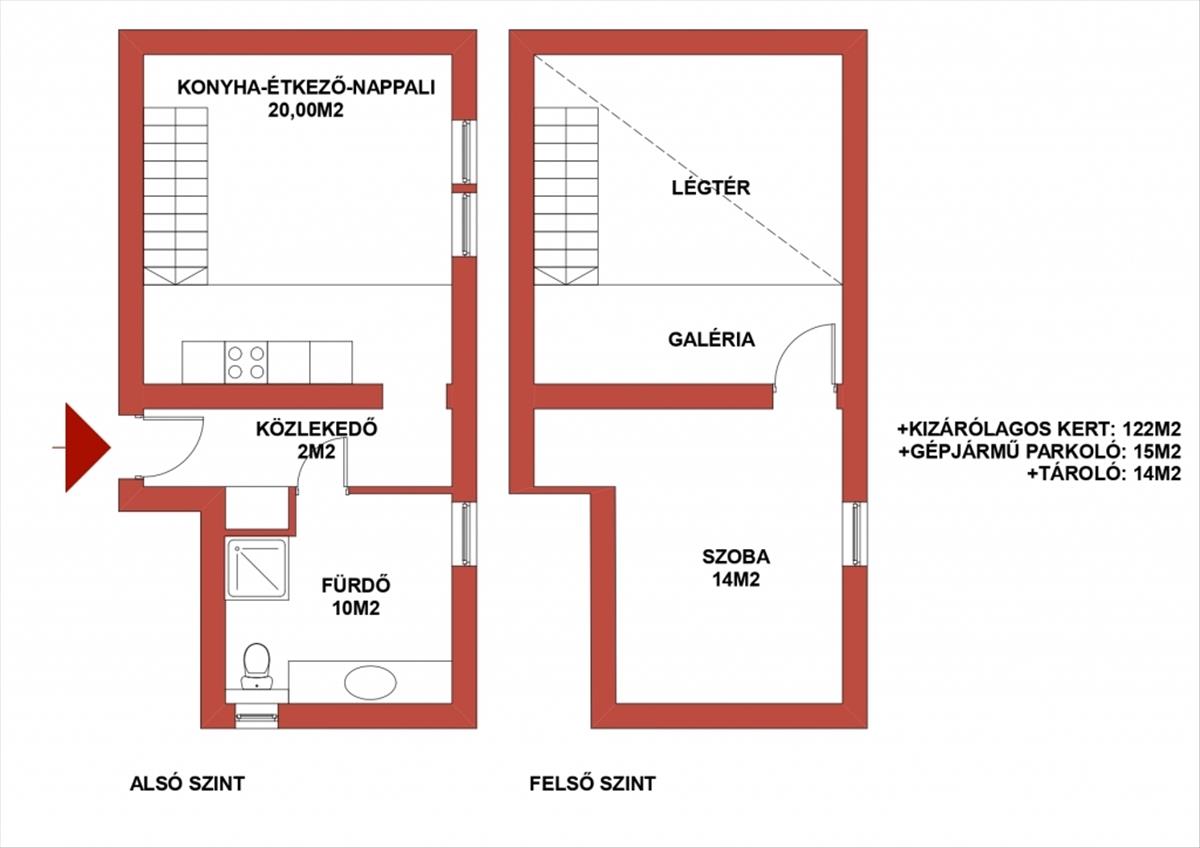
A lakás a villa magasföldszintjén helyezkedik el. a 4, 2 méteres belmagasság lehetővé tette egy praktikus, intim galéria kialakítását, így a 30 nm -es alapterület 50 nm hasznos térként funkcionál.
A nappali-konyha tágas, napfényes, nagy ablakai a kertre néznek, a galérián pedig kényelmes hálórész kapott helyet. a lakáshoz 122 nm saját kertrész, saját parkoló, valamint 14 nm -es tároló tartozik. a kertbe autóval is kényelmesen be lehet állni.
Az ingatlan tehermentes, azonnal költözhető, de nem hitelezhető. Ideális választás mindazoknak, akik értékelik a történelmi környezetet, a különleges atmoszférát és a modern, igényes kialakítást.
Referenciaszám: M324848
Referencia szám: m324848 Hitel.hu - Hasonlítsa össze a bankok lakáshitel ajánlatait
Tetszett ez az eladó Budapest XXII. kerületi újszerű állapotú 2 szobás tégla lakás? Hívd fel a hirdetőt most, és tudj meg mindent erről az eladó tégla lakásról! Ha gondolod nézelődj tovább az eladó lakás Budapest XXII. kerület oldal hirdetései között. Ennek az eladó lakásnak az ára 63200000 Ft és mivel az alapterülete 38 négyzetméter, ezért az átlagos négyzetméterára 1663158 HUF/m2.
Az eladó lakások menüpontban további hirdetések között is böngészhetsz. Az összes eladó budapesti lakás hirdetést tartalmazó oldalon tudsz böngészni. Ha van kedved, akkor böngészhetsz a Zatykó Krisztina összes hirdetése között, vagy akár a/az OTPip Budapest XI. kerület Bartók Béla út 62 - OTP Ingatlanpont Iroda összes hirdetése között is.

