Eladó új építésű lakás - Cserkeszőlő
- INGYENES HIRDETÉS FELADÁS
Ingatlan adatai
- Eladó vagy kiadó:Eladó
- Település:Cserkeszőlő
- Kategória:Lakás
- Alkategória:Tégla
- Alapterület:45 m2
- Csere is:Nem
- Hirdető:Cég
- Élő videón megtekinthető:Nem
- Szobaszám:2
- Állapot:Új építésű
- Hány szintes az ingatlan:Földszintes
- Komfortosság:nincs megadva
- Hányadik emeleti:1
- Erkély:nincs megadva
- Lift:Nincs
- Parkolási lehetőség:Udvaron
- Fűtés:Hőszivattyús
- Bútorozottság:nincs megadva
- Fényviszony:Napfényes
- Tájolás:nincs megadva
- Kilátás:nincs megadva
- Internet:nincs megadva
- Klíma:nincs megadva
- Akadálymentesített:nincs megadva
- Energiatanúsítvány:nincs megadva
- Villany:Van
- Víz:Van
- Gáz:nincs megadva
- Csatorna:Van
- Kapcsolatfelvétel

Vas Edit
+36-(70)-402-4029
Mondd meg a hirdetőnek, hogy a megveszLAK-on találtad a hirdetést.
Referencia szám: M315223
Hitel ajánlatok
Ingatlan hirdetés leírása
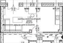
Eladó Lakás, Cserkeszőlő
Cserkeszőlői, zöldövezeti, energiahatékony újépítésű lakások leköthetők --- az OTP Ingatlanpontnál! Már csak 7 újépítésű téglalakás elérhető, tulajdonos-kivitelezőtől, 20% kezdő befizetéssel eladó. a kulcsrakész átadás tervezett időpontja: 2026. 06. 30. ! Modern, elegáns megjelenés, korszerű anyagok és kellemes, zöld környezet jellemzik ezt a projektet. a parkosított telken hat lakóház (földszint, 2 emelet, tetőtér) kerül elhelyezésre. Az egyik lakóépületben kilenc lakás kap helyet. Ez a lakás külön kis lépcsőházban található, ahol összesen csak 3 lakás osztja meg a közös területeket. Praktikus 2 szobás lakás az 1. emeleten, a legnagyobb erkéllyel és tágas nappalival. Tökéletes választás azok számára, akik a szabadtéri életet, a jobb kilátást és a kedvező árat kombinálják. Az 5. Lakás kiemelkedő előnye a legnagyobb erkély (9, 33 m2) birtoklása az 1. emeleten és kedvező ára. a 25 m2-es nappali-konyha-étkező tér különösen tágas, míg a magasabb elhelyezkedés jobb kilátást és több természetes fényt biztosít. a lakásokba zárt lépcsőházon keresztül juthatunk. a fűtést és a melegvizet hőszivattyú fogja ellátni, padlófűtéssel, lakásonként egyedi mérési lehetőséggel. Az ár a kulcsrakész állapotra vonatkozik. Ha számít Önnek az egyedi, elegáns környezet, valamint az alacsony fenntartási költségek, akkor ne gondolkozzon tovább! Tágas, 3 szobás lakás a földszinten, saját terasszal és kizárólagos kerthasználattal. Ideális választás azok számára, akik a természetközelséget és a kényelmet egyaránt értékelik. További információért hívjon bizalommal! Legújabb szolgáltatásként ajánlom minden kedves ügyfelem részére az OTP Bank által közvetített Babaváró, CSOK plusz, Otthon Start Hitelprogram vagy egyéb kölcsönök intézését. Az OTP Ingatlanpont kedvezményes pénzügyi konstrukciókkal áll ügyfelei rendelkezésére! VIP-szolgáltatást nyújtunk az OTP-hiteltermékek ügyintézésében. Jogi és pénzügyi segítséget nyújtanak szakértőink, hogy az adásvétel folyamata gördülékeny legyen. Amennyiben a vételár a kérdés, és úgy gondolja még nincs meg az összeg a leendő új otthonra? Lehet, hogy még is rendelkezésére áll a vételár csak még Ön nem is tudja? Tisztában van valóban az anyagi lehetőségeivel? Az áthidaló megoldásokkal? Esetleg csak az az akadály, hogy nem adta el még a saját ingatlanját? Nem gond, a tulajdonosaink, eladóink szívesen megvárják Önt, segítünk a gyors értékesítésben is. Ne maradjon le a vételről, ha már megtalálta a megfelelő új otthont! Szolgáltatásunk ingyenes, kizárólag sikeres értékesítés esetén van megbízási díj fizetési kötelezettség. a vevők is nálunk vannak és lehet az Ön ingatlanjára várnak? ! Tudjon meg többet, hívjon bizalommal! Eladó ingatlanja van? Nincs vevője? Hívjon segítek az értékesítésben! Kedvező hitelajánlatokkal (babaváró hitel, piaci hitel, és szabadfelhasználású hitel) várjuk jelentkezését. Számos konstrukció közül választhatnak. Irodáink Szentes, Petőfi utca 12. (A buszmegálló felől) és Csongrád, Fő utca 54. Szám alatt várja a személyes érdeklődőket. ***Válasszuk ki együtt az önnek legmegfelelőbb ajánlatot! Banki sorban állás nélkül! ***
Referencia szám: m315223-ml FIX 3% lakáshitelre megvehető

