Eladó új építésű lakás - Debrecen
- INGYENES HIRDETÉS FELADÁS
Ingatlan adatai
- Eladó vagy kiadó:Eladó
- Település:Debrecen
- Kategória:Lakás
- Alkategória:Tégla
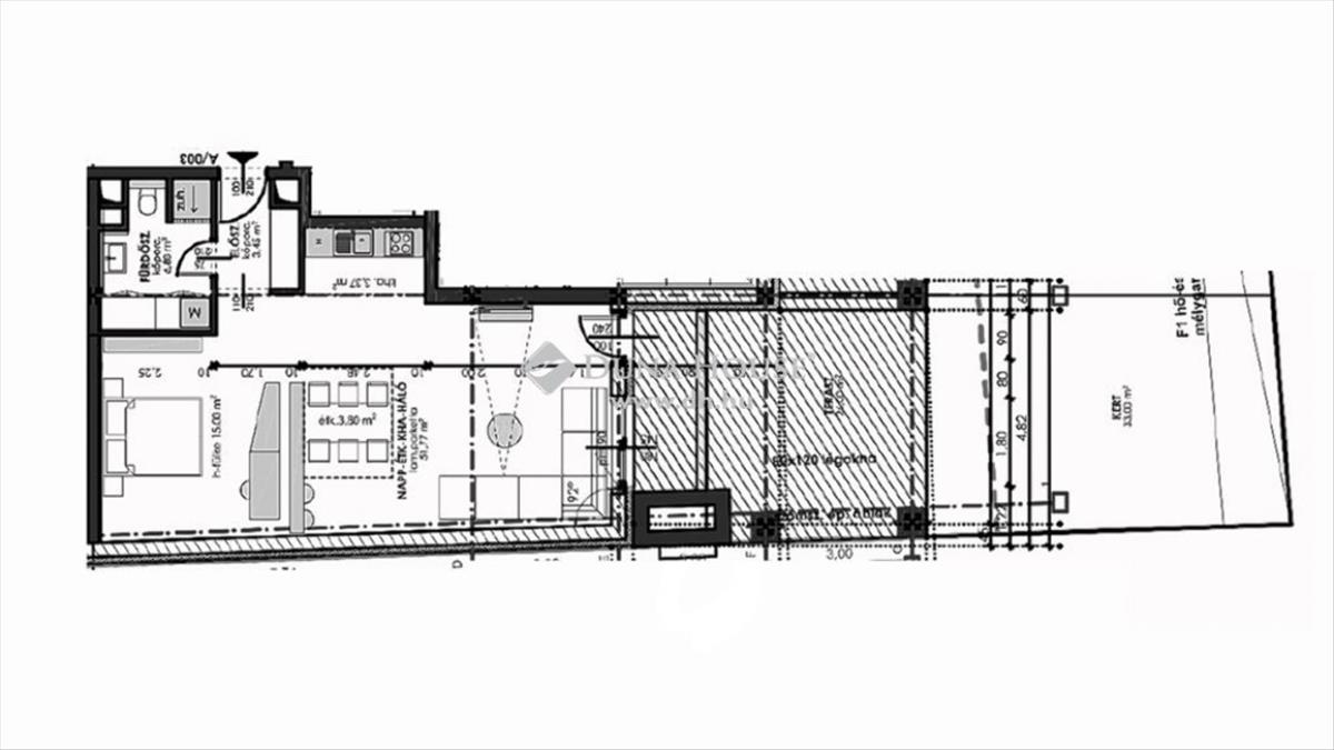
- Alapterület:61 m2
- Csere is:Nem
- Hirdető:Cég
- Élő videón megtekinthető:Nem
- Szobaszám:1 + 1 fél
- Állapot:Új építésű
- Hány szintes az ingatlan:Földszintes
- Komfortosság:nincs megadva
- Hányadik emeleti:Földszint
- Erkély:nincs megadva
- Lift:Van
- Parkolási lehetőség:Teremgarázsban
- Fűtés:Távfűtés egyedi mérővel
- Bútorozottság:nincs megadva
- Fényviszony:Napfényes
- Tájolás:D
- Kilátás:nincs megadva
- Internet:nincs megadva
- Klíma:nincs megadva
- Akadálymentesített:nincs megadva
- Energiatanúsítvány:nincs megadva
- Villany:Van
- Víz:Van
- Gáz:nincs megadva
- Csatorna:Van
- Kapcsolatfelvétel

Lévainé Julika
+36-(30)-749-8831
Mondd meg a hirdetőnek, hogy a megveszLAK-on találtad a hirdetést.
Referencia szám: PR050537/LK/17947
Ingatlan hirdetés leírása
Új társasházi lakások Debrecen belvárosában – Csendes, mégis k...
Debrecen belvárosának déli határán, egy csendes kis utcában épül ez az új társasházi projekt, amely modern megoldásokkal és kiváló elhelyezkedéssel várja leendő tulajdonosait!
Az épület jellemzői:
-Földszint + 4 emeletes, liftes kialakítás
-A és B lépcsőházakra osztva
-Változatos méretű és tájolású lakások
-Szinte minden lakáshoz erkély vagy terasz tartozik
-A földszinti lakások saját kertkapcsolattal rendelkeznek
-A pinceszinten parkolóhelyek, a földszinten pedig 4 db iroda kap helyet
Rövid műszaki tartalom:
-Vasbeton pillérvázas épület tégla kitöltő falazattal
-2 darab modern lift
-Városi távhőre kötött, programozható fűtés
-Redőnytokkal ellátott műanyag nyílászárók
-Lakásonként 1 darab levegő hűtő-fűtő berendezés
Ez a modern társasház csendes környezetben kínálja a belváros nyújtotta kényelmet. Kérdéseivel és érdeklődésével forduljon hozzám bizalommal! Ne maradjon le a lehetőségről!
Referencia szám: pr050537/lk/17947 FIX 3% lakáshitelre megvehető


