Eladó új építésű lakás - Debrecen
- INGYENES HIRDETÉS FELADÁS
Ingatlan adatai
- Eladó vagy kiadó:Eladó
- Település:Debrecen
- Kategória:Lakás
- Alkategória:Tégla
- Alapterület:70 m2
- Csere is:Nem
- Hirdető:Cég
- Élő videón megtekinthető:Nem
- Szobaszám:2
- Állapot:Új építésű
- Hány szintes az ingatlan:Földszintes
- Komfortosság:nincs megadva
- Hányadik emeleti:Földszint
- Erkély:nincs megadva
- Lift:Van
- Parkolási lehetőség:nincs megadva
- Fűtés:Hőszivattyús
- Bútorozottság:nincs megadva
- Fényviszony:Napfényes
- Tájolás:DNY
- Kilátás:nincs megadva
- Internet:nincs megadva
- Klíma:nincs megadva
- Akadálymentesített:nincs megadva
- Energiatanúsítvány:nincs megadva
- Villany:Van
- Víz:Van
- Gáz:nincs megadva
- Csatorna:Van
- Kapcsolatfelvétel

dr. Urszuly Gábor
+36-(30)-825-4142
Mondd meg a hirdetőnek, hogy a megveszLAK-on találtad a hirdetést.
Referencia szám: LK044257
Hitel ajánlatok
Ingatlan hirdetés leírása
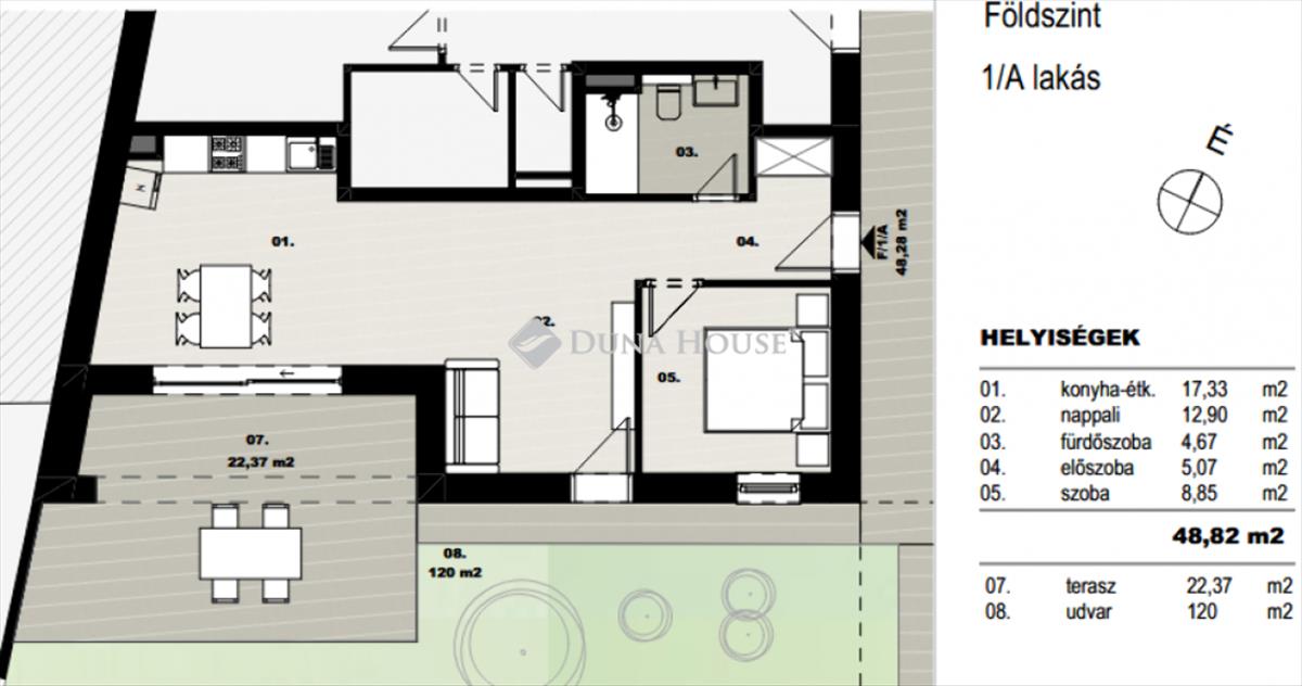
Eladó lakás, Debrecen
Debrecen belvárosában Új építésű Exkluzív Napfényes Tégla Építésű Lakás Eladó! Összességében, ha egy olyan otthont keres, amely modern technológiai megoldásokat, fenntarthatóságot és stílust ötvöz, akkor ez az ingatlan tökéletes választás lehet Ön számára. Forduljon hozzám bizalommal további információk és megtekintésért. Fedezze fel, hogy mit jelent ma egy valóban korszerű otthonban élni! a lakás 48, 28 nm, melyet nappali + 1 szobás vagy nappali + 2 szobás lakásként lehet használni. a lakáshoz tartozik még részben fedett terasz, alapterülete 22, 57 nm. Lakáshoz tartozik még 120 nm kert helyiség. Fontos megemlíteni, hogy az ingatlant egy 12 férőhelyes mélygarázsból való parkolóhely megvásárlása egészíti ki, melynek ára 12 millió Ft. Ez egy hihetetlenül praktikus választás azok számára, akik a belváros közelségét értékelik, de nem szeretnének parkolási gondokkal foglalkozni. a társasház igen praktikus személylifttel is rendelkezik, mely hozzáad az ingatlan kényelméhez. a napfényes lakások nagy figyelmet fordítanak a világosságra és a tágas tér érzetére, ahol a harmadik rétegű Kömmerling műanyag nyílászárók pedig gondoskodnak a kiváló szigetelésről. Az épület tégla szerkezetű, a falak Porotherm 30n+f falazattal készültek, Austrotherm 15 cm-es eps homlokzati szigeteléssel szigetelt, így garantálva a hőhatékonyságot és az energetikai hatékonyságot, amit az aa+ energetikai besorolás is igazol. a fenntarthatóság és a hatékonyság jegyében a fűtést és a hűtést egyaránt a levegő-víz hőszivattyús rendszer biztosítja, padlófűtéssel, valamint lakásonkénti vezérlésű fan-coil hűtéssel, nyújtva ezzel az otthoni komfortérzés új szintjét. Engedje meg, hogy bemutassam ezt a különleges lehetőséget, egy 2025-ben épülő, napfényes lakást, mely egy modern és fenntartható megoldásokkal felszerelt társasházban helyezkedik el. Az ingatlan kínálata mindazok számára ideális, akik értékelik a kényelmet, a modern technológiát és a környezettudatosságot. Www-dh. Hu FIX 3% lakáshitelre megvehető

