Eladó új építésű lakás Dorog
| Kedvencbe | Megosztás | Árfigyelő |
| FIX 3% lakáshitelre megvehető | ||
| 72 840 000 HUF | ||
Ingatlan adatai
- Eladó vagy kiadó:Eladó
- Település:Dorog
- Kategória:Lakás
- Alkategória:Tégla
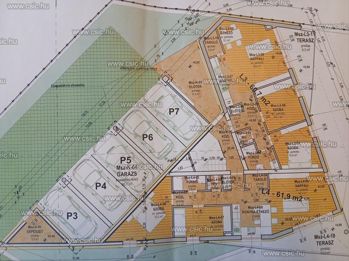
- Alapterület:62 m2
- Csere is:Nem
- Hirdető:Cég
- Élő videón megtekinthető:Nem
- Szobaszám:3
- Állapot:Új építésű
- Hány szintes az ingatlan:nincs megadva
- Komfortosság:Összkomfortos
- Hányadik emeleti:nincs megadva
- Parkolási lehetőség:Beállóban
- Fűtés:nincs megadva
- Bútorozottság:nincs megadva
- Fényviszony:nincs megadva
- Tájolás:nincs megadva
- Kilátás:nincs megadva
- Internet:nincs megadva
- Akadálymentesített:nincs megadva
- Energiatanúsítvány:nincs megadva
- Villany:Van
- Víz:Van
- Gáz:nincs megadva
- Csatorna:Van
- Üzenetküldés
- Hívás


Hitel ajánlat
Ingatlan hirdetés leírása
ÚJ ÉPÍTÉSŰ LAKÓPARKI LAKÁS, 62 m2, 3 SZOBA
Új építésű lakóparki lakás, 62 m2, 3 szoba - zöld környezet- DorogDorogon a tavakhoz közeli, csodás természeti környezetben épülő 7 lakásos lakóparkban, saját kertes, teraszos lakások eladóak. Kizárólag a Családi Ingatlan kínálatában!
Beosztását tekintve:
-előszoba
-konyha + étkező
-nappali
-2 hálószoba
-fürdőszoba
-külön wc kézmosóval
-tároló
Az első szinten lévő 3 szobás, 62 m2-es lakásnál egy 13 m2-es terasz szolgálja az ott lakók kényelmét.
Az épületek a legmodernebb szerkezeti, szigetelési és gépészeti anyagokkal készülnek el, ennek köszönhetően a++ energetikai besorolású lakásokat kapunk. a mindig kellemes hőérzetről 3 rétegű nyílászárók és hőszivattyús fűtés-hűtés rendszer gondoskodik.
A bekerített lakóparkba távirányítós kapun keresztül jutunk be, míg a lépcsőházak számkódos kaputelefonnal rendelkeznek. Parkolás a felszíni parkolókban, illetve a fedett gépkocsibeálókban megoldott, ami 2, 0 – 5 M Ft-ért vásárolhatók meg. a biztonságérzetet éjszakai térvilágítás és a térfigyelő kamerák szavatolják.
A lakások kulcsrakész állapotban kerülnek átadásra, konyhabútor nélkül. a belső burkolatok, szaniterek a vevő ízlése alapján válaszhatóak.
A belső látványképek ai segítségével készültek.
Amennyiben egy csodás természeti környezetben és egy modern, alacsony fenntartási költségű új lakásban szeretne élni, úgy ne maradjon le erről a kivételes lehetőségről! FIX 3% lakáshitelre megvehető

