Eladó jó állapotú lakás - Dunaharaszti
- INGYENES HIRDETÉS FELADÁS
Ingatlan adatai
- Eladó vagy kiadó:Eladó
- Település:Dunaharaszti
- Kategória:Lakás
- Alkategória:Tégla
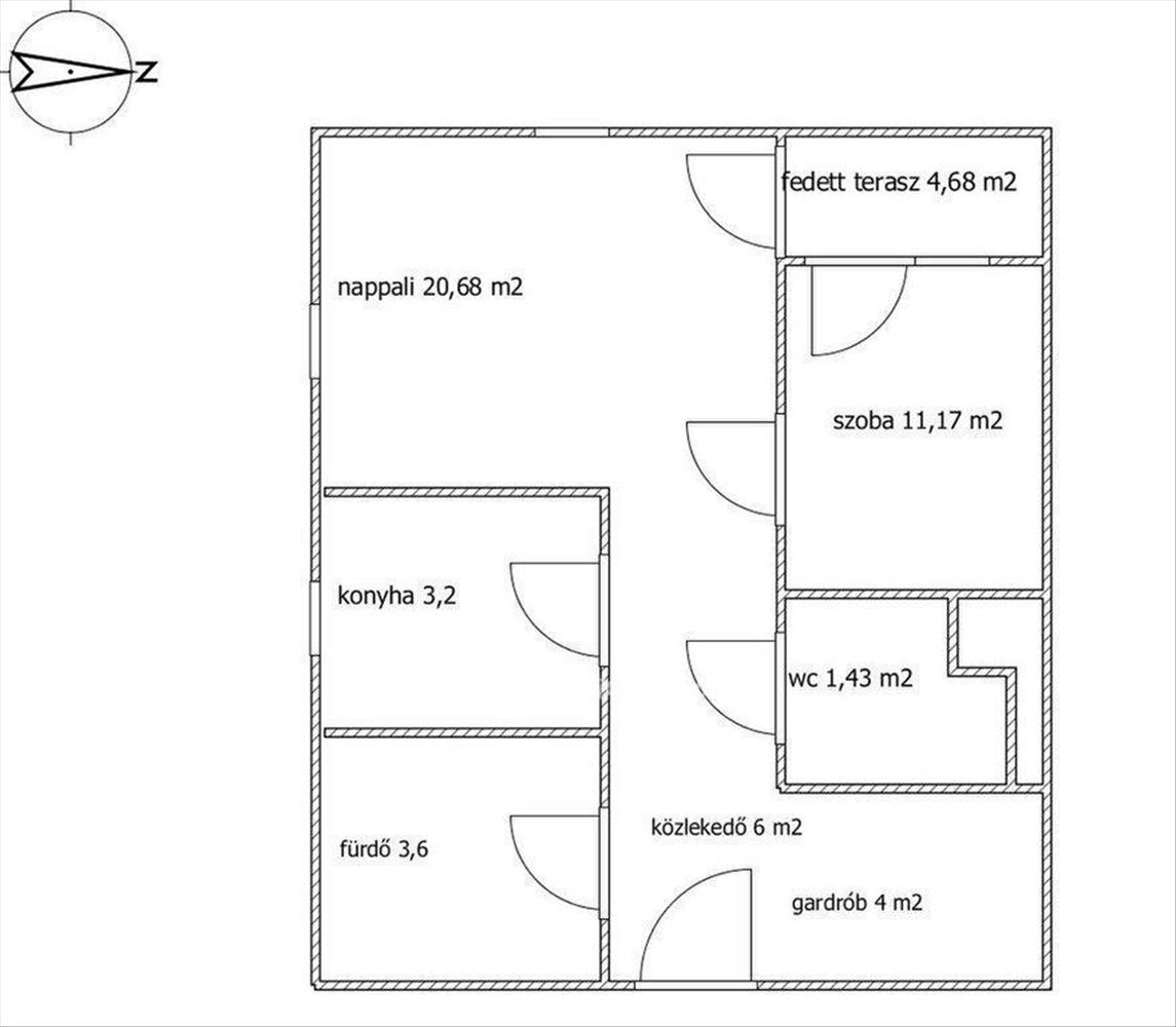
- Alapterület:48 m2
- Csere is:Nem
- Hirdető:Cég
- Élő videón megtekinthető:Nem
- Szobaszám:2
- Állapot:Jó állapotú
- Hány szintes az ingatlan:Földszintes
- Komfortosság:nincs megadva
- Hányadik emeleti:3
- Erkély:nincs megadva
- Lift:Van
- Parkolási lehetőség:Udvaron
- Fűtés:Gáz (cirko)
- Bútorozottság:nincs megadva
- Fényviszony:Napfényes
- Tájolás:nincs megadva
- Kilátás:nincs megadva
- Internet:nincs megadva
- Klíma:nincs megadva
- Akadálymentesített:nincs megadva
- Energiatanúsítvány:nincs megadva
- Villany:Van
- Víz:Van
- Gáz:nincs megadva
- Csatorna:Van
- Közös költség:15 000 Ft
- Kapcsolatfelvétel

Toókné Ambrózi Andrea
+36-(30)-421-4382
Mondd meg a hirdetőnek, hogy a megveszLAK-on találtad a hirdetést.
Referencia szám: M324313
Hitel ajánlatok
Ingatlan hirdetés leírása
Eladó Lakás, Dunaharaszti
NAPFÉNYES***KÉTSZOBÁS***TERASZOS***LAKÁS***DUNAHARASZTIBAN****Hitelezhető! ! !
Eladásra kínálok Pest megyében egy 2 szobás, panorámás, 48 m2-es, 3. emeleti, társasházi lakást, LIFTes, modern, parkosított lakóparkban Dunaharaszti szívében.
A piac közelében, jó lokációval, egy zárt lakóparki környezetben találjuk a kívül- belül modern, napfényben úszó kellemes kis otthont. a lépcsőház finom takarított, karbantartott illata fogad minket, két lépcsős biztonsági rendszerrel, egy modern lifttel. Jól hangszigetelt, téglából épült falain át a külső zajok eltűnnek. Az ingatlanba érve átsüt az előszobán a fény, a keleti és déli oldal, a konyha, a nappali és a szoba is több nyílászáróval napfényes teret nyújt. a nappalival és hálószobával, kádas fürdővel, külön geberites wc-vel, nagy pakolható, gardróbbá alakítható előtérrel, beépített konyhabútoros konyhával és fedett terasszal egy kedves otthon tárul elénk. Nem lakott, ezért a bútorzat kevés, picit üresek a terek, de minden úszik a fényben! ! Az ingatlan tehermentes, egy tulajdonossal. Azonnal költözhető! !
Gáz cirkó fűtésű, radiátorokkal, néhány bútor esetlegesen megvásárolható. a közös költség 15. 000, -Ft, a rezsi 10-15. 000, -Ft. a gáz hálózat korszerűsítése, bővítése a közeljövőben várható, de így is tökéletes.
Jöjjön, legyen Dunaharaszti lakos! ! Hogy miért?
Óvoda, bölcsöde, iskola a közelben, Dunaharaszti vitathatatlan infrastruktúrája minden igényt kielégít, a szomszédos piacon pedig szerdai és szombati napokon a környék legjobb kézműveseinek és őstermelőinek portékáit kaphatjuk meg termelői áron.
Budapestre az mo és a Soroksári út gyors bejutást biztosít. De van helyi járatú busz, sárgabusz a Népligetbe, hév, és vonat, de rengeteg multi, bevásárlóközpont, Tesco, Aldi, Lidl, Spar, Rossman, DM, Fresnaps, Pepco, Jysk, Takko és számos helyi üzlet, pékségek, zöldségesek, hentesek, éttermek, kávézók és Magyarország egyik legjobb cukrászdája, a Karl cukrászda is díjnyertes bejglijeivel, süteményeivel. Számos fittnesz terem, sportpark, a Duna- part természetvédelmi sétányai, billiárd, darts, táncos klubok, és még sorolhatnám mi minden várja az ide költözőt. Itt még léteznek cipészek, varrónők, házi sütemény készítők és itt van Szabi a Pék is! !
Ne habozzon, jöjjön tekintse meg és csapjon le erre a klassz kis otthonra!
Az OTP Bankcsoport háttér szolgáltatásával, hitelügyintézéssel, ügyvédi háttérrel állunk rendelkezésükre. Az ingatlan alkalmas az Otthon Start Program 3%- os hitelre, CSOK-ra is.
A nap bármely szakában hívjon bizalommal!
Referencia szám: M324313
Érdeklődni lehet: Toókné Ambrózi Andrea Tel:30-4214382
Referencia szám: m324313 FIX 3% lakáshitelre megvehető
Tetszett ez az eladó Dunaharaszti jó állapotú 2 szobás tégla lakás? Hívd fel a hirdetőt most, és tudj meg mindent erről az eladó tégla lakásról! Ha gondolod nézelődj tovább az eladó lakás Dunaharaszti oldal hirdetései között. Ennek az eladó lakásnak az ára 62500000 Ft és mivel az alapterülete 48 négyzetméter, ezért az átlagos négyzetméterára 1302083 HUF/m2.
Az eladó lakások menüpontban további hirdetések között is böngészhetsz. Ha van kedved, akkor böngészhetsz a Toókné Ambrózi Andrea összes hirdetése között, vagy akár a/az OTPip Dunaharaszti Bocskai utca 10 - OTP Ingatlanpont Iroda összes hirdetése között is.

