Eladó átlagos állapotú lakás - Edelény
- INGYENES HIRDETÉS FELADÁS
Ingatlan adatai
- Eladó vagy kiadó:Eladó
- Település:Edelény
- Kategória:Lakás
- Alkategória:Tégla
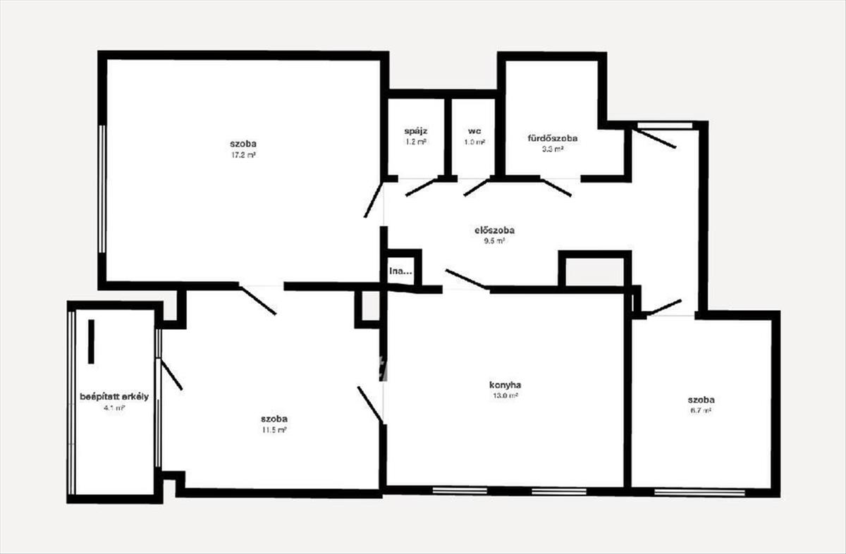
- Alapterület:66 m2
- Csere is:Nem
- Hirdető:Cég
- Élő videón megtekinthető:Nem
- Szobaszám:2 + 1 fél
- Állapot:Átlagos állapotú
- Hány szintes az ingatlan:4 szintes
- Komfortosság:nincs megadva
- Hányadik emeleti:1
- Erkély:nincs megadva
- Lift:Nincs
- Parkolási lehetőség:nincs megadva
- Fűtés:Házközponti
- Bútorozottság:nincs megadva
- Fényviszony:Jó
- Tájolás:nincs megadva
- Kilátás:nincs megadva
- Internet:nincs megadva
- Klíma:nincs megadva
- Akadálymentesített:nincs megadva
- Energiatanúsítvány:nincs megadva
- Villany:Van
- Víz:Van
- Gáz:nincs megadva
- Csatorna:Van
- Közös költség:22 770 Ft
- Kapcsolatfelvétel

Balogh Gergő
+36-(30)-716-3302
Mondd meg a hirdetőnek, hogy a megveszLAK-on találtad a hirdetést.
Referencia szám: M320851
Hitel ajánlatok
Ingatlan hirdetés leírása
Eladó Lakás, Edelény
Eladó Edelényben, a Miklós Gyula úton egy 66 m2-es, tehermentes, akár azonnal költözhető lakás!
Edelény kedvelt, jól frekventált részén kínálunk eladásra egy jó állapotú, tégla építésű, 2+1 félszobás lakást, amely kiváló választás családoknak, pároknak vagy befektetésnek is.
A lakás tehermentes, így a birtokbaadás rövid időn belül megoldható.
Főbb jellemzők:
66 m2 alapterület
2+1 félszoba
nagyméretű konyha étkező egyben
tégla építésű társasház
felújított fürdőszoba és WC
meleg vizet villanybojler biztosítja
kicserélt vízvezetékek
réz villanyvezeték
műanyag nyílászárók, minden ablakon redőnnyel
alumínium bejárati ajtó
beépített loggia szintén műanyag ablakokkal és redőnnyel, mely télikertként is hasznosítható
Fűtés:
Házi központi, radiátoros fűtés, a tömb saját gázkazánnal rendelkezik, ami gazdaságos fenntartást biztosít.
Garázs:
A lakáshoz külön áron megvásárolható egy 16 m2-es garázs, amely szintén a tömbben helyezkedik el.
A garázs víz- és villanyellátással rendelkezik, tehermentes.
Elhelyezkedés:
Kiváló infrastruktúrával rendelkező környék, a közelben:
iskola
óvoda
boltok
gyógyszertár
buszpályaudvar
vasútállomás
Minden fontos intézmény és szolgáltatás könnyen elérhető.
OTP Banki hátterünknek köszönhetően finanszírozási igényekben (pl. Otthon Start Hitelprogram, Babaváró, CSOK Plusz, Lakáshitel, Személyi kölcsön stb. ), Illetve biztosítások tekintetében is díjmentesen, soron kívüli ügyintézéssel segítem ügyfeleim! Érdeklődés esetén hivatkozzon m320851 azonosítási számra. FIX 3% lakáshitelre megvehető
Tetszett ez az eladó Edelényi átlagos állapotú 2 egész és 1 fél szobás tégla lakás? Hívd fel a hirdetőt most, és tudj meg mindent erről az eladó tégla lakásról! Ha gondolod nézelődj tovább az eladó lakás Edelény oldal hirdetései között. Ennek az eladó lakásnak az ára 31900000 Ft és mivel az alapterülete 66 négyzetméter, ezért az átlagos négyzetméterára 483333 HUF/m2.
Az eladó lakások menüpontban további hirdetések között is böngészhetsz. Ha van kedved, akkor böngészhetsz a Balogh Gergő összes hirdetése között, vagy akár a/az OTPip Miskolc Szemere Bertalan utca 20 - OTP Ingatlanpont Iroda összes hirdetése között is.

