Eladó új építésű lakás - Eger
- INGYENES HIRDETÉS FELADÁS
Ingatlan adatai
- Eladó vagy kiadó:Eladó
- Település:Eger
- Kategória:Lakás
- Alkategória:Tégla
- Alapterület:67 m2
- Csere is:Nem
- Hirdető:Cég
- Élő videón megtekinthető:Nem
- Szobaszám:3
- Állapot:Új építésű
- Hány szintes az ingatlan:Földszintes
- Komfortosság:nincs megadva
- Hányadik emeleti:1
- Erkély:nincs megadva
- Lift:Nincs
- Parkolási lehetőség:nincs megadva
- Fűtés:Hőszivattyús
- Bútorozottság:nincs megadva
- Fényviszony:Napfényes
- Tájolás:nincs megadva
- Kilátás:nincs megadva
- Internet:nincs megadva
- Klíma:nincs megadva
- Akadálymentesített:nincs megadva
- Energiatanúsítvány:nincs megadva
- Villany:Van
- Víz:Van
- Gáz:nincs megadva
- Csatorna:Van
- Kapcsolatfelvétel

Utasi Attila Csaba
+36-(70)-371-0172
Mondd meg a hirdetőnek, hogy a megveszLAK-on találtad a hirdetést.
Referencia szám: M323904
Hitel ajánlatok
Ingatlan hirdetés leírása
Eladó Lakás, Eger, Eladó új építésű lakás - Eger
Modern, új építésű tetőtéri lakás Eger belvárosának közvetlen közelében - Eger, Károlyváros
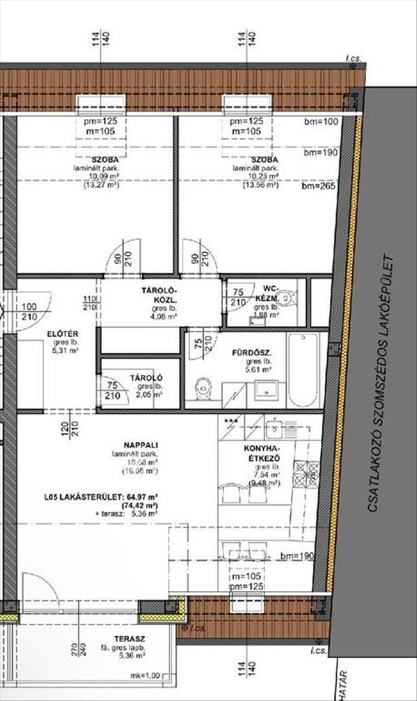
Eger frekventált részén, a közkedvelt Károlyváros városrészben kínálunk eladásra egy modern tervezésű, 67, 7 m2-es tetőtéri új építésű lakást, amely 2026 második félévében kerül átadásra, így ideális választás lehet mind saját célú lakhatásra, mind pedig értékálló, belvárosi befektetésként.
Az ingatlan elosztása rendkívül praktikus és jól átgondolt: a világos nappali harmonikus életteret biztosít, amely a tetőtéri kialakításnak köszönhetően különleges térérzetet és bőséges természetes fényt kínál. a lakás helyiségei: nappali, 2 külön nyíló szoba, étkező, konyha, fürdőszoba, külön wc és tároló, amely elrendezés kényelmes, jól élhető életteret biztosít akár családok számára is, miközben a külön wc és a tárolóhelyiség jelentősen növeli a funkcionalitást és a mindennapi komfortérzetet.
A lokáció kiemelkedő: a belváros néhány perc alatt elérhető, a bevásárlóközpont rövid sétatávolságra található, így a bevásárlás, ügyintézés vagy akár egy esti kikapcsolódás gyorsan és kényelmesen megoldható. a környék infrastruktúrája kiváló, minden fontos szolgáltatás könnyen hozzáférhető.
A társasház magas műszaki tartalommal és kiemelt energetikai paraméterekkel épül:
- Wienerberger mesterház rendszerű szerkezet,
- Az előírásokat meghaladó hőszigetelés,
- Háromrétegű, hőszigetelt üvegezésű műanyag nyílászárók elektromos árnyékolóval,
- Minőségi olasz és spanyol burkolatok,
- Teljes gépészeti felszereléssel ellátott beépített konyha.
A korszerű mennyezetfűtés - hűtés rendszer hőszivattyús, illetve kiegészítő gázüzemű Vaillant berendezésekkel, időjáráskövető vezérléssel működik, amely egész évben optimális hőérzetet és gazdaságos fenntarthatóságot biztosít.
A lakáshoz opcionálisan garázs, fedett autóbeálló, valamint normál felszíni autóbeálló vásárlási lehetőség is biztosított, amelyek ára nem tartalmazza a meghirdetett lakás vételárát, így ezek külön, az ingatlan árán felül választható kiegészítőként érhetők el.
Irodánk teljes körű, bankfüggetlen finanszírozási ügyintézéssel áll rendelkezésére, így segítünk megtalálni az Ön számára legkedvezőbb hitel- és támogatási konstrukciót.
További információért, alaprajzért és részletes műszaki leírásért keressen bizalommal - a tájékoztatás és a megtekintés rugalmasan biztosított! FIX 3% lakáshitelre megvehető
Tetszett ez az eladó Egeri új építésű 3 szobás tégla lakás? Hívd fel a hirdetőt most, és tudj meg mindent erről az eladó tégla lakásról! Ha gondolod nézelődj tovább az eladó lakás Eger oldal hirdetései között. Ennek az eladó lakásnak az ára 77000000 Ft és mivel az alapterülete 67 négyzetméter, ezért az átlagos négyzetméterára 1149254 HUF/m2.
Az eladó lakások menüpontban további hirdetések között is böngészhetsz. Ha van kedved, akkor böngészhetsz a Utasi Attila Csaba összes hirdetése között, vagy akár a/az OTPip Eger Törvényház utca 4 - OTP Ingatlanpont Iroda összes hirdetése között is.

