Eladó jó állapotú lakás Eger
| Kedvencbe | Megosztás | Árfigyelő |
| FIX 3% lakáshitelre megvehető | ||
| 56 500 000 HUF | ||
Ingatlan adatai
- Eladó vagy kiadó:Eladó
- Település:Eger
- Kategória:Lakás
- Alkategória:Tégla
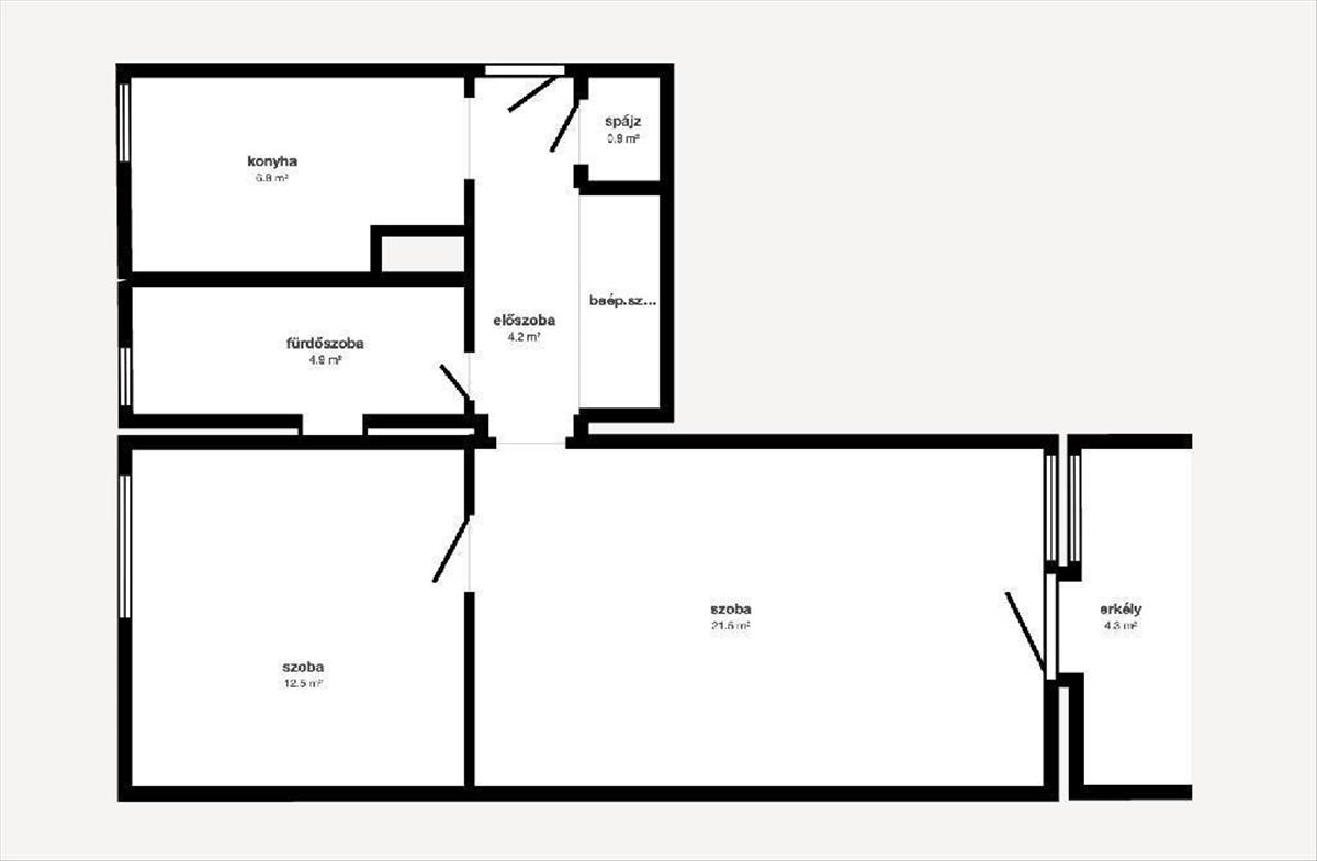
- Alapterület:55 m2
- Csere is:Nem
- Hirdető:Cég
- Élő videón megtekinthető:Nem
- Szobaszám:2
- Állapot:Jó állapotú
- Hány szintes az ingatlan:Földszintes
- Komfortosság:nincs megadva
- Hányadik emeleti:1
- Lift:Nincs
- Parkolási lehetőség:nincs megadva
- Fűtés:Egyéb
- Bútorozottság:nincs megadva
- Fényviszony:Napfényes
- Tájolás:nincs megadva
- Kilátás:nincs megadva
- Internet:nincs megadva
- Akadálymentesített:nincs megadva
- Energiatanúsítvány:nincs megadva
- Villany:Van
- Víz:Van
- Gáz:nincs megadva
- Csatorna:Van
- Közös költség:16 300 Ft
- Üzenetküldés
- Hívás

Referencia szám: M319379

Hitel ajánlat
Ingatlan hirdetés leírása
Eladó Lakás, Eger, Eladó jó állapotú lakás - Eger
Kizárólag az OTP kínálatábanEladó egy teljeskörűen felújított, 2 szobás, 55 nm-es erkélyes lakás Eger közkedvelt részén, a Mátyás király úton amely egy rendezett társasház 1. emeletén helyezkedik el. Az ingatlan praktikus elrendezésű: 2 szoba, konyha, közlekedő, fürdőszoba, wc, valamint egy kis kamra biztosítja a kényelmes mindennapokat. a hőszigetelt műanyag nyílászárók redőnnyel felszereltek, a hideg-, meleg burkolatok egyaránt jó minőségűek. a társasház anyagi helyzete rendezett, a lépcsőházi nyílászárók cseréje már megtörtént. a közös költség 16300 Ft, mely tartalmaz egy felújítási alapot is. Az ingatlan fűtéséről-, valamint a meleg vízről kazán gondoskodik radiátoros hőleadókon keresztül. Az ingatlan jó elhelyezkedésének, valamint elosztásának köszönhetően befektetőknek, fiatal pároknak, illetve családosoknak egyaránt ideális választás lehet. a lakás előtt található közvetlenül a buszmegálló, az iskola, óvoda, posta, boltok is egy 200 méteren belül elérhetők. Jöjjön és tekintsük meg együtt, ebben az ingatlanban nem fog csalódni. OTP Banki hátterünknek köszönhetően finanszírozási igényekben (pl. Otthon Start Program, Babaváró, Falusi csok, CSOK Plusz, Lakáshitel, Személyi kölcsön stb. ), Illetve biztosítások tekintetében is díjmentesen, soron kívüli ügyintézéssel segítem ügyfeleim! Az adásvételi szerződéshez igény esetén ügyvédet biztosítunk. Referenciaszám: m319379 FIX 3% lakáshitelre megvehető

