Eladó új építésű lakás - Érd
- INGYENES HIRDETÉS FELADÁS
Ingatlan adatai
- Eladó vagy kiadó:Eladó
- Település:Érd
- Kategória:Lakás
- Alkategória:Tégla
- Alapterület:173 m2
- Csere is:Nem
- Hirdető:Cég
- Élő videón megtekinthető:Nem
- Szobaszám:6
- Állapot:Új építésű
- Hány szintes az ingatlan:Földszintes
- Komfortosság:nincs megadva
- Hányadik emeleti:3
- Erkély:nincs megadva
- Lift:Van
- Parkolási lehetőség:nincs megadva
- Fűtés:Hőszivattyús
- Bútorozottság:nincs megadva
- Fényviszony:Jó
- Tájolás:DNY
- Kilátás:nincs megadva
- Internet:nincs megadva
- Klíma:nincs megadva
- Akadálymentesített:nincs megadva
- Energiatanúsítvány:A
- Villany:Van
- Víz:Van
- Gáz:nincs megadva
- Csatorna:Van
- Kapcsolatfelvétel

Bucalics Roxána
+36-(30)-868-0334
Mondd meg a hirdetőnek, hogy a megveszLAK-on találtad a hirdetést.
Referencia szám: LK056567
Hitel ajánlatok
Ingatlan hirdetés leírása
Eladó lakás, Érd, Eladó új építésű lakás - Érd
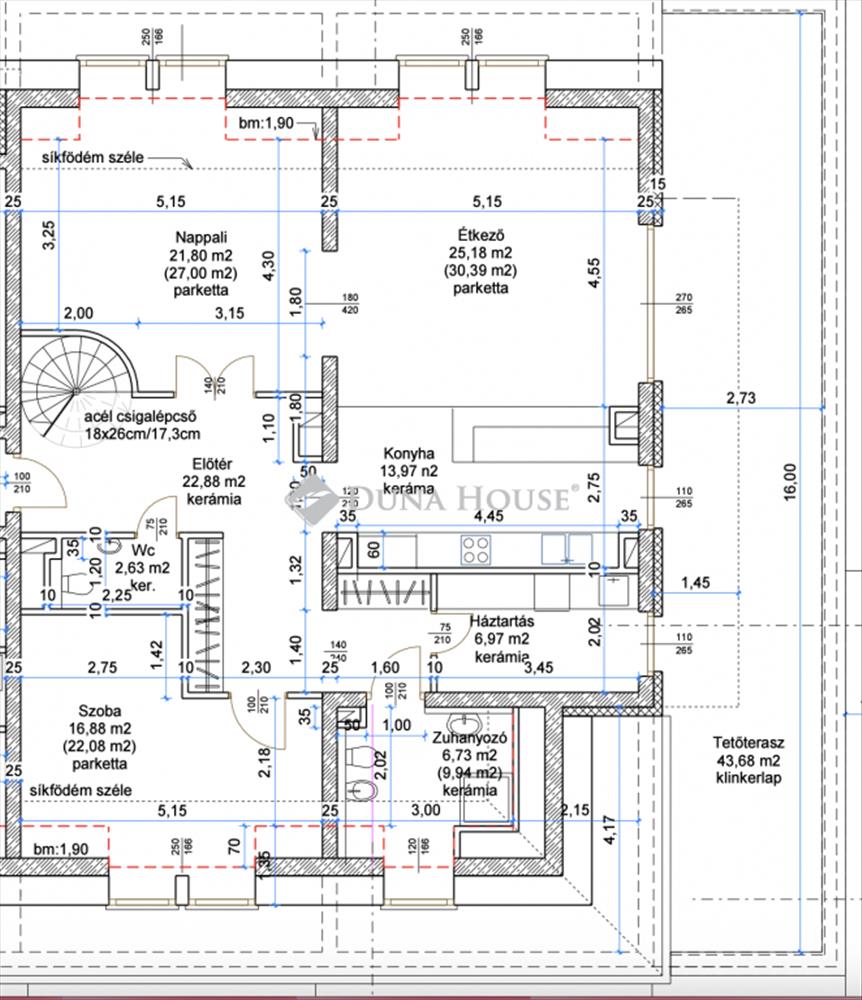
Belső 2 szintes penthouse lakás eladó központi helyen!
Már csak a burkolatokat és ajtókat kell kiválasztania ízlése szerint és költözhet is!
Rendkívüli lehetőség Érd Parkváros központi részén, közel a Bem térhez. Most Öné lehet kedvező m2 áron egy nettó 173 m2-es lakás 44 m2-es terasszal.
Tágas, világos terek köszönhetően az egyedi jó méretű nyílászáróknak.
Az ingatlant a 2025-ös év kedvezményes feltételeivel is megtudja vásárolni, az ingatlan cég tulajdonában van, használatbavételi engedéllyel már rendelkezik.
Foglalja le most leendő otthonát 10%-al. Saját ízlése és igénye szerint választhatja ki a lakás belső kinézetét.
Amennyiben egyedi igényei lennének az elosztással kapcsolatban a kivitelező rugalmas a változtatásokra.
Elosztását tekintve:
- Tágas előszoba
- Fürdőszoba
- Háztartási helyiség
- Külön mellékhelyiség
- 1 hálószoba
- Tágas és világos amerikai konyhás nappali 43 m2-es teraszkapcsolattal
Tetőtér:
- 3 egész méretű hálószoba
- 1 fürdőszoba mellékhelyiséggel
Műszaki adatok:
- a társasház monolit vasbeton szerkezetből épült, 26 db lakás található 4 szinten.
- 15 Cm homlokzati szigetelés
- Házközponti fűtés egyedi mérővel (hőszivattyú, fan coil rendszer, amely a hűtést szolgáltatja, H-tarifa)
- Minden helyiségben padlófűtés
- Tetőn korcolt lemezfedés
- 3 rétegű 6 légkamrás nyílászárók
- Szaniterek
- Hideg/meleg burkolatok ( 10 000 Ft/m2 meleg: 10 000 Ft/ m2 )
- Beltéri ajtók ( 100 000 Ft/db )
- 5 ponton záródó bejárati ajtó
EXTRÁK:
- 2 db felszíni parkoló
- Redőny szúnyoghálóval
Környék rendezett, csendes, minden perceken belül elérhető gyalog és autóval egyaránt.
További információkért hívjon bizalommal. Hitel.hu - Hasonlítsa össze a bankok lakáshitel ajánlatait

