Eladó új építésű lakás - Érd
- INGYENES HIRDETÉS FELADÁS
Ingatlan adatai
- Eladó vagy kiadó:Eladó
- Település:Érd
- Kategória:Lakás
- Alkategória:Tégla
- Alapterület:173 m2
- Csere is:Nem
- Hirdető:Cég
- Élő videón megtekinthető:Nem
- Szobaszám:6
- Állapot:Új építésű
- Hány szintes az ingatlan:Földszintes
- Komfortosság:nincs megadva
- Hányadik emeleti:3
- Erkély:nincs megadva
- Lift:Van
- Parkolási lehetőség:Udvaron
- Fűtés:Hőszivattyús
- Bútorozottság:nincs megadva
- Fényviszony:Jó
- Tájolás:DNY
- Kilátás:nincs megadva
- Internet:nincs megadva
- Klíma:Van
- Akadálymentesített:nincs megadva
- Energiatanúsítvány:nincs megadva
- Villany:Van
- Víz:Van
- Gáz:nincs megadva
- Csatorna:Van
- Kapcsolatfelvétel

Ivony Anita Marianna
+36-(20)-217-8829
Mondd meg a hirdetőnek, hogy a megveszLAK-on találtad a hirdetést.
Referencia szám: LK056567
Hitel ajánlatok
Ingatlan hirdetés leírása
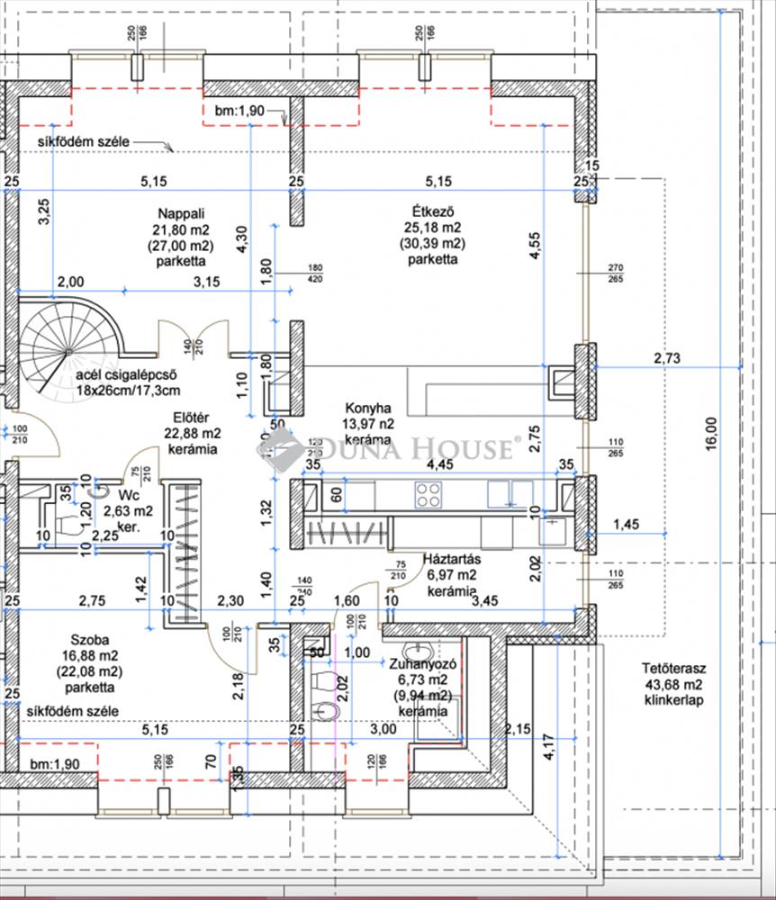
Eladó belső 2 szintes, 6 szobás penthouse lakás hatalmas teras...
Új építésű, belső 2 szintes penthouse lakás eladó! Már csak a burkolatokat és ajtókat kell kiválasztania ízlése szerint és költözhet is!
Rendkívüli lehetőség Érd Parkváros központi részén, közel a Bem térhez. Most Öné lehet kedvező áron egy nettó 173 m2-es lakás 44 m2-es terasszal. Tágas, világos terek köszönhetően az egyedi jó méretű nyílászáróknak. Az ingatlan cég tulajdonában van, használatbavételi engedéllyel már rendelkezik.
Foglalja le most leendő otthonát 10%-al. Saját ízlése és igénye szerint választhatja ki a lakás belső kinézetét. Amennyiben egyedi igényei lennének az elosztással kapcsolatban a kivitelező rugalmas a változtatásokra.
Elosztását tekintve:
- Tágas előszoba
- Fürdőszoba
- Háztartási helyiség
- Külön mellékhelyiség
- 1 hálószoba
- Tágas és világos amerikai konyhás nappali 43 m2-es teraszkapcsolattal
Tetőtér:
- 3 teljes méretű hálószoba
- 1 fürdőszoba mellékhelyiséggel
Műszaki adatok:
- a társasház monolit vasbeton szerkezetből épült, 26 db lakás található 4 szinten.
- 15 Cm homlokzati szigetelés.
- Házközponti fűtés egyedi mérővel (hőszivattyú, fan coil rendszer, amely a hűtést szolgáltatja, H-tarifa).
- Minden helyiségben padlófűtés.
- Tetőn korcolt lemezfedés.
- 3 Rétegű 6 légkamrás nyílászárók.
- Szaniterek.
- Hideg/meleg burkolatok (10 000 Ft. /m2).
- Beltéri ajtók (100 000 Ft. /Db).
- 5 Ponton záródó bejárati ajtó.
EXTRÁK:
- 2 db felszíni parkoló.
- Redőny szúnyoghálóval.
A környék rendezett, csendes, minden perceken belül elérhető gyalog és autóval egyaránt. További információkért hívjon bizalommal.
Referencia szám: lk056567 Hitel.hu - Hasonlítsa össze a bankok lakáshitel ajánlatait

