Eladó újszerű állapotú lakás - Érd
- INGYENES HIRDETÉS FELADÁS
Ingatlan adatai
- Eladó vagy kiadó:Eladó
- Település:Érd
- Kategória:Lakás
- Alkategória:Tégla
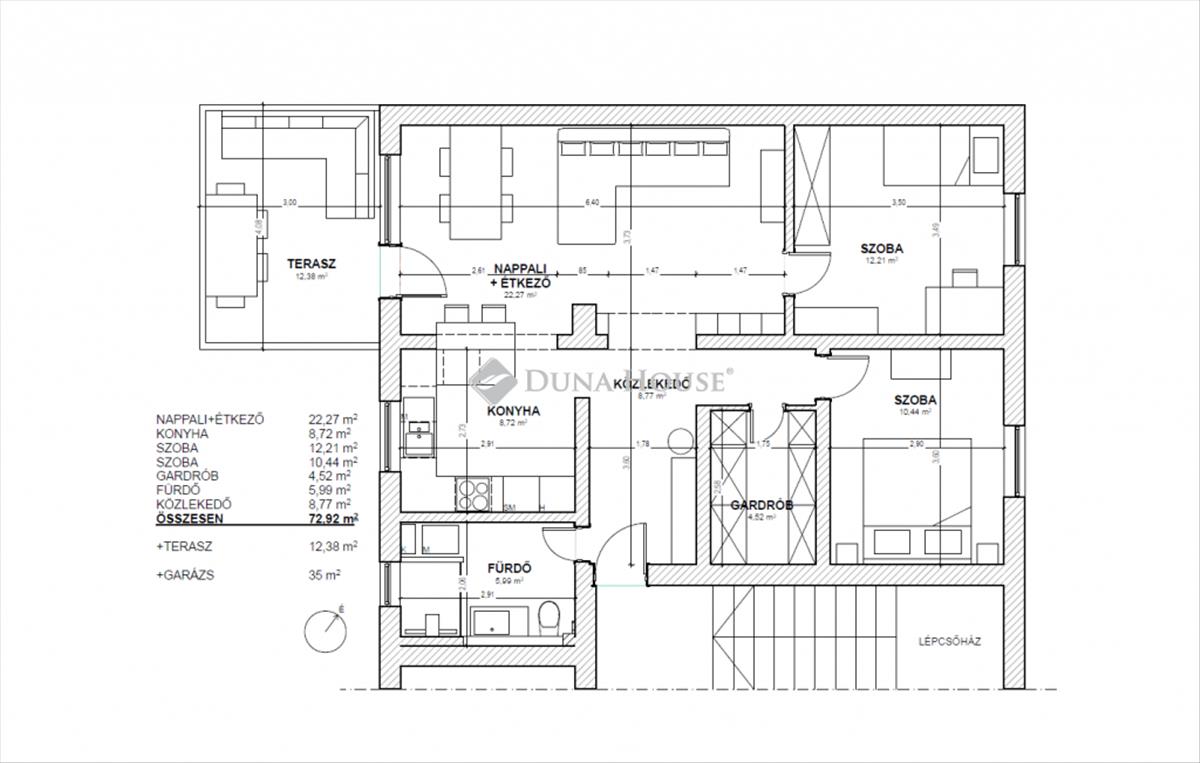
- Alapterület:73 m2
- Csere is:Nem
- Hirdető:Cég
- Élő videón megtekinthető:Nem
- Szobaszám:3
- Állapot:Újszerű, kitűnő
- Hány szintes az ingatlan:Földszintes
- Komfortosság:nincs megadva
- Hányadik emeleti:1
- Erkély:nincs megadva
- Lift:Nincs
- Parkolási lehetőség:nincs megadva
- Fűtés:Gáz (cirko)
- Bútorozottság:nincs megadva
- Fényviszony:Napfényes
- Tájolás:DNY
- Kilátás:nincs megadva
- Internet:nincs megadva
- Klíma:nincs megadva
- Akadálymentesített:nincs megadva
- Energiatanúsítvány:nincs megadva
- Villany:Van
- Víz:Van
- Gáz:nincs megadva
- Csatorna:Van
- Kapcsolatfelvétel

Miru Szilvia
+36-(20)-935-1952
Mondd meg a hirdetőnek, hogy a megveszLAK-on találtad a hirdetést.
Referencia szám: LK027290
Ingatlan hirdetés leírása
Eladó lakás, Érd, Eladó újszerű állapotú lakás - Érd
Valódi ritkaság érden! Terasszal, kétállásos garázzsal 35nm! Érd Parkvárosban, kisforgalmú utcában, családi házas környéken, eladó egy 4 lakásos társasház első emeletén, teljes körűen felújított teraszos lakás. a lakás 72, 9 m2-es nettó alapterületű két hálószobás, amerikai konyhás nappalival lett kialakítva. a nappaliból nyíló 12 m2-es fedett terasz a csendes udvarra néz. a lakáshoz tartozik még egy külön hrsz számon nyilvántartott 35 m2-es garázs, melyben két autó is kényelmesen elfér és közvetlenül a lépcsőházból is megközelíthető. a terasz és a garázs is a vételár részét képezik. Az épületet egy négy családból álló baráti társaság építtette saját részre, a tarsasházhoz egy közös használatú kert is tartozik. Az eladó lakást a jelenlegi tulajdonosa újíttatta fel saját célra 2020-ban. a praktikus elrendezésű lakásba egy tágas előszobán keresztül léphetünk be a zárt lépcsőházból, ahol már egyből az egész lakásra jellemző, azt egyedivé és otthonossá tevő belsőépítészeti megoldásokkal találkozunk. Az előtérből közvetlenül nyílik a modern fürdőszoba, mely épített zuhanyzóval került kialakításra, a kazán és mosógép szeparáltan lett benne elhelyezésre az intimitását növelve. a lakás szíve, egy több mint 30 nm-es, nappali + étkező + konyha, mely egyedi falfestésével és melegszínű parketta burkolatával teremt egyszerre modern és letisztult, mégis otthonos érzést. a tágas terasszal nyári szezonban ez a tér tovább bővíthető. a két hálószoba alaprajzi elrendezése lehetővé teszi, hogy bármelyik szobában kialakítható a szülői háló, vagy a gyerekszoba, vagy akár vendég- és dolgozószoba. Az előtér közlekedő részéből nyílik továbbá egy 4, 5 m2-es gardróbszoba is. a hálószobák észak-keleti tájolásúak, az élettér dél-nyugati fekvésű, térkapcsolataik és nagy ablakaik miatt egész évben világos és napos környezetet biztosítanak. Fűtés-Hűtés:A lakásban kombi-cirkó biztosítja a radiátoros fűtést és használati melegvizet, a kazán és a radiátorok is cserére kerültek a felújításkor. a fürdőszobában is ekkor került kialakításra egy törölközőszárítós radiátor. a hálószobában 2023-ban telepítésre került továbbá egy 2, 8 kW-os hűtő-fűtő klímaberendezés, mely az egész lakást egymagában képes lehűteni (2029-ig garanciális a megfelelő karbantartás mellett), emellett a nappaliban található még egy hűtő klímaberendezés is. a lakás rezsije rendkívül kedvező, egész évben havi15. 000 Ft. Körül mozog. Minden fogyasztás egyedi méréssel ellátott. Bútorzat:A beépített bútorok: gépesített konyhabútor (beépített hűtő, mélyhűtő, Whirlpool 6th sense sütő és mikró, mosogatógép, páraelszívó), nappali könyvespolc, gardróbszekrénysor, fürdőszoba szekrény, továbbá az előtér falán található belsőépítészeti elemek a vételár részét képezik. Épület:A négy lakásos épületnek azon fele, melyben a lakás is található, valamint a lépcsőház 2010- es évben jelentős felújításon esett át, 10 cm-es hőszigetelést kapott a teljes homlokzat, és a tető is plusz hőszigetelést és fölötte új víz-szigetelő réteget kapott. a bejárati ajtó és a lépcsőházi nyílászárók is korszerű többrétegű műanyag típusúra cserélődtek. a lakáshoz tartozó garázs kapuja távirányítóval nyitható, a garázs a lépcsőházból zárható ajtón keresztül is megközelíthető. a pincében található továbbá egy közös használatú tárolóhelyiség, melynek mérete kb. 8 m2 és egy kis ablaka is van, így akár növények teleltetésére is alkalmas. a garázsfeljáró területén további állandó jellegű parkolásra van lehetőség. Ez az Érdi otthon nem csupán egy hely, ahol élünk, hanem egy állomás, ahol megpihenhetünk a mindennapok zajától. Érd egy dinamikusan fejlődő város, ami kiváló infrastruktúrával, jó közlekedéssel Budapesthez közel, mégis elbűvölő természeti környezettel rendelkezik. Itt minden megtalálható, ami a kényelmes és tartalmas élethez szükséges: iskolák, óvodák, bevásárlóközpontok, sportolási lehetőségek és kulturális tevékenységek egyaránt. a város kínálata és a környék nyugodt atmoszférája tökéletes kombinációt alkot azok számára, akik igazán minőségi otthont keresnek. Ez az ingatlan egyedi lehetőséget kínál azok számára, akik egy családi házas környezetben szeretnének élni, de nem szeretnének lemondani a város közelében való lakhatás előnyeiről. Az otthon minden részlete aprólékosan lett megtervezve, hogy a kényelmet és a funkcionalitást előtérbe helyezze. a belső terek kialakításánál a modern igényeket tartották szem előtt, így a felújítás során csak a legjobb minőségű anyagokat használták fel. a lakás napfényes terekkel büszkélkedik, mely egész nap világos, kellemes légkört biztosít otthonának. a teraszról csodálatos kilátás nyílik a gondozott kertre, ahol a család minden tagja megtalálhatja a saját nyugodt kis zugát. a kényelmet növeli a mélygarázs, ahol autóját biztonságban tudhatjaNe hagyja ki ezt a különleges lehetőséget, hívjon még ma, hogy ne maradjon le erről a kiváló ingatlanról.
Budakeszi : Miru Szilvia 06-209351952
Referencia szám: lk027290-ml FIX 3% lakáshitelre megvehető


