Eladó újszerű állapotú lakás - Esztergom
- INGYENES HIRDETÉS FELADÁS
Ingatlan adatai
- Eladó vagy kiadó:Eladó
- Település:Esztergom
- Kategória:Lakás
- Alkategória:Tégla
- Alapterület:119 m2
- Csere is:Nem
- Hirdető:Magánszemély
- Élő videón megtekinthető:Nem
- Szobaszám:3 + 2 fél
- Állapot:Újszerű, kitűnő
- Hány szintes az ingatlan:3 szintes
- Komfortosság:Dupla komfortos
- Tetőtéri:Nem
- Kertkapcsolatos:Nem
- Hányadik emeleti:3
- Erkély:Nincs
- Lift:Nincs
- Parkolási lehetőség:Utcán
- Fűtés:Gáz (cirko)
- Bútorozottság:Gépesített
- Fényviszony:Napfényes
- Tájolás:DNY
- Kilátás:Panorámás
- Internet:nincs megadva
- Klíma:Van
- Akadálymentesített:nincs megadva
- Energiatanúsítvány:B
- Villany:nincs megadva
- Víz:nincs megadva
- Gáz:nincs megadva
- Csatorna:nincs megadva
- Közös költség:8 300 Ft
- Kapcsolatfelvétel

Ambrus Levente
+36-(20)-411-1638
Mondd meg a hirdetőnek, hogy a megveszLAK-on találtad a hirdetést.
Hitel ajánlatok
Ingatlan hirdetés leírása
TULAJDONOSTÓL: 119 nm-es, újszerű lakás!
Tulajdonostól eladó: panorámás, 119 nm -es, ragyogóan világos álomotthon a belvárosnál!
LEÍRÁS:
Eladó Esztergom egyik legkülönlegesebb ingatlana! Egy tehermentes, 119 m²-es, újszerű állapotú tégla lakás a belváros közvetlen közelében, amely azonnal költözhető.
Családosoknak ideális, 3+2 félszobás, belső kétszintes lakás Esztergom–Aranyhegyen, csendes, zöld környezetben.
Miért ez a legjobb választás a piacon?
🏔️ Lenyűgöző panoráma: a 3. emeleti elhelyezkedésnek köszönhetően zavartalan kilátás és csend fogadja – itt nincs felső szomszéd, aki zavarná a nyugalmát!
🌞 3 Oldalról világos: a lakás ritka adottsága, hogy három égtáj felé vannak ablakai, így reggeltől estig természetes fényben úszik minden helyiség.
🍳 Gépesített konyha és beépített bútorok: a vételár részét képezi a teljes, egyedi tervezésű konyhabútor beépített gépekkel, valamint az összes beépített szekrény. Ez több millió forintos azonnali megtakarítás Önnek!
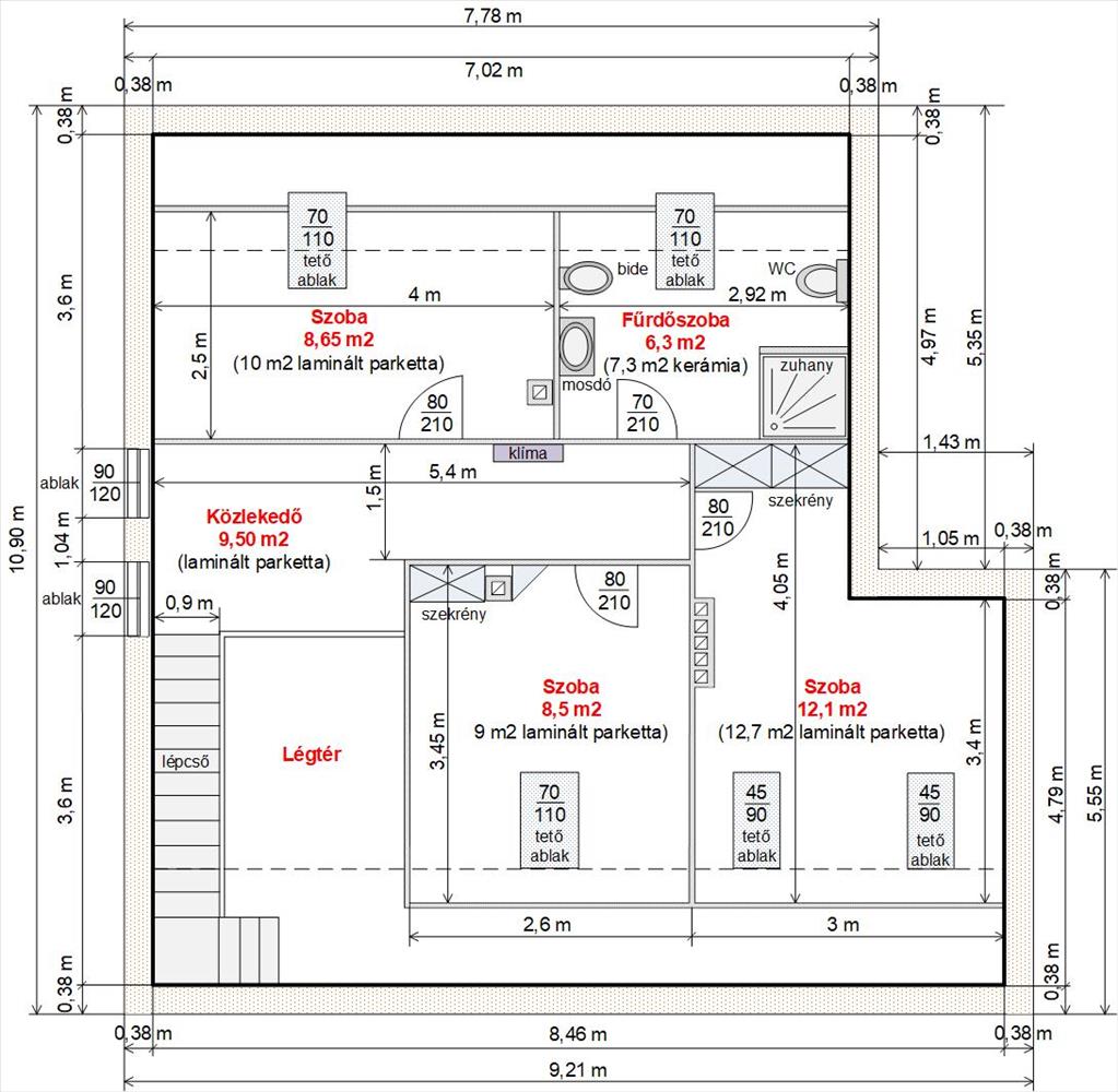
Alsó szint:
•előszoba
•nappali + étkező + konyha egy légtérben
•nagy hálószoba
•tágas, kádas fürdőszoba
Felső szint:
•közlekedő
•3 külön nyíló szoba
•zuhanyzós fürdőszoba
A lakáshoz tartozik, bruttó területen felüli 25 nm -es, burkolt padlástér, amely jelenleg gardróbként/tárolóként funkcionál, valamint egy földszinti, zárható saját helyiség, a házban pedig közös biciklitároló is rendelkezésre áll.
🏠 Karbantartott ház: a 11 lakásos társasház és a lépcsőház 2005-ben teljes körű felújításon esett át (új burkolatok, esztétikai frissítés), így tiszta és rendezett környezet fogadja.
✅ Alacsony rezsi: a 119 nm -es alapterület ellenére a modern szigetelésnek és a korszerű fűtésrendszernek köszönhetően a fenntartási költségek rendkívül kedvezőek.
🚗 Ingyenes parkolás: Közvetlenül a ház előtt mindig van szabad hely, parkolási díj nélkül.
KIEMELT műszaki TARTALOM:
•Alapterület: 119 m² (újszerű, azonnal költözhető)
•Nyílászárók: Minőségi, hőszigetelt fa ablakok és fa biztonsági bejárati ajtó
•Belső ajtók: Hörmann magas hangszigetelésű fém beltéri ajtók (maximális csend és szeparáció minden szobában! )
•Fűtés: Új, prémium Viessmann kondenzációs kazán + programozható termosztát
•Hűtés: Klímaberendezés mindkét szinten kiépítve
•Rezsicsökkentés: Egyedi mérőórák, rendkívül kedvező fenntartási költségek
•Lokáció Belváros, bolt, iskola, óvoda, buszmegálló, orvosi rendelő és sportolási lehetőségek pár perc sétára elérhetők
•Irányár: 94. 99 M
Várom hívását bizalommal, akár hétvégén is. FIX 3% lakáshitelre megvehető
Tetszett ez az eladó Esztergomi újszerű állapotú 3 egész és 2 fél szobás tégla lakás? Hívd fel a hirdetőt most, és tudj meg mindent erről az eladó tégla lakásról! Ha gondolod nézelődj tovább az eladó lakás Esztergom oldal hirdetései között. Ennek az eladó lakásnak az ára 94990000 Ft és mivel az alapterülete 119 négyzetméter, ezért az átlagos négyzetméterára 798235 HUF/m2.
Az eladó lakások menüpontban további hirdetések között is böngészhetsz. Ha van kedved, akkor böngészhetsz a Ambrus Levente összes hirdetése között.

