Eladó új építésű lakás Fonyód
| Kedvencbe | Megosztás | Árfigyelő |
| Kedvezményes lakáshitel ajánlatok | ||
| 61 115 000 HUF | ||
Ingatlan adatai
- Eladó vagy kiadó:Eladó
- Település:Fonyód
- Kategória:Lakás
- Alkategória:Tégla
- Alapterület:29 m2
- Csere is:Nem
- Hirdető:Cég
- Élő videón megtekinthető:Nem
- Szobaszám:1 + 1 fél
- Állapot:Új építésű
- Hány szintes az ingatlan:nincs megadva
- Komfortosság:nincs megadva
- Kertkapcsolatos:Igen
- Hányadik emeleti:Földszint
- Parkolási lehetőség:nincs megadva
- Fűtés:nincs megadva
- Bútorozottság:nincs megadva
- Fényviszony:nincs megadva
- Tájolás:nincs megadva
- Kilátás:nincs megadva
- Internet:nincs megadva
- Akadálymentesített:nincs megadva
- Energiatanúsítvány:nincs megadva
- Villany:nincs megadva
- Víz:nincs megadva
- Gáz:nincs megadva
- Csatorna:nincs megadva
- Üzenetküldés
- Hívás


Hitel ajánlat
Ingatlan hirdetés leírása
A Lakáskulcs-direct Ingatlan és Hiteliroda kínálatából megvásá...
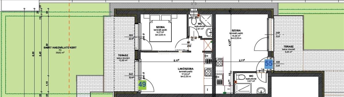
A Lakáskulcs-direct Ingatlan és Hiteliroda kínálatából megvásárolható:Fonyód kedvelt részén, kellemes környezetben, a Balaton parttól kb. 100 Méterre épülő, kiváló minőségű társasház földszintjén nappali 1 szobás 35, 95 nm -es kertkapcsolatos ( kert: 39, 62 nm ) lakás eladó 2027 év eleji tervezett átadással.
- a lakáshoz felszíni beálló valamint garázs vásárolható.
- a remek lokáció, a Balatoni környezet, a kiváló tájolás, a minőségi és modern lakások és az elsőrangú közlekedés egyszerre biztosítják a ház apartmanjainak értékállóságát.
- a társasház lakásai nemcsak állandó otthonnak, nyaralónak, de kiadásra és befektetési célra is tökéletesen megfelelnek.
További információ:
Kovács-Borsányi Lívia
+36 (20) 579 6779
Siófok Lakáskulcs-direct Ingatlaniroda
8600 Siófok, Beszédes József sétány 83. Földszint 1. Hitel.hu - Hasonlítsa össze a bankok lakáshitel ajánlatait
Tetszett ez az eladó Fonyódi új építésű 1 egész és 1 fél szobás tégla lakás? Hívd fel a hirdetőt most, és tudj meg mindent erről az eladó tégla lakásról! Ha gondolod nézelődj tovább az eladó lakás Fonyód oldal hirdetései között. Ennek az eladó lakásnak az ára 61115000 Ft és mivel az alapterülete 29 négyzetméter, ezért az átlagos négyzetméterára 2107414 HUF/m2.
Az eladó lakások menüpontban további hirdetések között is böngészhetsz. Ha van kedved, akkor böngészhetsz a Kovács-Borsányi Lívia összes hirdetése között, vagy akár a/az LAKÁSKULCS - direct Ingatlan és Hiteliroda összes hirdetése között is.
További hirdetéseket találsz az eladó Balaton déli parti nyaralók között. Ha a teljes régió kínálata érdekel, nézd meg az eladó Balatoni nyaralók oldalt.

