Eladó átlagos állapotú lakás Fonyód
| Kedvencbe | Megosztás | Árfigyelő |
| FIX 3% lakáshitelre megvehető | ||
| 61 900 000 HUF | ||
Ingatlan adatai
- Eladó vagy kiadó:Eladó
- Település:Fonyód
- Kategória:Lakás
- Alkategória:Tégla
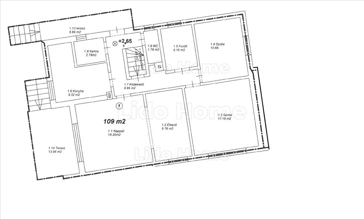
- Alapterület:109 m2
- Csere is:Nem
- Hirdető:Cég
- Élő videón megtekinthető:Nem
- Szobaszám:2
- Állapot:Átlagos állapotú
- Hány szintes az ingatlan:nincs megadva
- Komfortosság:nincs megadva
- Hányadik emeleti:Földszint
- Parkolási lehetőség:nincs megadva
- Fűtés:Egyedi
- Bútorozottság:nincs megadva
- Fényviszony:nincs megadva
- Tájolás:nincs megadva
- Kilátás:Kertre néző
- Internet:nincs megadva
- Akadálymentesített:nincs megadva
- Energiatanúsítvány:nincs megadva
- Villany:nincs megadva
- Víz:nincs megadva
- Gáz:nincs megadva
- Csatorna:nincs megadva
- Üzenetküldés
- Hívás

Fejesné Németh Erzsébet
Mondd meg a hirdetőnek, hogy a megveszLAK-on találtad a hirdetést.

Hitel ajánlat
Ingatlan hirdetés leírása
Eladó összkomfortos lakás Fonyódon
A Lido Home Balatonboglár Ingatlaniroda megvételre kínál egy Fonyód hangulatos utcájában lévő, bruttó 109m2-es téglalakást.Fonyód csendes, nyugodt részén, mindössze 1300 méterre a Balatontól eladó egy 109 m²-es, földszinti, összkomfortos téglalakás.
A földszinti lakásban található 2 szoba, egy étkezővel egybenyitott nappali, konyha, kamra, fürdőszoba, wc és egy közlekedő. Az ingatlanhoz két terasz, egy saját garázs, valamint az alagsorban egy kazánház és tároló is tartozik.
A 472 m2-es telek osztatlan közös tulajdonban van, de használati rendet állapítottak meg, ez a képeknél látható. Így a telek 156 m2-es.
Ez az ingatlan remek választás lehet mind állandó lakhatásra, mind nyaralónak. Ha egy igényes otthonra vágyik Fonyód csendesebb környékén, akkor ez a ház tökéletes lehet Önnek!
Ne hagyja ki ezt a kiváló lehetőséget, tekintsük meg együtt!
Amennyiben a lido home Ingatlaniroda által kínált fonyódi téglalakás, vagy bármely a kínálatunkban található ingatlan felkeltette érdeklődését, hívjon bármikor a megadott telefonszámon.
Vásárolna, de nincs rá keret? Kollégám díjmentes, bank semleges hitel ügyintézéssel áll rendelkezésére.
LIDO home - Ingatlanok egy életen át! FIX 3% lakáshitelre megvehető

