Eladó új építésű lakás Fonyód
| Kedvencbe | Megosztás | Árfigyelő |
| Kedvezményes lakáshitel ajánlatok | ||
| 59 967 500 HUF | ||
Ingatlan adatai
- Eladó vagy kiadó:Eladó
- Település:Fonyód
- Kategória:Lakás
- Alkategória:Tégla
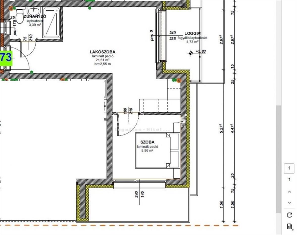
- Alapterület:33 m2
- Csere is:Nem
- Hirdető:Cég
- Élő videón megtekinthető:Nem
- Szobaszám:1 + 1 fél
- Állapot:Új építésű
- Hány szintes az ingatlan:nincs megadva
- Komfortosság:nincs megadva
- Hányadik emeleti:2
- Parkolási lehetőség:nincs megadva
- Fűtés:nincs megadva
- Bútorozottság:nincs megadva
- Fényviszony:nincs megadva
- Tájolás:nincs megadva
- Kilátás:nincs megadva
- Internet:nincs megadva
- Akadálymentesített:nincs megadva
- Energiatanúsítvány:nincs megadva
- Villany:nincs megadva
- Víz:nincs megadva
- Gáz:nincs megadva
- Csatorna:nincs megadva
- Üzenetküldés
- Hívás

Kovács-Borsányi Lívia
Mondd meg a hirdetőnek, hogy a megveszLAK-on találtad a hirdetést.

Hitel ajánlat
Ingatlan hirdetés leírása
A Lakáskulcs-direct Ingatlan és Hiteliroda kínálatából megvásá...
A Lakáskulcs-direct Ingatlan és Hiteliroda kínálatából megvásárolható:Fonyód kedvelt részén, kellemes környezetben, a Balaton parttól kb. 100 Méterre épülő, kiváló minőségű társasház második emeletén nappali 1 szobás 33, 76 nm-es ( erkély: 4, 73 nm) lakás eladó 2027 év eleji tervezett átadással.
- a lakáshoz felszíni beálló valamint garázs vásárolható.
- a remek lokáció, a Balatoni környezet, a kiváló tájolás, a minőségi és modern lakások és az elsőrangú közlekedés egyszerre biztosítják a ház apartmanjainak értékállóságát.
- a társasház lakásai nemcsak állandó otthonnak, nyaralónak, de kiadásra és befektetési célra is tökéletesen megfelelnek.
További információ:
Kovács-Borsányi Lívia
+36 (20) 579 6779
Siófok Lakáskulcs-direct Ingatlaniroda
8600 Siófok, Beszédes József sétány 83. Földszint 1. Hitel.hu - Hasonlítsa össze a bankok lakáshitel ajánlatait

