Eladó új építésű lakás Fonyód
| Kedvencbe | Megosztás | Árfigyelő |
| Kedvezményes lakáshitel ajánlatok | ||
| 74 675 000 HUF | ||
Ingatlan adatai
- Eladó vagy kiadó:Eladó
- Település:Fonyód
- Kategória:Lakás
- Alkategória:Tégla
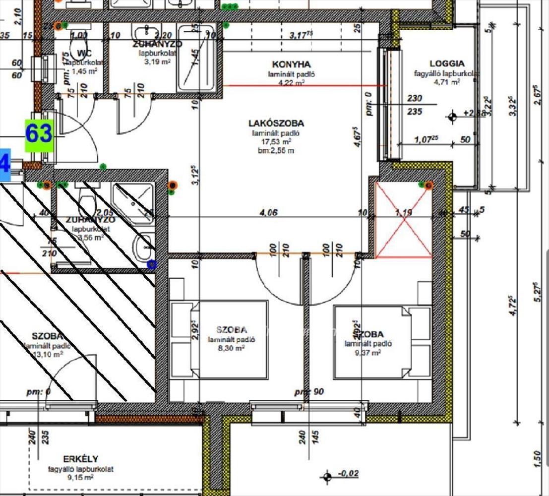
- Alapterület:46 m2
- Csere is:Nem
- Hirdető:Cég
- Élő videón megtekinthető:Nem
- Szobaszám:1 + 2 fél
- Állapot:Új építésű
- Hány szintes az ingatlan:Földszintes
- Komfortosság:nincs megadva
- Hányadik emeleti:1
- Lift:Van
- Parkolási lehetőség:Udvaron
- Fűtés:Hőszivattyús
- Bútorozottság:nincs megadva
- Fényviszony:Jó
- Tájolás:nincs megadva
- Kilátás:nincs megadva
- Internet:nincs megadva
- Akadálymentesített:nincs megadva
- Energiatanúsítvány:A+
- Villany:Van
- Víz:Van
- Gáz:nincs megadva
- Csatorna:Van
- Üzenetküldés
- Hívás


Hitel ajánlat
Ingatlan hirdetés leírása
Eladó Lakás, Fonyód, Eladó új építésű lakás - Fonyód
A ütem első emelet 63, 1+2 szoba. Balaton déli partjának egyik leghosszabb szabad strandjának közelében, Fonyódon új építésű lakóparkban kínálunk ingatlanokat kedvező áron. Az 50 lakásból, apartmanból, nyaralóból álló modern épület luxus színvonalú és meghatározó szereplője a környéknek. a tervezés során a magas műszaki tartalom mellett fontos szempont volt, hogy jól funkcionáló, élhető terek legyenek kialakítva elegáns megjelenésű épületben. Minden lakáshoz tartozik terasz, a földszinti lakásokhoz saját használatú zöld terület biztosított. a fűtésről és a lakás hűtéséről fűtő-hűtő hőszivattyú gondoskodik.A napozó tetőn közösségi tér a jó használhatóságot biztosítja, ezen kívül jakuzzi és szauna kerül kialakításra Balatonra néző panorámával.
A projekt átadása a tervek szerint: 2026. II. Negyedéve.
A lakás besorolás: Társasház a lakásvásárláshoz államilag támogatott hitelek, csok, kedvezményes hitelek és lakástámogatási termékek igényelhetőek, ennek elérésében díjmentes szolgáltatásunkkal segítjük a vásárlást!
Referencia szám: m298998-ml Hitel.hu - Hasonlítsa össze a bankok lakáshitel ajánlatait
Tetszett ez az eladó Fonyódi új építésű 1 egész és 2 fél szobás tégla lakás? Hívd fel a hirdetőt most, és tudj meg mindent erről az eladó tégla lakásról! Ha gondolod nézelődj tovább az eladó lakás Fonyód oldal hirdetései között. Ennek az eladó lakásnak az ára 74675000 Ft és mivel az alapterülete 46 négyzetméter, ezért az átlagos négyzetméterára 1623370 HUF/m2.
Az eladó lakások menüpontban további hirdetések között is böngészhetsz. Ha van kedved, akkor böngészhetsz a Kercza Henrietta összes hirdetése között, vagy akár a/az OTPip Zalaegerszeg Kossuth Lajos utca 32 - OTP Ingatlanpont Iroda összes hirdetése között is.
További hirdetéseket találsz az eladó Balaton déli parti nyaralók között. Ha a teljes régió kínálata érdekel, nézd meg az eladó Balatoni nyaralók oldalt.

