Eladó új építésű lakás - Gyömrő
- INGYENES HIRDETÉS FELADÁS
Ingatlan adatai
- Eladó vagy kiadó:Eladó
- Település:Gyömrő
- Kategória:Lakás
- Alkategória:Tégla
- Alapterület:75 m2
- Csere is:Nem
- Hirdető:Cég
- Élő videón megtekinthető:Nem
- Szobaszám:3
- Állapot:Új építésű
- Hány szintes az ingatlan:Földszintes
- Komfortosság:nincs megadva
- Hányadik emeleti:Földszint
- Erkély:nincs megadva
- Lift:Nincs
- Parkolási lehetőség:nincs megadva
- Fűtés:Hőszivattyús
- Bútorozottság:nincs megadva
- Fényviszony:Jó
- Tájolás:DK
- Kilátás:nincs megadva
- Internet:nincs megadva
- Klíma:nincs megadva
- Akadálymentesített:nincs megadva
- Energiatanúsítvány:nincs megadva
- Villany:Van
- Víz:Van
- Gáz:nincs megadva
- Csatorna:Van
- Kapcsolatfelvétel

Aczél Adrienn
+36-(20)-488-1084
Mondd meg a hirdetőnek, hogy a megveszLAK-on találtad a hirdetést.
Referencia szám: LK030135
Hitel ajánlatok
Ingatlan hirdetés leírása
Kastélydomb lakóparkban újépítésű otthonok
Költözzön Gyömrő legexkluzívabb lakóparkjába a Kastélydombra!
Ez az utolsó lehetőség, hogy új építésű lakást vásároljon a méltán népszerű Kastélydomb lakóparkban közvetlenül a beruházótól, közvetítői díj nélkül.
Háromlakásos, prémium kivitelezésű társasház, csendes, zöld környezetben, mégis mindenhez közel. Budapest (m0) 10 percre, az M4-es autópálya 4 percre elérhető.
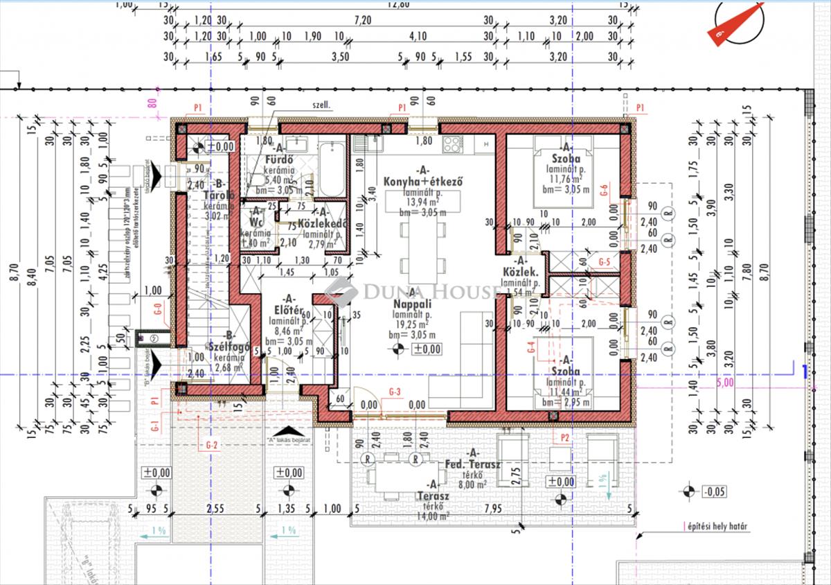
Lakás főbb adatai:
76 m² nettó lakótér
22 m² fedett terasz
120 m² saját kertkapcsolat
2 db térkövezett kocsibeálló a telken belül, benne az árban
A három lakás két különálló épületben kapott helyet, így nagyobb nyugalmat és kényelmet biztosít
Elrendezés:
amerikai konyhás nappali
2 hálószoba
fürdőszoba WC-vel
külön WC
külön gardrób
A lakópark kiemelt szolgáltatásai:
sorompós, 24 órás portaszolgálat
kamerarendszerrel ellátott biztonságos környezet
saját óvoda, játszótér és kutyafuttató
A közelben elérhető:
uszoda, rekreációs park mini állatkerttel, horgásztó, tófürdő, spar, Tesco, és sok más.
Prémium műszaki tartalom, jövőtálló kivitelezés:
hőszivattyús fűtés és padlófűtés minden helyiségben, termosztátokkal szabályozható
3 rétegű rehau Synego nyílászárók
redőny a hálószobákban (alapfelszereltség része)
fokozott hangszigetelésű lakáselválasztó falak
beépített riasztórendszer
15 cm külső és 30 cm tetőszigetelés, betoncserép fedéssel
távirányítós kapu, kaputelefon minden lakásban
választható burkolatok 7. 000 Ft/m²-ig
okos otthon rendszer: wifi-s termosztátvezérlés és wifi-s klímavezérlés
ajándék hőszivattyús klímaberendezés minden lakáshoz
Fizetési konstrukció:
20% önerővel leköthető
80% csak a kulcsátadáskor, a használatbavételi engedély után fizetendő
CSOK Plusz és banki hitel is igénybe vehető (otp partnerbankként)
Teljes körű, díjmentes tanácsadás és ügyintézés
Beruházónk több mint 60 átadott lakással rendelkezik Gyömrőn referenciák megtekinthetők!
Amennyiben egy biztonságos, nyugodt környezetben épült, magas műszaki színvonalú, jövőtálló otthont keres, kérjen részletes műszaki tájékoztatót, alaprajzot vagy időpontot a helyszíni bejáráshoz.
Keressen bizalommal örömmel segítünk.
Aczél Adrienn, Tel. : +36/20 488 1084 E-mail: aczel. Adrienn@dh. Hu
A Duna House teljes kínálatával kapcsolatban forduljon hozzám bizalommal.
Hitelügyintézés a legjobb feltételekkel és a leggyorsabban.
Eladás és vétel teljes körű ügyintézése, ingyenes tanácsadás, értékbecslés, megbízható ügyvédi háttér biztosítása.
Nézze meg facebook értékesítői oldalamat, ahol az új megbízásainkat láthatja és hasznos tippeket olvashat.
Https://www. Facebook. Com/misianadrienn
Referencia szám: lk030135 FIX 3% lakáshitelre megvehető

