Eladó jó állapotú lakás - Gyöngyös
- INGYENES HIRDETÉS FELADÁS
Ingatlan adatai
- Eladó vagy kiadó:Eladó
- Település:Gyöngyös
- Kategória:Lakás
- Alkategória:Tégla
- Alapterület:87 m2
- Csere is:Nem
- Hirdető:Cég
- Élő videón megtekinthető:Nem
- Szobaszám:3
- Állapot:Jó állapotú
- Hány szintes az ingatlan:2 szintes
- Komfortosság:nincs megadva
- Hányadik emeleti:3
- Erkély:nincs megadva
- Lift:Nincs
- Parkolási lehetőség:nincs megadva
- Fűtés:Gáz (cirko)
- Bútorozottság:nincs megadva
- Fényviszony:Napfényes
- Tájolás:nincs megadva
- Kilátás:nincs megadva
- Internet:nincs megadva
- Klíma:nincs megadva
- Akadálymentesített:nincs megadva
- Energiatanúsítvány:nincs megadva
- Villany:Van
- Víz:Van
- Gáz:nincs megadva
- Csatorna:Van
- Közös költség:12 000 Ft
- Kapcsolatfelvétel

Gulyás Gáborné
+36-(20)-426-0142
Mondd meg a hirdetőnek, hogy a megveszLAK-on találtad a hirdetést.
Referencia szám: M323363
Hitel ajánlatok
Ingatlan hirdetés leírása
Eladó Lakás, Gyöngyös
Gyöngyösön, belvárosi lakás új tulajdonosát várja!
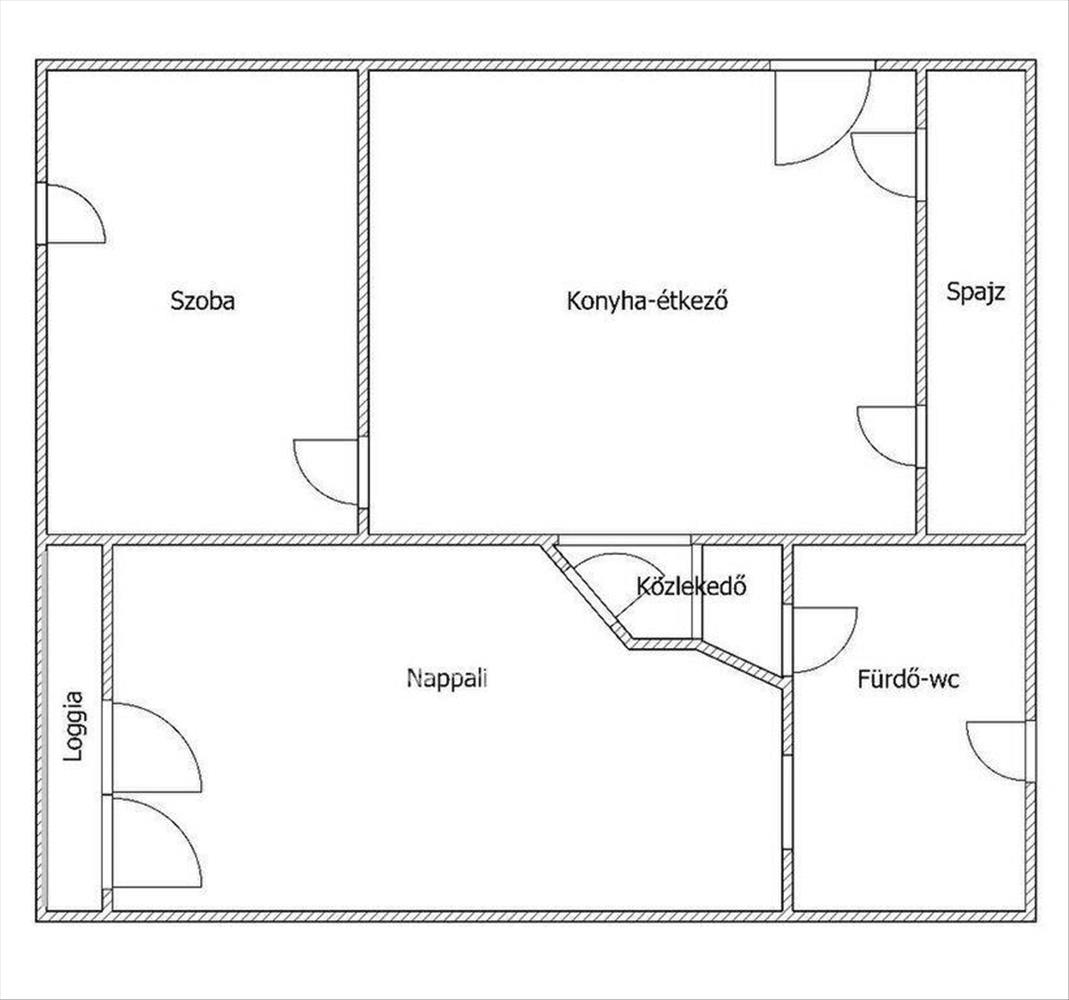
Az épület Gyöngyös belvárosában található, egy tetőtéri, belső kétszintes, 87 m2-es lakás, amely frissen festett, megóvott állapotú, és akár azonnal költözhető.
Ideális választás lehet családoknak, pároknak vagy befektetésnek is, hiszen a belvárosi elhelyezkedés miatt minden fontos szolgáltatás könnyen elérhető.
-87 m2 alapterület
- tetőtéri, belső kétszintes kialakítás
-frissen festett, megóvott állapot
-azonnal költözhető
-gázcirkó fűtés
- villanybojler a melegvízhez
- belvárosi elhelyezkedés
Ha egy tágas, belvárosi lakást keres, remek elrendezéssel, érdemes megnézni!
Amennyiben érdekes ezen ajánlatom, keressen bizalommal! FIX 3% lakáshitelre megvehető
Tetszett ez az eladó Gyöngyösi jó állapotú 3 szobás tégla lakás? Hívd fel a hirdetőt most, és tudj meg mindent erről az eladó tégla lakásról! Ha gondolod nézelődj tovább az eladó lakás Gyöngyös oldal hirdetései között. Ennek az eladó lakásnak az ára 47500000 Ft és mivel az alapterülete 87 négyzetméter, ezért az átlagos négyzetméterára 545977 HUF/m2.
Az eladó lakások menüpontban további hirdetések között is böngészhetsz. Ha van kedved, akkor böngészhetsz a Gulyás Gáborné összes hirdetése között, vagy akár a/az OTPip Eger Kertész utca 25 - OTP Ingatlanpont Iroda összes hirdetése között is.

