Eladó új építésű lakás Győr
| Kedvencbe | Megosztás | Árfigyelő |
| FIX 3% lakáshitelre megvehető | ||
| 67 990 000 HUF | ||
Ingatlan adatai
- Eladó vagy kiadó:Eladó
- Település:Győr
- Kategória:Lakás
- Alkategória:Tégla
- Alapterület:79 m2
- Csere is:Nem
- Hirdető:Cég
- Élő videón megtekinthető:Nem
- Szobaszám:4
- Állapot:Új építésű
- Hány szintes az ingatlan:nincs megadva
- Komfortosság:nincs megadva
- Hányadik emeleti:1
- Parkolási lehetőség:nincs megadva
- Fűtés:nincs megadva
- Bútorozottság:nincs megadva
- Fényviszony:nincs megadva
- Tájolás:nincs megadva
- Kilátás:nincs megadva
- Internet:nincs megadva
- Akadálymentesített:nincs megadva
- Energiatanúsítvány:nincs megadva
- Villany:Van
- Víz:Van
- Gáz:nincs megadva
- Csatorna:Van
- Üzenetküldés
- Hívás


Hitel ajánlat
Ingatlan hirdetés leírása
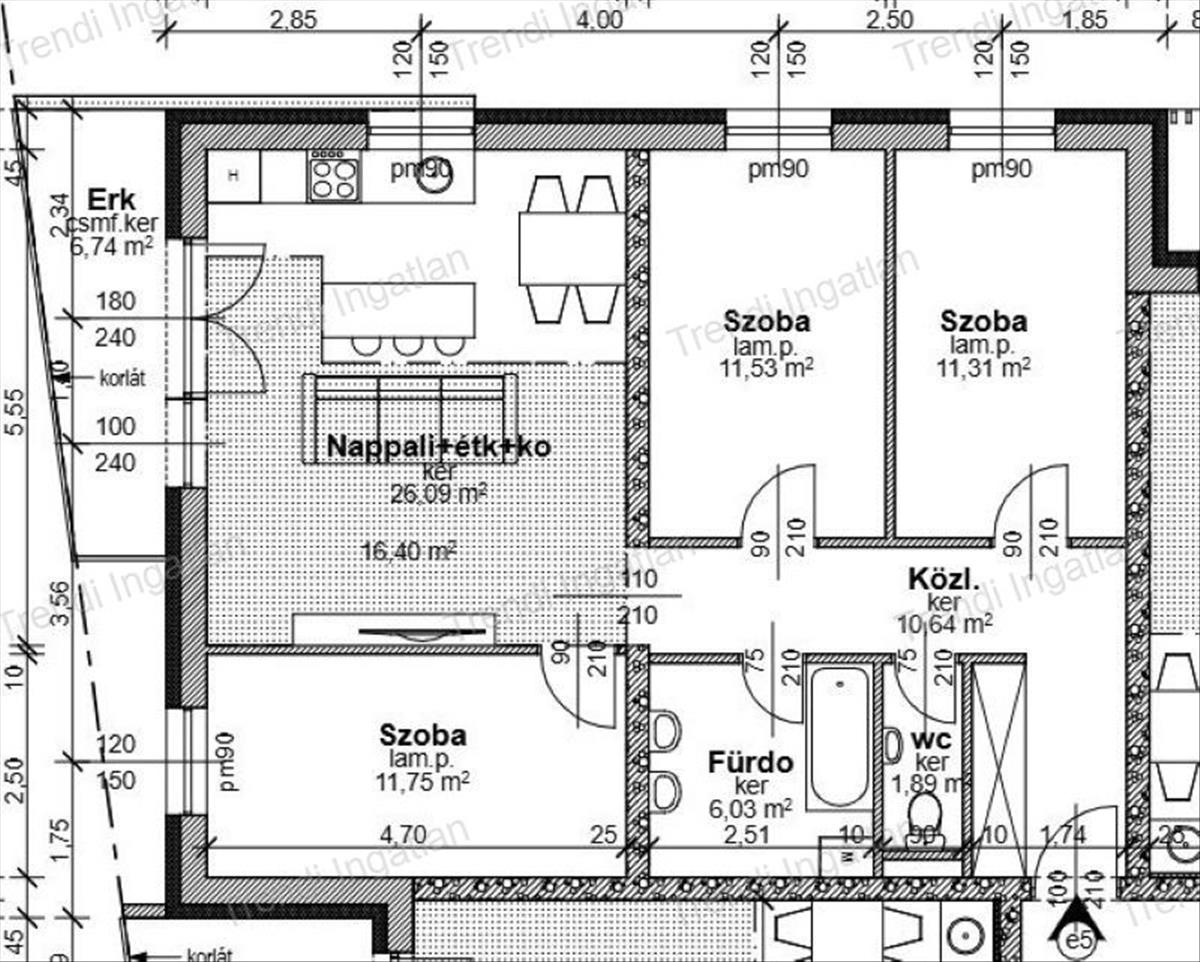
Nappali + 3 szobás, erkélyes lakás
2026-Ban átadás! Már csak két szabad lakás van!Győr-Belvárosától pár perces autóútra, Szitásdomb új kialakítású részén új építésű 29 lakásos társasházban nappali + 3 szobás lakás eladó.
Az 1. emeleten található 79, 24 nm-es ingatlanban amerikai konyhás nappali, 3 szoba, fürdőszoba, külön wc, közlekedő, előtér kerül kialakításra. a nappaliból 6, 74 nm-es erkély nyílik.
Az ingatlan fűtéskész ára: 67. 990. 000 Ft. Kulcsrakész befejezés kérhető.
Gépkocsibeálló ára: 1. 700. 000 Ft
Lehetőség van tároló vásárlására is, ára: 1. 500. 000 Ft-tól.
A társasház Szitásdomb új lakóparkjában épül. a földszinti lakások terasszal, az emeleti lakások erkéllyel/terasszal rendelkeznek. a társasház zárt udvarán felszíni parkolók kerülnek kialakításra. a társasház 30 cm-es falazóelemből, 20 cm-es homlokzati hőszigeteléssel épül. a műanyag, hőszigetelt nyílászárók 6 légkamrásak, 3 rétegű üvegezéssel rendelkeznek. Az ár tartalmazza a redőny előkészítését lefutókkal, az elektromos kiépítés felár ellenében kérhető. a társasház fűtését hőszivattyú biztosítja. Lakásonként egyedi hőmennyiségmérő, a fürdőszobában törölközőszárító radiátor kerül. Klímakiépítés igény esetén felár ellenében kérhető.
A társasház átadásának tervezett időpontja: 2026 nyár
Bővebb információkért keressen bizalommal!
Hétköznap és hétvégén is várom hívását!
A hirdetésben feltüntetett képek illusztrációk. FIX 3% lakáshitelre megvehető

