Eladó új építésű lakás - Győr
- INGYENES HIRDETÉS FELADÁS
Ingatlan adatai
- Eladó vagy kiadó:Eladó
- Település:Győr
- Kategória:Lakás
- Alkategória:Tégla
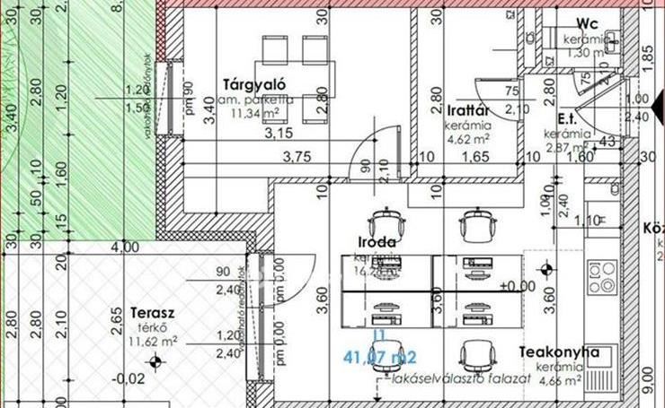
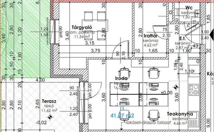
- Alapterület:46 m2
- Csere is:Nem
- Hirdető:Cég
- Élő videón megtekinthető:Nem
- Szobaszám:2
- Állapot:Új építésű
- Hány szintes az ingatlan:nincs megadva
- Komfortosság:nincs megadva
- Hányadik emeleti:Földszint
- Erkély:Van
- Lift:Nincs
- Parkolási lehetőség:Udvaron
- Fűtés:Egyéb
- Bútorozottság:nincs megadva
- Fényviszony:Jó
- Tájolás:nincs megadva
- Kilátás:nincs megadva
- Internet:nincs megadva
- Klíma:nincs megadva
- Akadálymentesített:nincs megadva
- Energiatanúsítvány:A
- Villany:Van
- Víz:Van
- Gáz:nincs megadva
- Csatorna:Van
- Kapcsolatfelvétel

Szabó Gábor
+36-(70)-639-8927
Mondd meg a hirdetőnek, hogy a megveszLAK-on találtad a hirdetést.
Referencia szám: M260367
Hitel ajánlatok
Ingatlan hirdetés leírása
Eladó Lakás, Győr, Eladó új építésű lakás - Győr
Győr-Szabadhegy kiváló lokációju városrészében, prémium hőszivattyús padló / mennyezet hűtéssel / fűtéssel és hőszivattyús meleg víz előállítással rendelkező nappali +1 és nappali +2 szobás lakások akár kertkapcsolattal leköthetőek.
Továbbá irodák is, melyek a társasház alapító okirata szerint lakócélra is hasznosíthatóak.
Az emelt szintű fűtés kész alap szerelt készültség a következőket tartalmazza:
A lakások kültér felé eső határoló főfalai 30-40 cm vastagságú falazóelemek, 15 cm vastag hőszigeteléssel. a födémek helyszíni monolit vasbeton lemezek a két lakószinten. a válaszfalak 10-15 cm vastag falazóelemek. Műanyag homlokzati nyílászárók (bukó, nyíló) 3 rétegű üvegezéssel (Ug = 0, 6 az üvegre). Rejtett vakolható lindab redőny tok elektromos mozgatás kábelezéssel redőny nélkül. a tető szigetelése 20-25 cm vastag hőszigetelés.
Burkolat nélküli beton aljzatok. Simított belsővakolat elkészítése. Bádogos szerkezetek, külső pvc párkány. Műanyag, több ponton záródó biztonsági bejárati ajtó.
A belső válaszfalak szabadon változtathatóak a gépészeti gerincvezetékek elhelyezkedését figyelem bevéve, így formálhatja új otthonát az Ön igénye szerint. a társas házi lakások emelt szintű szerkezet kész állapotának elkészülése 2024 vége. Részletes műszaki dokumentációért, bővebb információért vagy megtekintéssel kapcsolatban keressen bizalommal a hét bármely napján!
Amennyiben felkeltettük érdeklődését, kérem hívjon bizalommal!
Szabó Gábor +36-70-639-8927
Referencia szám: m260367-ml FIX 3% lakáshitelre megvehető

