Eladó új építésű lakás - Győr
- INGYENES HIRDETÉS FELADÁS
Ingatlan adatai
- Eladó vagy kiadó:Eladó
- Település:Győr
- Kategória:Lakás
- Alkategória:Tégla
- Alapterület:61 m2
- Csere is:Nem
- Hirdető:Cég
- Élő videón megtekinthető:Nem
- Szobaszám:3
- Állapot:Új építésű
- Hány szintes az ingatlan:nincs megadva
- Komfortosság:nincs megadva
- Hányadik emeleti:1
- Erkély:nincs megadva
- Lift:Nincs
- Parkolási lehetőség:nincs megadva
- Fűtés:nincs megadva
- Bútorozottság:nincs megadva
- Fényviszony:nincs megadva
- Tájolás:nincs megadva
- Kilátás:nincs megadva
- Internet:nincs megadva
- Klíma:nincs megadva
- Akadálymentesített:nincs megadva
- Energiatanúsítvány:nincs megadva
- Villany:nincs megadva
- Víz:nincs megadva
- Gáz:nincs megadva
- Csatorna:nincs megadva
- Kapcsolatfelvétel
Edvi Zsuzsanna
+36-(20)-277-7237
Mondd meg a hirdetőnek, hogy a megveszLAK-on találtad a hirdetést.
Hitel ajánlatok
Ingatlan hirdetés leírása
Modern otthon, ami évekkel később is érték marad!
Ha olyan otthont keres családjának, ahol nyugodt környezet, modern műszaki tartalom és kiváló elhelyezkedés találkozik, akkor ez a lakás Önnek szól.
Szitásdomb II. Lakóparkban épülő, a+ energetikájú, prémium minőségű lakás kiváló kivitelezőtől
A Szitásdomb II. Lakóparkban, Győr belvárosától mindössze 10 percre, az m1 autópálya elkerülő és az audi közelében kínálok prémium minőségben épülő, a+ energetikájú lakást, megbízható, nagy tapasztalattal rendelkező kivitelezőtől.
A terület közigazgatásilag Vámosszabadihoz tartozik, csendes, kertvárosi környezetben.
Lakópark előnyei
• családbarát, nyugodt környezet
• a lakóparkban kiépülő játszótér, óvoda, bölcsőde, orvosi rendelő, üzletek
• kiváló közlekedés Győr és az Ipari Park irányába
• ideális választás saját otthonnak és befektetésnek is
A lakás főbb jellemzői
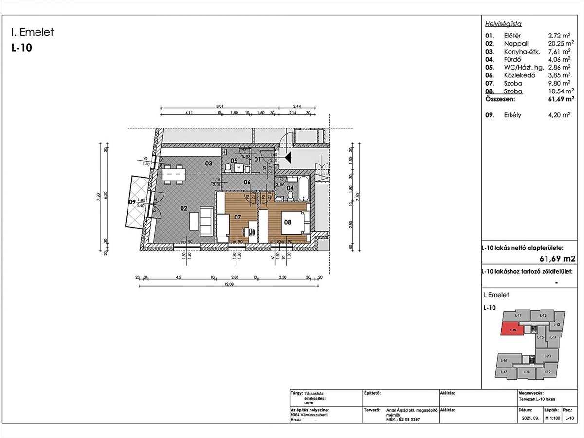
• 61, 69 m² alapterület
• nappali + 2 külön nyíló szoba
• 4, 2 m² erkély
1. emeleti, dk fekvésű
• praktikus, jól élhető alaprajz
• kiváló hő- és hangszigetelés
Helyiségek:
• Előtér: 2, 72 m²
• Nappali: 20, 25 m²
• Konyha–étkező: 7, 61 m²
• Szoba: 9, 8 m²
• Szoba: 10, 54 m²
• Fürdő: 4, 06 m²
• wc / háztartási helyiség: 2, 86 m²
• Közlekedő: 3, 85 m²
Műszaki tartalom – prémium kivitel
• 30 cm-es tégla főfalak, lakások között 30 cm hanggátló falazat
• 20 cm homlokzati hőszigetelés
• 3 rétegű üvegezésű internorm nyílászárók kívül antracit, belül fehér színben
• gelan biztonsági bejárati ajtó kívül antracit, belül fehér színben
• központi hőszivattyús rendszer egyedi mérőkkel
• padlófűtés + mennyezethűtés (klíma nem szükséges)
• elektromos alumínium redőny-előkészítés
• exkluzív edzett üveg erkélykorlát
• antracit színvilágú külső megjelenés
Parkolás
Minden lakáshoz kötelező 2 db gépkocsibeálló megvásárlása
Ár: 1. 000. 000 Ft + 27% áfa / db
(A lakáshoz tartozó parkolók: p22–p23)
Egyéb információk
• az ár emelt szintű fűtéskész állapotra vonatkozik
• tartalmazza az 5% ÁFÁ-t és a telekhányadot
• kulcsrakész befejezés egyedi megállapodás alapján
• várható átadás: 2026 tavasz
További költségek:
• ügyvédi díj: vételár 0, 8%-a
• albetétesítés, földhivatali eljárás: egyszeri 150. 000 Ft
Finanszírozás
Igény esetén ingyenes hiteltanácsadás és teljes körű ügyintézés biztosított.
Minden jelenleg elérhető állami támogatás igénybe vehető.
A társasház további elérhető lakásai:
L10 – 1. emelet, 61, 69 m2 + 4, 2 m2 erkély bruttó 59. 005. 750 Ft
L11 – 1. emelet, 62, 45 m2 + 13, 91 m2 erkély bruttó 64. 199. 625 Ft
L16 – 1. emelet, 65, 49 m2 + 4, 2 m2 erkély bruttó 62. 520. 750 Ft
L20 – 1. emelet, 68, 41 m2 + 6 m2 erkély bruttó 66. 054. 250 Ft
L21 – 2. emelet, 98, 71 m2 + 34, 33 m2 erkély bruttó 107. 184. 375 Ft
L22 – 2. emelet, 92, 46 m2 + 22 m2 erkély bruttó 95. 654. 250 Ft
Nagy az érdeklődés — ne halogassa a megtekintést!
Hívjon, nézze meg! Most még választhat! (Hivatkozási szám: m124613) FIX 3% lakáshitelre megvehető

