Eladó új építésű lakás - Hatvan
- INGYENES HIRDETÉS FELADÁS
Ingatlan adatai
- Eladó vagy kiadó:Eladó
- Település:Hatvan
- Kategória:Lakás
- Alkategória:Tégla
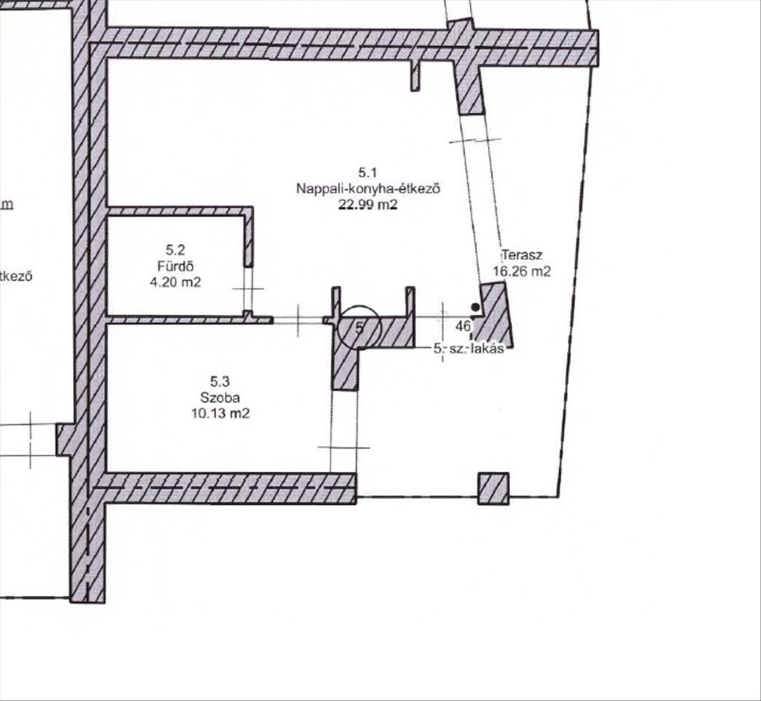
- Alapterület:37 m2
- Csere is:Nem
- Hirdető:Cég
- Élő videón megtekinthető:Nem
- Szobaszám:2
- Állapot:Új építésű
- Hány szintes az ingatlan:Földszintes
- Komfortosság:nincs megadva
- Hányadik emeleti:nincs megadva
- Erkély:nincs megadva
- Lift:nincs megadva
- Parkolási lehetőség:nincs megadva
- Fűtés:Gáz
- Bútorozottság:nincs megadva
- Fényviszony:nincs megadva
- Tájolás:nincs megadva
- Kilátás:nincs megadva
- Internet:nincs megadva
- Klíma:nincs megadva
- Akadálymentesített:nincs megadva
- Energiatanúsítvány:nincs megadva
- Villany:Van
- Víz:Van
- Gáz:Van
- Csatorna:Van
- Kapcsolatfelvétel

Sápi Tamás
+36-(20)-944-7025
Mondd meg a hirdetőnek, hogy a megveszLAK-on találtad a hirdetést.
Hitel ajánlatok
Ingatlan hirdetés leírása
Hatvan központhoz közeli részén megbízható referenciákkal rend...
Hatvan központhoz közeli részén megbízható referenciákkal rendelkező építő által, kizárólag minőségi anyagok felhasználásával épült 37nm -es teraszkapcsolatos lakás eladó!
Műszaki paraméterek:
- 30-as tégla falazat + 15cm vastag dryvit szigetelés,
- monolit vasbeton födém,
- 22-27cm tetőszigetelés,
- 3 réteg üvegezésű hőszigetelt nyílászárók fehér műanyag tokban,
- több ponton záródó műanyag bejárati ajtó,
- kívül műkő vagy műanyag párkány, belül gipszkarton fehér festéssel,
- kondenzációs gázkazán padlófűtéssel,
- 3, 5 kW-os inverteres hűtő-fűtő klíma,
- 1, 32a áram,
- napelem előkészítés,
- beépített szekrények.
Elosztás:
- előtér, nappali-konyha-étkező, egy szoba, fürdőszoba + 16, 26m terasz
Telek:
- kiskaputól a bejáratig térkő borítás,
- a kert durva tereprendezéssel, teljes építkezésben keletkező hulladék elszállítással kerül átadásra,
- a közös területek parkosítása a látványtervek szerint lesz megvalósítva,
- parkoláshoz térkövezet kocsibeálló áll majd rendelkezésre,
- a kert előregyártott betonelemes kerítéssel elválasztva, utcafronton színes wpc szegmensekkel szerelt kerítéssel
Nagyon jó környék, a városközpont, iskola, óvoda, bevásárlási lehetőség stb. Autóval kb. 5 Percre van.
Az ingatlant számos referenciával rendelkező, megbízható kivitelező építi! 3%-Os Otthon Start hitel, csok+ és ehhez kapcsolódó kedvezmények igénybe vehetők!
A lakóparkban több társasház is kialakításra kerül! Bővebb információkért hívjon bizalommal!
Irányár: 46, 6Mft
Hivatkozási szám: 2518278.
Megtekinthető telefonos időpont egyeztetés alapján:
Sápi Tamás +36 20 944-7025 sapitamas@godolloi. Hu
GÖDÖLLŐ ingatlanközpont - www. Godolloi. Hu: Gödöllő és környéke legnagyobb ingatlan választéka /Gödöllő, Szada, Veresegyház, Kistarcsa, Kerepes, Erdőkertes/ eladó-kiadó családi ház, telek, lakás! Ingatlan építés és felújítás! FIX 3% lakáshitelre megvehető
Tetszett ez az eladó Hatvani új építésű 2 szobás tégla lakás? Hívd fel a hirdetőt most, és tudj meg mindent erről az eladó tégla lakásról! Ha gondolod nézelődj tovább az eladó lakás Hatvan oldal hirdetései között. Ennek az eladó lakásnak az ára 46600000 Ft és mivel az alapterülete 37 négyzetméter, ezért az átlagos négyzetméterára 1259459 HUF/m2.
Az eladó lakások menüpontban további hirdetések között is böngészhetsz. Ha van kedved, akkor böngészhetsz a Sápi Tamás összes hirdetése között, vagy akár a/az Gödöllő Ingatlanközpont összes hirdetése között is.

